Submitted by WA Contents
Estudio Tecalli uses red clay brick, concrete and glass to form MoMa House in Mexico
Mexico Architecture News - Dec 18, 2023 - 15:38 7762 views

Mexican architecture practice Estudio Tecalli has built a family house combining three major materials: red clay brick, concrete and glass in San Pedro Cholula, Puebla, Mexico.
Named MoMa House, the three-storey house emerges as a modest play of solid and void relationship. Located in the Puebla Province of México, in the municipality of San Pedro Cholula, this town represents one of the growing areas of the Puebla Valley, and yet, according to the studio, there still are many agriculture parcels, clay furnaces, factories and traditional workshops still run by local families.

Covering a total of 189-square-metre area, the house was designed for a young couple, who adapted very successfully to the opportunities that emerges from the pandemic, specially working from home.
The program elements have helped to shape the architectural language of the project and emerged as an alternative space challenging to conventional living models in the Mexican real estate market.

"This family project is located in a former private recreational area, now converted into a residential subdivision," said Estudio Tecalli.
"Several rows of pine trees of considerable height are preserved in that space, which create a microclimate inside the lot, more humid and temperate than the average climate of the Puebla Valley," the studio added.

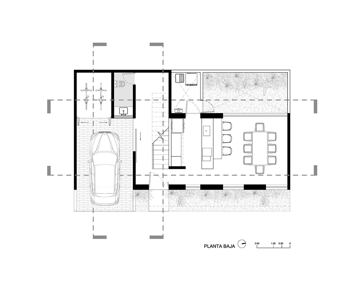
The project lot has a particularity compared to the most real estate properties in the area. Its front is greater than its depth - measuring 13 meters by 8 meters deep - which conditions all the design premises and presents the opportunity to draw a wider façade.
This also helps to take better advantage from the east orientation, thus, provide the house with natural light during the mornings.
For material choice, the studio used three local materials: red clay brick - a typical material used in the Puebla-Tlaxcala region, and typical Talavera tiles combined with contemporary building materials such as apparent concrete and glass.

"For the windows, steel frame was thought of as a call to the modern architecture of the mid-20th century in Mexico, whose windows and solutions are memorable and attractive, characteristics that have been lost lately," the studio explained.
The studio eliminated living room, a second room, and a second parking space to make way for different programmatic resources that enrich the architectural proposal. On the ground floor, the architects desiged a single parking space and added a small pantry.

"The omission of the living room is projected because the client really prefers the social dynamics that happen around the kitchen," said the studio.
"The dining space, then, is nourished by the morning and evening lights, and accompanied by a patio that is adorned with a clay brick screen where they can have plants with various pots in free style," it continued.

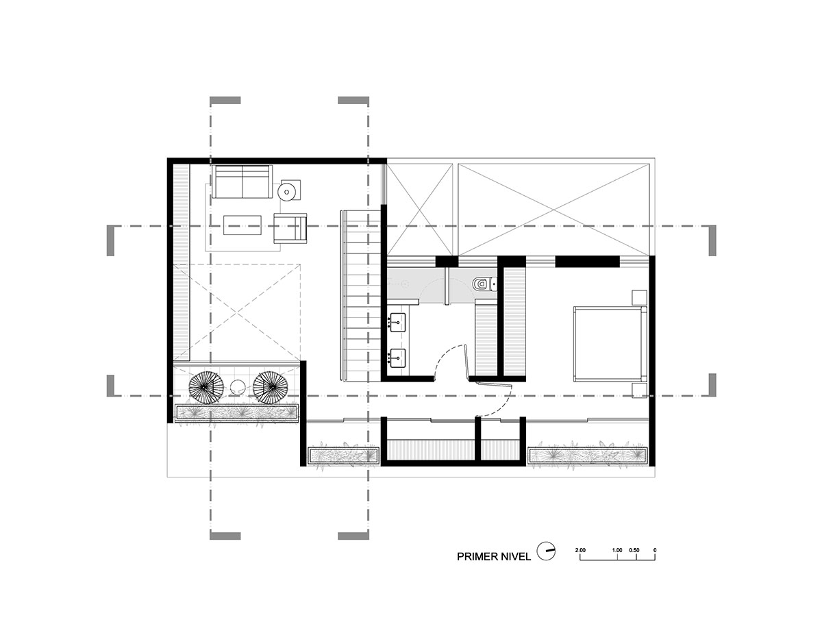
A double-height studio makes up the heart of the house, its large window allows light and useful solar heat to enter throughout the day. It was designed to properly disperse heat buildup which prevents the greenhouse effect.

For the finishes, the house were made up of handcrafted wooden slabs and polished concrete floors. They helped to reduce the cost of the house and do not compromise the quality of the construction thanks to the local labor of the expert builders of this region, according to the studio.







Image © Roberto Martinez

Image © Roberto Martinez

Image © Roberto Martinez

Ground floor plan

First floor plan

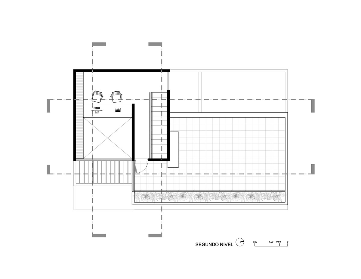
Second floor plan

Cross-sections

Longitudinal section

Longitudinal section

Main façade
Project facts
Project name: MoMa House
Architects: Estudio Tecalli
Location: San Pedro Cholula, Puebla, Mexico
Completion year: 2023
Area: 189m2
Materials: Concrete, red brick, wood, steel frames
All images © Amy Bello unless otherwise stated.
All drawings © Estudio Tecalli.
> via Estudio Tecalli
brick concrete Estudio Tecalli family house house red clay brick residential
