Submitted by WA Contents
Enota completes swimming pool with low floating roof in Slovenia
Slovenia Architecture News - Dec 25, 2023 - 14:52 3239 views

Ljubljana-based architecture firm Enota has completed a swimming pool complex on a sloping terrain in Češča vas, Novo mesto, Slovenia.
Named Češča Vas Pool Complex, the 4,770-square-metre building is located in a space dominated by the existing, recently renovated velodrome.

The swimming pool complex has a large tapered form roof that gives the sense of heaviness. Enota's preference was not to drastically alter the spatial relationships with the design of the new swimming pool facility as it would introduce disorder that the space could do without, and further saturate it.
The lower surface of the roof creates a holistic image with triangle-shaped yellow columns.
"The new pool facility thus takes advantage of the topographic properties of the inclined terrain," said Enota. "It is sited as low as possible and does not constitute a new dominant in the space."

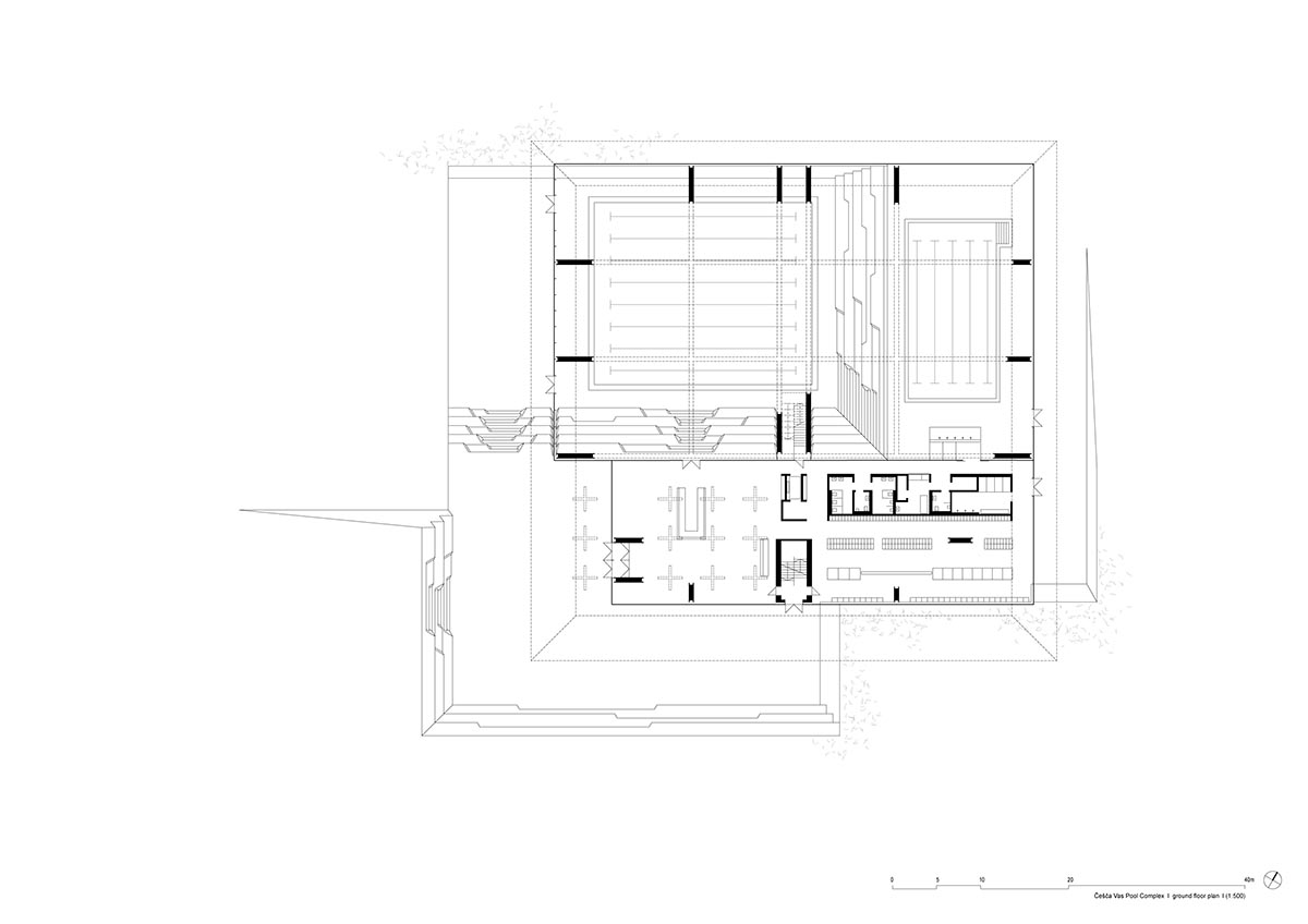
The complex comprises two interior pools and their infrastructure; in the 2nd phase of the project, an exterior Olympic-size pool is to be added.
The spatial design employs the partially dug-in levels to separate the individual new amphiteatral ambients by way of elevation.

The entrance hall is thus disconnected from the traffic surfaces, while the lowest-lying pool area corresponds to the elevation of the surroundings at the westernmost edge of the area.
The banks of the cut terrain are transformed into grandstands for the visitors.

In this manner, the design reduces the structure's facade envelope surface, thereby increasing its energy efficiency and reducing the investment cost. The possible risk due to the increased terrain excavation is thus efficiently balanced.
The building's subdued appearance in the space is achieved by the low floating roof, under which the surrounding landscape is allowed to flow across the pool.
At the same time, the roof of the structure is the volume housing all the programme which does not require a direct contact with the water surfaces.

The programme arrangement ensures a taller ceiling height above the pool space and a lower ceiling height at the reception desk and changing rooms.
The structural design of the roof featuring a grillage based on wall beams concealed in the programme's partition walls allows for large spans and requires few vertical supports.

The light appearing along the entire perimeter creates and impression of the roof volume hovering above the pool surface, while wide views of the surrounding nature open from the interior.
The cantilever roof on the building's entrance side acts as a canopy, which, together with the dug-in amphitheatre surface, forms the exterior entrance platform.

The materiality of the pool complex is very simple and restrained; the facade envelope of the floating roof is covered in natural, unvarnished timber boards which will in time age and thereby further blend the building with the materiality of the surrounding forest.
Together with the tilted geometry, the roof appears in the space as a paraphrase of the local rural development.

The design of the amphitheatral spaces, i.e. the programme platforms on the various levels, is homogenous and executed in local concrete with different surface finishes.
The only material accent is found in the building's interior. The bottom side of the floating pool roof volume is uniformly coloured in an intense, warm hue.

The ceiling is thus rendered sufficiently present so as to act as a pleasant shelter for the users despite the pool space's lack of filled perimeter walls.
At the same time, the interior being accented in this way acts as an discreet invitation for the users of the surrounding exterior space.















Ground floor plan

Top floor plan

Sections

Elevations
Enota unveiled design for a hotel extension that features triangular timber elements, aiming to make the facade become the roof. The firm completed a hotel encapsulated by "aggressive façade" made of interwoven white fences in Lipica, Slovenia.
Project facts
Project name: Češča Vas Pool Complex
Architects: Enota
Location: Češča vas, Novo mesto, Slovenia
Size: 4,770m2
Site: 13,370 m2
Footprint: 3,500 m2
Completion year: 2023
Client: Novo mesto Municipality
Project team: Dean Lah, Milan Tomac, Jurij Ličen, Nuša Završnik Šilec, Polona Ruparčič, Sara Ambruš, Eva Tomac, Eva Javornik, Urška Malič, Rasmus Skov, Sara Mežik, Jakob Kajzer, Peter Sovinc, Carlos Cuenca Solana, Goran Djokić.
Collaborators: Ivan Ramšak (structural engineering), Nom biro (mechanical and electrical services), Krajinaris (landscape architecture), Controlmatik ABW (pool technology).
All images © Miran Kambič.
All drawings © Enota.
> via Enota
