Submitted by WA Contents
John Morden Centre by Mæ wins 2023 RIBA Stirling Prize
United Kingdom Architecture News - Oct 20, 2023 - 16:37 3064 views

The John Morden Centre - a retirement day centre in London - by Mæ Architects has been named as the winner of the 2023 RIBA Stirling Prize by the Royal Institute of British Architects (RIBA), the prestigious annual award crowns the UK’s best new building since 1996.
The John Morden Centre in Blackheath, selected from the six-projects shortlist, has been named as the winner of the 27th RIBA Stirling Prize for "delivering a bold and hopeful model for the design of health and care centres for the elderly."
Described as "a place of joy and inspiration," the project "sensitively and seamlessly integrates medical facilities and social spaces," said RIBA Stirling Prize jury, Ellen van Loon.

The John Morden Centre - designed by London-based Mæ Architects, provides day care for residents of Morden College, a retirement community, in Blackheath.
The new centre is complemented within existing buildings on the Grade I-listed college grounds, which includes an almshouse and chapel, both attributed to St Paul's Cathedral architect Sir Christopher Wren.
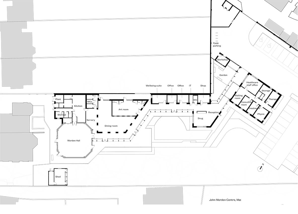
The building is envisioned as a series of red brick pavilions accommodating care and social spaces, joined together by a central timber ‘cloister’.
The traces of the 17th century neighbours can be found in a striking, zinc-clad roof and high chimneys.
"It illustrates how buildings can themselves be therapeutic"
"The John Morden Centre is a place of joy and inspiration. It sensitively and seamlessly integrates medical facilities and social spaces, delivering a bold and hopeful model for the design of health and care centres for the elderly," said RIBA Stirling Prize jury, Ellen van Loon, partner at OMA.
"Creating an environment that lifts the spirits and fosters community is evident at every turn and in every detail."
"This building provides comfort and warmth, with thoughtful features designed to prevent isolation. It illustrates how buildings can themselves be therapeutic – supporting care and instilling a sense of belonging."
"Great architecture orients people so they can thrive, and this building is exemplary at achieving exactly that," Van Loon added.

"This award demonstrates that there is hope for the sector"
"The John Morden Centre has been a really fulfilling project to work on," said Alex Ely, founding director of Mæ.
"At a time when adult social care is in a perilous state, this award demonstrates that there is hope for the sector and the project offers up a model for others working within health and care – inspiring them to create environments that positively impact on people’s mental and physical health," Ely explained.
The project features a light and airy reception hall which becomes the starting point for a journey through the new building. It also follows a meandering walkway and terminates in a large theatre hall – part of an existing structure that has been seamlessly upgraded and integrated.
Covered by a generous overhanging roof, along the exterior of the cloister, the roof provides shade and shelter all year-round.
"The centre carefully integrates medical facilities with a range of warm and natural feeling recreational spaces to encourage connections and counter isolation, including an art room, hair and nail salon and café. The theatre provides a backdrop for larger scale events - from parties to tribute performances," stated the RIBA.
The studio enlarges design choices throughout the building by "sensitively anticipating the varied needs, abilities and disabilities of users."

For example, some features, such as level thresholds, concealed wooden handrails and built-in seating along walkways, provide opportunities for respite, on the other hand, they also allow active participation in the community life of the centre.
The edge of floors is clad in high-contrast patterns that "provide dementia-friendly wayfinding", aldo helping residents to navigate between spaces.
The studio implements biophilic design principles by embedding the centre into the surrounding natural environment.
"The linear path of the cloister adjusts as it meanders between the existing mature landscape, including a large cedar tree - the focal point of the garden. There are plenty of places to rest, inside and out, and enjoy the natural, changing light and views," the RIBA said.
Simple, yet effective low carbon techniques are used throughout the project. The use of cross-laminated timber has reduced embodied carbon in the construction process, while lime-based mortar will enable future reuse of the brick cladding, according to the architects.
Operational energy has been minimized wiht passive ventilation, utilisation of the buildings chimneys, which is needed to heat and cool the centre.

"The John Morden Centre’s elegance and efficacy sets a high standard"
"Loneliness and isolation are critical issues, particularly for older people. The John Morden Centre’s elegance and efficacy sets a high standard for spaces that support healthier, happier and more independent lives," said RIBA President Muyiwa Oki.
"It illustrates the positive potential of architecture to strengthen vibrant and active communities."
"This is a skilfully designed package that minimises the building’s impact on our planet’s delicate ecology, while also harnessing the therapeutic value of the surrounding nature."
"It stands as a testament to the vision and ambition of Morden College, Mæ’s creativity – and the exemplary collaboration between them," Oki added.

Site plan

Floor plan
The RIBA Stirling Prize 2023 jury was chaired by OMA partner Ellen van Loon, Partner at OMA, with Niall McLaughlin Architects founder Niall McLaughlin, Foster + Partners senior partner Armstrong Yakubu, journalist and writer Mona Chalabi, Head of Industry Associations Strategy at Autodesk Marek Suchocki.
Rachael Owens, Head of Sustainability at Buckley Gray Yeoman, served as the jury’s Sustainability Expert.
In 2022, Níall McLaughlin Architects' The New Library at Magdalene College has been awarded the 2022 RIBA Stirling Prize. In 2021, Pritzker Architecture Prize-winning studio Grafton Architects' Kingston University London – Town House won the 2021 RIBA Stirling Prize.
All images © Jim Stephenson.
All drawings © Mæ Architects.
> via RIBA
biophilic design embodied carbon John Morden Centre Mae Architects RIBA Stirling Prize
