Submitted by WA Contents
Snow Peak Cafe emerges as a masterful fusion of nature and design in China
China Architecture News - Jul 29, 2025 - 04:47 1726 views

The Snow Peak Cafe is located next to the northern border of the Humble Administrator's Garden in Suzhou's MATRO Luxury Centre, within a two-story red brick building.
Originally constructed as 22 red-brick warehouses in the 1950s, KiKi ARCHi has transformed into Suzhou's classical gardens, where architectural order and organic natural flow coexist peacefully in a harmonious blend of industrial memory and natural ease.

In response to this distinct urban fabric, the architect based the design on Snow Peak's fundamental goal of "embrace your nature," interpreting the essence of freedom and nature via material articulation and spatial strategy.
Architect Yoshihiko Seki maintained the building's original red-brick textures and structural framework while adhering to the principles of minimal intervention and profound respect for site-specific context.

This functional space was shaped in accordance with the brand's identity by reinterpreting local components into a new formal language using a restrained yet expressive approach.
The design permits historical traces to endure within a revitalized spatial narrative by integrating Snow Peak's goal of exquisite craftsmanship and synergy with nature. The end result is an open, flowing space that is infused with natural sensibility and deliberate tranquility.

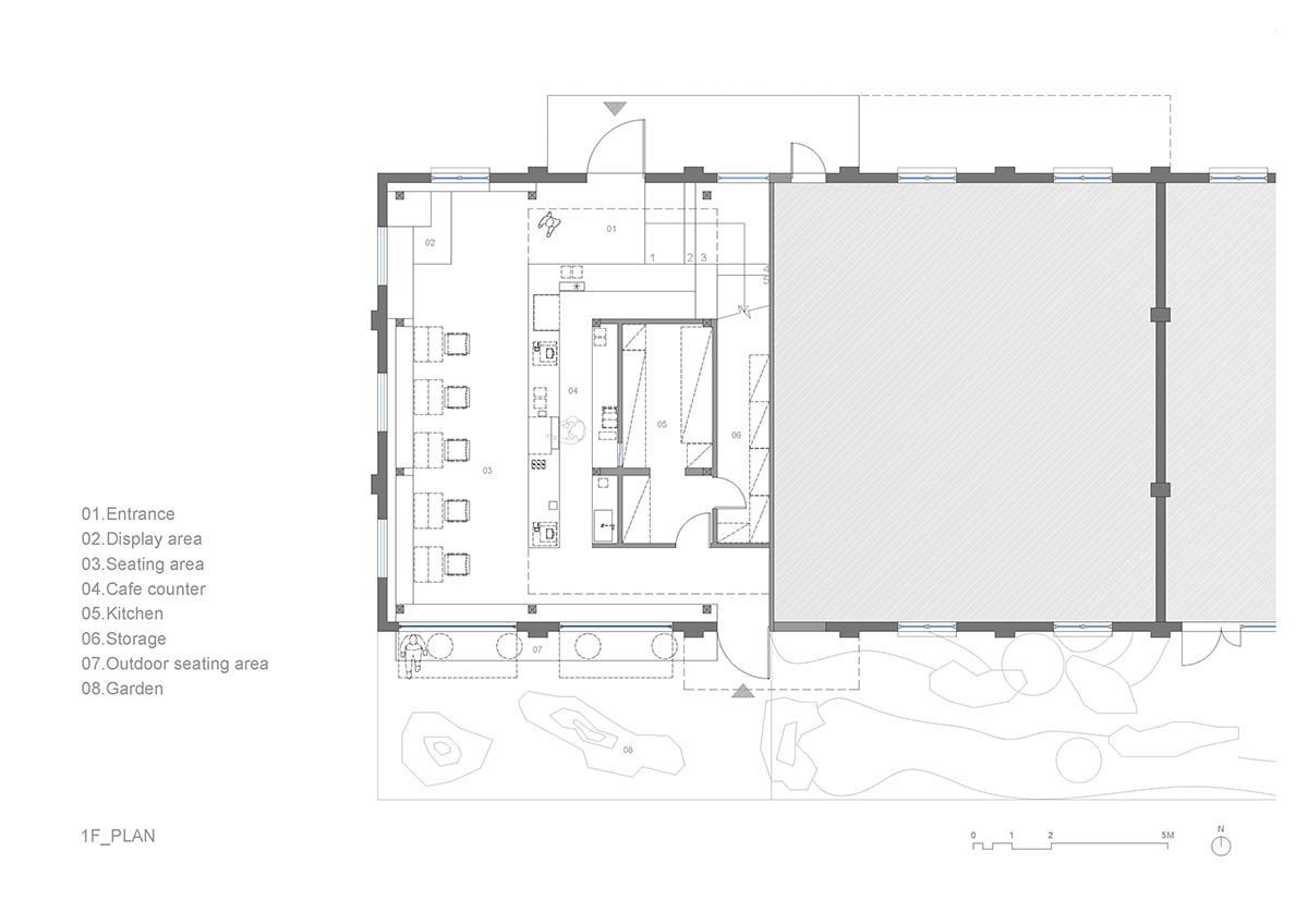
The eye is drawn to a multipurpose bar in the middle of the bottom level as soon as one enters the room. In addition to anchoring the visual focus and spatial movement, it serves as the center for cashier, pour-over coffee preparation, brand display, and display functions.
The bar's top is a steel panel, which creates a dramatic material contrast with the tiered timber strips that mimic the structural logic of piled red bricks.

The seamless transition of the steel surface onto the micro-cement steps creates a continuous display interface that exudes lightness and levitation. Coherence between spatial details and the ambient ambiance is achieved through the continuation of this material interaction throughout the ceiling and seating area.
The micro-cement staircase, which extends upward to the second level and blends in flawlessly with the bar, seems to sprout naturally out of the ground. It joins the vertical space in a smooth, subtle gesture with a simple, restrained form.

The staircase functions as both a circulation route and a presentation piece, converting the elevation of the space into an interior rhythm. It is a spatial device that propels the space's continuity and advancement rather than a distinct structural insertion.
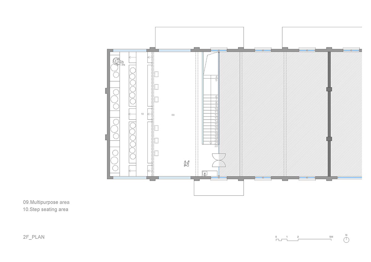
A more muted and refined character is embraced by the design on the second floor. Slender timber strips discreetly define seating limits, and tiered seating composed of recycled red bricks anchors the area. The intervention is subtle yet purposeful.

The end result strikes a balance between comfort and sophistication and unadulterated realism, creating the impression that one is living in an idyllic environment.
Existing timber beams are painted white to soften the visual weight of the brick and wood, infusing the space with a local hue of the “embrace your nature” and stirring the imagination of a journey into nature.

The space, which combines the precision of contemporary craftsmanship with coarse regional textures, is decorated with natural timber, weathered red brick, refined steel panels, and micro-cement.

Material languages complement one another in this dialogue, which is not a confrontation. The site's natural fabric is reflected in the raw materials, and the brand's unwavering quest of quality is reflected in the created details, which convey a subdued yet potent feeling of mutual reinforcement and coexistence.

This project explores a free yet sophisticated spatial expression in response to and an extension of Snow Peak's idea of "minimal interference with nature."

Even urbanites may appreciate the poetry of the wild thanks to the architect's minimalist design, which respects the site's natural character and shapes Snow Peak's distinctive outdoor living aesthetic, which strikes a balance between the simplicity of everyday life and the rawness of nature.










Original floor plan

First floor plan

Second floor plan

Section

Section
KiKi ARCHi created a library that evokes the Fibonacci spiral of shell creatures in Beijing, China. In addition, the firm completed residential buildings with red brick in Beijing, China.
Project facts
Project name: Snow Peak Cafe, MATRO Luxury Centre, Suzhou
Location: Suzhou, Jiangsu, China
Element: Café, Retail Space
Architects: KiKi ARCHi
Director: Yoshihiko Seki
Design team: Saika Akiyoshi, Takahito Yagyuda
Building area: 200m2
Completion: October 2024
All images © Ruijing Photo Beijing.
All drawings © KiKi ARCHi.
> via KiKi ARCHi
