Submitted by WA Contents
JKMM Architects selected to design New Museum of Architecture and Design in Helsinki
Finland Architecture News - Sep 11, 2025 - 12:37 3329 views

Helsinki-based architecture firm JKMM Architects has been selected to design the new Museum of Architecture and Design in Helsinki, Finland.
After an international, open, and anonymous competition that started in April 2024, the firm was chosen to design a historic waterfront structure.
The proposal, called Kumma, will become a historic waterfront museum that will present Finland's distinctive architectural and design culture to the world.

JKMM Architects' winning team was led by Samuli Miettinen, the principal designer and founding partner of the firm. In addition to JKMM, the team includes Akukon (acoustic and AV design), Granlund (HVAC Engineering, Energy Calculation), MIR (visualization), Pentagon Design (service design), and Ramboll Finland (structural design, carbon footprint calculation, climate change mitigation and adaptation, electrical and lighting, geo design).

624 submissions from all over the world were received for the worldwide design competition. The majority of the architects who were eligible to participate were from all of the nations that are parties to the WTO's Government Procurement Agreement (GPA).
Finland accounted for almost one-fifth of the suggestions. Italy, the United States, France, and the United Kingdom were the most represented nations, after Finland.

The jury's chair, Mikko Aho, declared the winner during a prize-giving event on September 11 at Helsinki City Hall. Mayor Daniel Sazonov of Helsinki, Permanent Secretary Heidi Backman of Finland's Ministry of Education and Culture, Kaarina Gould, CEO of the Foundation for the Finnish Museum of Architecture and Design, Pilvi Kalhama, the Director of the new Museum, and representatives from each of the five finalist design teams attended the prize presentation.

The winning design by JKMM Architects received €60,000 in prize money. Cossement Cardoso, an architecture firm based in Portugal and Belgium that was established by Charles Cossement and Gil Cardoso, won a second prize of €35,000. Lopes Brenna, a Chiasso, Switzerland-based architectural firm, won third place and €25,000 for their submission, Moby.
The Tyrsky design, which was created by a group of Finnish architects, received €20,000 and fourth place from the judges. The French firm Atelier Orda offered a €10,000 purchase option to secure the TAU design.

A new museum in Helsinki’s South Harbor planned for 2030
Finland's new Museum of Architecture and Design will be built on a former dockside site in the South Harbour, a historic waterfront neighborhood in the heart of Helsinki, near famous sites like the City's Market Square, the famous "Sugar Cube" by Alvar Aalto, the Orthodox and Lutheran Cathedrals, and the well-liked Esplanade Park. The Suomenlinna Sea Fortress, a UNESCO World Heritage Site, designated the competition site and its surroundings as a buffer zone.

The winning submission from JKMM Architects responds to the competition brief by suggesting a brand-new 10,050 square meter museum building that would take advantage of the prominent site's urban potential and fulfill the museum's mission to be a welcoming, adaptable, and inclusive environment for both locals and tourists in Helsinki.
The design was praised by the competition jury for its ability to blend in with the surrounding urban fabric while maintaining its uniqueness and distinctiveness as a public structure.

"I hope that the planning and realization of the new Museum of Architecture and Design can show the way for how new things can be built responsibly and with skill," said Samuli Miettinen, founding partner and principal designer at JKMM Architects.
"Architecture and design are deeply human – they are born from dreams and longing, and they gain their meaning in the places where we can experience and live together," Miettinen added.

The rich history and modern power of design and architecture in Finland and the Nordic region will be tapped into by Finland's new Museum of Architecture and Design in Helsinki. It will provide interesting programs that highlight the value and possibilities of design in a world that is evolving.
The new building will house exhibitions drawn from The museum’s collection of over 900,000 artefacts, including objects, correspondence, models and photographs documenting the work of internationally-famed practitioners such as Aino and Alvar Aalto, Eero Aarnio, Maija Isola, Eliel and Eero Saarinen, Paavo Tynell, and design brands such as Marimekko, Nokia and Fiskars.

Along with hosting well-known traveling exhibitions, the new structure will provide appealing public amenities like a design library and an open-air summer patio.
Ecological, social, and cultural sustainability is a fundamental idea that informed the new museum's design and construction. The museum project actively supports Helsinki's commitment to becoming carbon neutral by 2030 throughout all aspects of its operations.

Participants were invited to create a building that would set the standard for accessible, inclusive design and climate resilience in the competition brief. Additionally, KONE Finland conducted a People Flow Analysis on every competition entry.
In order to guide a program of public activities that will examine how design thinking and skills are relevant to the challenges we face as individuals and societies in a world that is changing quickly, the new museum's main goal will be "democratizing the tools of design." It will do this by drawing on the history and current state of Finnish and Nordic architecture and design.

The jury has taken into account perspectives on urban culture, design education, and how to better serve populations with special needs in addition to architecture and cityscape.
During the competition phase, a number of workshops were organized between the design teams and representatives of different user groups in order to better foster the buildings' utility. Tommi Laitio, a public innovation specialist based in Los Angeles, led the sessions.

"This announcement is a pivotal moment for Finland’s new Museum of Architecture and Design, marking the conclusion of years of work to fundraise and lay the groundwork for a new museum, and the beginning of work to develop a new landmark on a hugely significant site for Helsinki. We also invite the museum's audience to join in this work by participating in our workshops and exhibitions," said Kaarina Gould, CEO of the Foundation for the Finnish Museum of Architecture and Design.
"In addition to architectural and cityscape goals, the competition brief asked teams to consider the future needs of museum operations, use environmentally friendly construction, and design to ensure that the museum would bring joy and inspiration to its users. The new museum building has to enable our social mission: shaping our common future through architecture and design."
"In Kumma, the jury saw potential for achieving all of these goals. It is a great pleasure to begin cooperation with the experienced and visionary team of JKMM Architects – congratulations to the team! I also wish to express our sincere thanks to all the designers behind the finalist proposals, Gould explained.

"The jury made a unanimous decision in the anonymous competition. Kumma blends into the cityscape, protecting valuable views of the historic waterfront, while at the same time standing out as a recognizable landmark. The use of recycled brick on the facade brings sculptural, architectural warmth and the terrace surrounding the building strengthens the connection to the city," said Mikko Aho, Chair of the Jury.
"The winning proposal, which is perceived as monumental and angular, is intended to be developed in a more approachable direction. approachable direction. We and the design team share the view that climate-smart solutions are at the heart of further development," Aho added.


Plans and sections

Plans and sections

Plans and sections

Ground floor plan

Floor plan

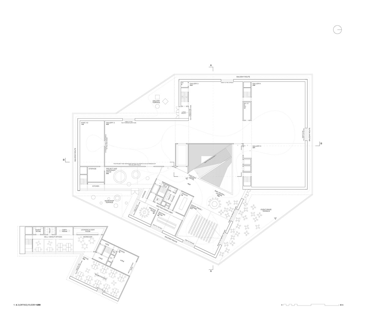
Office floor plan
The project is expected to start construction in 2027, with the museum opening in 2030.
JKMM Architects is one of Finland’s leading architecture practices, responsible for internationally celebrated projects including the Amos Rex art museum in Helsinki, Tammela Stadium in Tampere, University of the Arts Helsinki, Dance House Helsinki and Finland’s contribution to Expo 2020 Dubai.
The practice is currently working on an Annexe to the National Museum of Finland, also in Helsinki, due to open in 2027, and an annexe to the Lillehammer Art Museum in Norway. JKMM Architects was founded by Asmo Jaaksi, Teemu Kurkela, Samuli Miettinen and Juha Mäki-Jyllilä in 1998. The practice has twice been a recipient of the Finlandia Prize, the highest annual award for Architecture in Finland.
All renderings © MIR.
All drawings © JKMM Architects.
> via JKMM Architects
architecture news cultural building Helsinki JKMM Architects museum
