Submitted by WA Contents
Atheleia Arquitectura completes Casa Artiga with rammed earth walls in Barcelona
Spain Architecture News - Aug 13, 2024 - 13:51 3291 views

Spanish architecture practice Atheleia Arquitectura has completed a residence with rammed earth walls in Barcelona, Spain.
Named Casa Artiga, the house is situated in Vallès, Barcelona, in the Tenes River valley where the surrounding area is characterized by gentle hills, small forests, and agricultural plains.

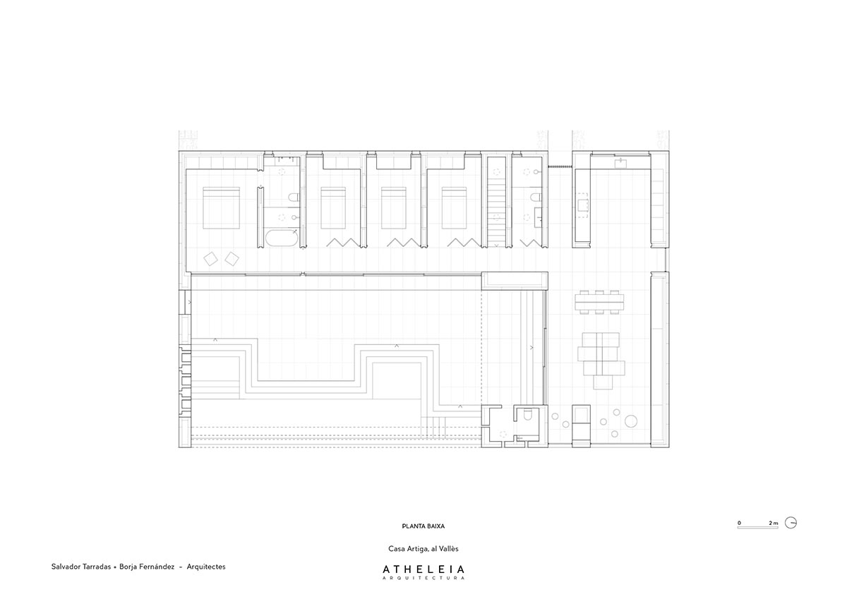
The project is set up around a courtyard that offers an unobstructed view of the surroundings. It's a small home, built on the ground floor with a service area on the lower level.
The house is positioned so that the exterior spaces are staggered and connected, creating visual relationships that break up the house's compactness. The plot is characterized by a steep slope.

With a swimming pool, the courtyard serves as the hub of the house, dividing the day and night spaces and creating circulation around it. The connections between the interior of the house and the courtyard are made possible by large porches and covered openings.

The project, which uses rammed earth walls and emphasizes the use of local labor and materials, focuses on ecologically sound and sustainable building practices to create habitats that are efficient and healthy. Utilizing the rammed earth walls both inside and outside highlights how the spaces flow together.

All aspects of the house's design and construction have been guided by sustainability principles, including the use of materials with high thermal inertia, well-insulated enclosures, and passive solar control mechanisms like porches and cross ventilation. A geothermal system is added as a renewable energy source to help control the climate.

















Site plan

Floor plan

Roof plan

Floor plan

Elevation

Elevation

Elevation

Elevation

Section

Detail section
Project facts
Project name: Casa Artiga
Architects: Atheleia Arquitectura
Location: El Vallès, Barcelona
Completion date: 2024
Team: Salvador Tarradas, Borja Fernández
Structure: Blázquez-Guanter
Technician architect: J.M. Paniagua
Collaborations: A. Latorre, M. Grañén.
All images © Adrià Goula.
All drawings © Atheleia Arquitectura.
> via Atheleia Arquitectura
Atheleia Arquitectura Barcelona house rammed earth residential
