Submitted by WA Contents
Radical social housing by Peris + Toral Arquitectes wins RIBA International Prize 2024
Spain Architecture News - Dec 04, 2024 - 06:21 4621 views
A radical social housing in Barcelona by Peris + Toral Arquitectes has been named as the winner of the 2024 RIBA International Prize, prestigious bi-annual prize recognises the world’s best new architecture.
Modulus Matrix: 85 Social Housing in Cornellà, an 85-unit timber-framed social housing project was created by Peris + Toral Arquitectes, a Barcelona-based architecture studio formed by Marta Peris and José Toral.
The RIBA International Prize by the Royal Institute of British Architects (RIBA) recognizes "a building that demonstrates visionary thinking, originality, excellence of execution, and makes a distinct contribution to its users, surrounding environment and communities."
"A kind of transformational spirit"
RIBA President Muyiwa Oki praised the project for providing "a kind of transformational spirit that is both aspirational and demonstrates genuine change."
The goal of the cutting-edge housing project Modulus Matrix is to revolutionize home architecture and construction. The six-story building, which houses 85 dwellings, was constructed in Cornellà, close to Barcelona, Spain, in response to a request from the public organization IMPSOL (the Metropolitan Institute of Land Development and Property Management).
The Modulus Matrix concept uses Japanese homes and interiors as a starting point for a modular system of rooms of precisely the same size.
This idea was inspired by architect Marta Peris's research into the films of Japanese director Yasujirō Ozu, whose works explore family, marriage, and the relationships between generations.
Image © Iñigo Bujedo Aguirre
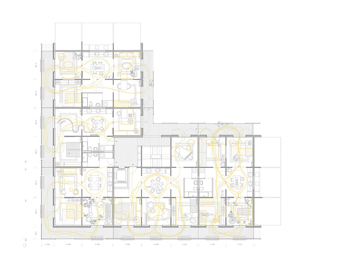
The structure is made up of a matrix of rooms arranged around a central communal courtyard, with four circulation cores at each corner. It is based on a 3.6 meter by 3.6 meter tatami mat module and is connected via an enfilade rather than a hallway.
There are 18 apartments on each level of the 85 residences, which are divided into four groups. Since the core is surrounded by four or five residences, each has dual orientation and cross ventilation. Depending on whether they are two- or three-bedroom apartments, there are either five or six modules.
What distinguishes this construction from more traditional dwellings is the "looseness-of-fit", according to RIBA. With no hierarchy between the living, dining, and sleeping areas, the architect refers to this design as "a democratic house" because of its grid-like arrangement, which facilitates simple movement and interaction.
Since each room's purpose can be readily altered, the structure offers flexibility and adaptability throughout time as well as the capacity to accommodate new and culturally distinct living arrangements outside of the conventional nuclear family.
Additionally, it makes the kitchen the focal point of the house, which the architects say challenges gender norms by highlighting domestic work.
The building's ultimate shape is determined by this design approach, which centers the "room" module rather than the "dwelling." With continuous private balconies encircling the building's exterior and galleried access to the higher stories overlooking the center courtyard, the building's focal point serves as a social hub.
A complex framework for living is created by the uniform dimensional module, excellent detailing, and the lack of welded joints, among other well chosen characteristics.
Smart solutions like Barcelona shutters, which offer isolation and shade, and basic mesh screens were used to solve issues like acoustic insulation between neighbors.
"Peris + Toral Arquitectes’ inspiring housing project in Spain embodies the kind of transformational spirit that is both aspirational and demonstrates genuine change," said RIBA President Muyiwa Oki.
"By embracing flexibility and longevity through long life, loose fit architecture, it is a radical approach to social housing that creates a place designed for people to adapt and inhabit in the long term."
"This visionary scheme allows for new and future ideas of what constitutes a family, and should be seen as blueprint for delivering sustainable, quality housing around the world at scale," he added.
"It is a strong example of the ways in which architects can create new and implementable solutions to the common challenge of creating housing for all," Oki continued.
Using a mass timber structure, the project achieves minimal carbon dioxide emissions, and the modular approach minimizes environmental effect and drastically cuts down on construction time.
The implementation of comparable projects where housing needs are greatest is made possible by the combination of low-impact and time-efficient construction.
"Winning the RIBA International Prize is a recognition of many years focused on housing that provides new ways of living. We are very proud of the positive feedback from residents of Modulus Matrix," said Marta Peris and Jose Toral, co-founders of Peris + Toral Arquitectes.
"Some were unsure about features like entering through a terrace, having an open kitchen at the centre of the home, and equal-sized rooms without corridors, but their perspectives changed after living in the space."
"Now they feel this way of living better adapts to their needs. Their first-hand experiences provide valuable insights into how housing around the world can evolve," Peris and Toral added.
The project is similar to other IMPSOL programs in the region in that it uses land donated by local governments for projects that combine private and public "socially innovative" housing in financially independent developments. More than 5,000 dwellings have been delivered by IMPSOL overall. Spain's largest timber-framed project, Modulus Matrix, was finished in 2021.
Lu Wenyu, a co-founder of Amateur Architecture Studio, chaired the RIBA International Prize Grand Jury, which was also composed of Paola Antonelli, Senior Curator, Department of Architecture and Design, and Director, Research and Development, The Museum of Modern Art, and Tosin Oshinowo, Founder and Principal of Oshinowo Studio and Curator of the Sharjah Architecture Triennial 2023.
Site plan
"A housing project that is adaptive, inclusive and sustainable"
"Through this innovative approach to social housing, Peris + Toral Arquitectes has responded to the shifting demands of societal groupings by crafting a housing project that is adaptive, inclusive and sustainable," said Lu Wenyu, chair of the RIBA International Prize Grand Jury.
"Not defined by stereotypes or fixed assumptions of what constitutes ‘family’, the intelligent organization of space encourages lively interaction and connection within the community, ensuring that the architecture functions on different scales – from the discrete dwelling to the collective space."
"This building has set a precedent for future developments in Barcelona and beyond and is a worthy winner of the RIBA International Prize 2024," Wenyu added.

Modulus Matrix: 85 Social Housing was selected from a shortlist of the Jacoby Studios, Paderborn, Germany, by David Chipperfield Architects Berlin, Modulus Matrix: 85 Social Housing in Cornellà, Barcelona, Spain, by Peris + Toral Arquitectes, and Lianzhou Museum of Photography, Lianzhou, China, by O-office Architects.
Previous winners of the RIBA International Prize include the Friendship Hospital in Bangladesh, designed by Khashef Chowdury/URBANA, Brazilian architects Aleph Zero and Rosenbaum's Children Village in northern Brazil, Grafton Architects' The Universidad de Ingeniería y Tecnología (UTEC) in Lima.
All images © José Hevia unless otherwise stated.
All drawings © Peris + Toral Arquitectes.
> via RIBA
housing Peris + Toral Arquitectes RIBA International Prize social housing
