Submitted by WA Contents
HK Associates Inc frames desert oasis with Ventana House featuring geometric protrudings in Tucson
United States Architecture News - Sep 16, 2021 - 15:29 3860 views

Deep carved exterior volumetric protrudings define the form of this private house at the base of the Catalina Mountains in Tucson, Arizona, United States.
Situated on a plot adjacent to a protected peak, Tucson-based architecture studio HK Associates Inc aimed to frame this mesmerizing desert oasis with a play of solid-void overlooking at this natural surrounding.
Named Ventana House, the 325-square-metre house creates a big window towards the desert while capturing beautiful views and providing privacy for its users.

The two-story dwelling arises from its mountainside setting like a geological outcropping, a rugged exterior form shaped from within by openings that afford panoramic views. The house literally looks like part of a geological relic on the deserted site.
As the studio describes, the house is "like a geode, the light-filled and refined interior is a contrast and a surprise."

The main living spaces of the home are designed above the desert floor, connecting the home's inhabitants to a foreground of saguaro forest and the distant horizon.
The entry sequence into the home begins at a notched erosion in the exterior massing. The architects rearranges movement towards a sculptural stair that occupies a double-height skylighted gallery.

"The threshold at this moment of vertical ascension is further defined by a bridge that passes overhead. Clad in steel perforated panels, the bridge filters light from above and offers glimpses of experiences to come," said HK Associates Inc.

When guests arrive at the main living space of the home, the form of the interior volume adjusts again, marked by a sloped ceiling that echoes the silhouettes of the distant foothills.
The ceiling is clad in alder panels, while the ceiling becomes an organizing element throughout the interior, mapping activities and interactions below: dining, cooking, conversing, and relaxing.

Minimally detailed cabinet elements further inform inhabitation, acting as a subtle backdrop to the main feature: daily life in a desert oasis.
"The initial conception of the home was shaped during an early visit to the native site with the clients. The picturesque natural character of the site was unmistakable," added the studio.

"Less obvious was the opportunity for the prospect, which revealed itself upon us climbing a large mesquite tree to gain access to potential views."
"It was from this perch that the sequence and organization of the home became clear."

At the heart of the home, the kitchen dominates the space and "occupies the prospect of the mesquite that we'd climbed together," said the architects.
The outer language of the home is decided by the carved exterior and the protruding volumes create deep shadows, protecting the inhabitants from the harsh desert sun.

The architects used large sliding doors connecting the interior of the home to shaded terraces, while they also facilitate cross ventilation that seasonally minimizes the need for mechanical cooling.
The architects find the advantage of using large sliding doors to enhance the connection with the natural environment.

The architects created bold, flat and cozy material texture and paid attention to details that complement the bold formal and spatial resolution, while increasing depth of the house.
On the exterior of the home, the studio used combed cement plaster that exhibits a trace of the construction process and the hands that contributed to the realization of the design.

"The interior of the home reveals itself as a series of discretely carved volumes proportioned in relationship to exterior apertures," the architects added.
The team formed a spatial dialog between interior volume and exterior form unfolding in a cinematic montage that complements the picture-window views.
The shared experience of the main living space is complemented by private moments for the home's inhabitants, with bedrooms and studies tucked away, each with their own unique aspect ratio, each inviting a personal narrative.

According to the studio, "the experiential effect of Ventana House combines picturesque vignettes with cinematic movement, rooted in direct response and connection to the desert landscape and environment."













Site plan

Axonometric

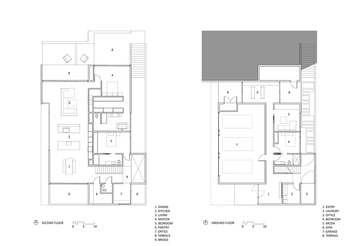
Plan

Elevation

Longitudinal section

Cross section

Diagram
HK Associates Inc is an award winning architecture firm established by the couple Kathy Hancox and Michael Kothke. The firm designs residential houses in the United States.
Project facts
Project name: Ventana House
Architects: HK Associates Inc
Location: Tucson, Arizona
Size: 325m2
Date: 2020
All images © Ema Peter
All drawings © HK Associates Inc
> via HK Associates Inc
