Submitted by WA Contents
13 hotel cabins by aoe are plugged in trestle bridge that allows minimum footprint among lush trees
China Architecture News - Aug 24, 2021 - 15:24 6642 views

Beijing-based architecture practice aoe has designed floating hotel cabins that are plugged in a trestle bridge, allowing a minimum footprint on the site among lush trees in Guilin, Guangxi, China.
Named Guilin Lebei Homestay Hotel, the 608-square-metre cabins are distributed in a site with different positions and in various forms to grasp mesmerizing views in the nature.

Located in Guilin, Guangxi, a famous scenic tourist city, the architects considered the mild and pleasant climate of the area to give these various shapes to hotel cabins, with lush trees and a small river flowing through the site.
The hotel is located beside a small river. Based on the local climate and environment, creating an immersive accommodation experience close to nature has become the main goal of the design.

Comprised of 13 units, each with different forms, areas, and shapes, with an area of approximately 27 square meters. Other 2 units are dedicated to leisure activity spaces.
All hotel cabins are attached to a long trestle bridge and units are raised steel stilts that touches the ground in a minimum footprint. This bridge makes cabins make look like they are floating in the air.

"The history of the hotel can be traced back to ancient civilization. It is a kind of shelter with a wide view and practicality, while avoiding danger," said aoe.
"We applied the concept into the project, enabling visitors to have a closer relationship with nature. The building is raised to a height of 5 meters. The elevated building is light and interesting and can have the widest view."
"At the same time, the height of the treehouse is aligned with the tree canopy. Looking out of the window, there are lush trees, giving people the experience of shuttling through the jungle," the studio added.

The main activity area is designed on the first floor, and the second floor uses the triangular space to create a crawling space for children to play.

For the other apartment types, the children's bedroom is located on the second floor, with the first floor as the public area and bedroom for adults.
This area is approximately 45 square meters. Indoors, the first and second floors are connected by climbing ladders that allow children to play in the room.

Type B and Type C use an outdoor slide to connect the second floor and the first floor in order to provide a place for children to entertain.
Type D has an artificial thatched roof, curved, with a natural feeling, while Type E uses wooden slats as the façade, spliced to form an ellipse in a unique and childlike style.

Along the winding and floating plank roads, guests can find the house in different positions. At the same time, the plank road is connected to the second floor of the inn, leading people to the room area.
"On the plank road, we set up slides, slings, and other entertainment facilities, which are connected to the ground garden vertically and convenient for children to play," the studio added.

At the same time, there is a leisure space for viewing, allowing people to gaze out and relax among the treetops.
The overhead of the trestle bridge and hotel allows the ground floor to escape to the maximum, reducing the impact on the surroundings, and also creating a free panoramic garden. Under the shelter of surrounding buildings and trees, it is also cool and comfortable in summer.








Site plan

Elevations

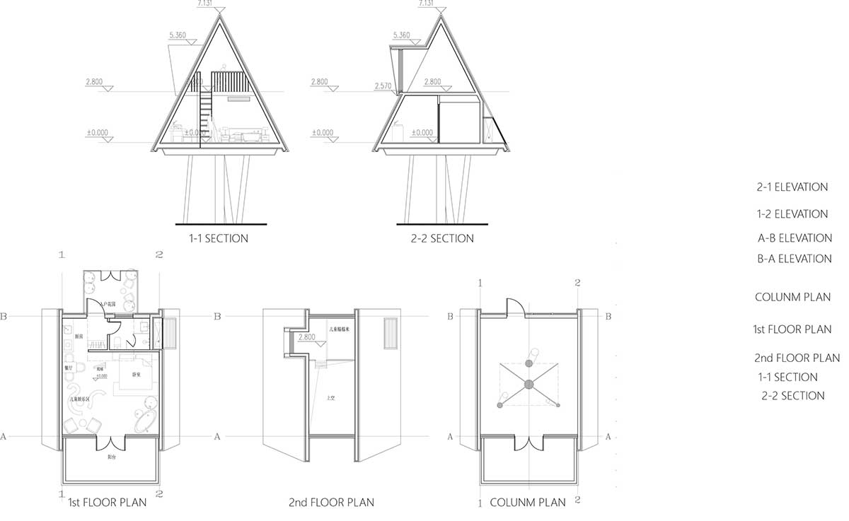
Plans and sections

Plans and sections
aoe previously completed a reception center in Chengdu, China and an exhibition center composed of all-white volumes in the Changqing Economic Development Zone, 20 kilometers away from the city centre of Jinan, China.
Project facts
Project Type: Hotel
Project location: Guilin, Guangxi
Built status: Completed Building area (square meters): 608.01 square meters
Owner: Sunac (Beijing) Cultural Tourism Planning Research Institute Co., Ltd.
Design time: March 2019-July 2020
Completion time: June 2021
Design unit: aoe project team
Lead Architect: Wen Qun
Design Team: Jiahan Liang, Liuqing Liu, Jianxin Li, Ruixue Fan
All images © Runzi Zhu
All drawings © aoe
> via aoe
