Submitted by WA Contents
Curving wooden walls form Roofless House among trees in Atherton
United States Architecture News - Jul 30, 2021 - 11:39 6410 views

Curving wooden walls have formed this residence among trees at a site in Atherton California, just down El Camino Real from Stanford University, in the heart of Silicon Valley, United States.
Named Roofless House, the 269-square-metre house is defined by gently curving walls in an elongated layout that acts part of the landscape itself.
Designed by California-based architecture practice Craig Steely Architecture, the house is located at a site in Atherton, a suburban city characterized by mature trees and homes on large plots hidden behind fences.

The design of the house was aimed to blur boundaries between inside and outside and provide a continuous flow with inner courtyards that complement the functions inside.
In design, the studio took into account the climatic parameters of the site, which is temperate, almost Mediterranean. As the team explained, the client of this house wanted a home where she could have outdoors as much as possible.

"Complicating this desire was that the lot is long and narrow and her view on all sides was of the backs of the neighboring houses which (like most typical suburban houses) are huge and blank," added the firm.
"But above these neighboring houses, the mature tree canopy and sky were alive, constantly changing and breathtaking."

So for this, the architects focused on this view “up” rather than horizontally “out” and they designed a seemingly roofless house that surrounds the living spaces incorporating huge outdoor courtyards that direct the view up.
A continuous and curved wall wraps the living spaces in an open plan and blurs the relationship between indoor and outdoor by using retractable sliding doors.

Using the same material palette like travertine on the floors and cedar on the walls also keep the same feeling inside. According to the architects, what makes this building apart from other house is its continuous curving wall.

The walls entirely enclose the house, while blocking out the less desirable views. The house focuses on the more meaningful views and create interest as the sunlight and shadows move through the day along it’s surfaces.
"At it’s most elemental, the curving wooden wall creates a visual backdrop seen through the interior landscape of plants and birch trees, animated by the shadows moving across it all day," added the firm.
"Unlike it’s neighbors, this house is not fenced off at it’s street perimeter." "A meadow of native grasses flow from the sidewalk with existing oaks, redwoods and newly planted birch trees flowing inside and outside of the curving wooden wall," the studio continued.

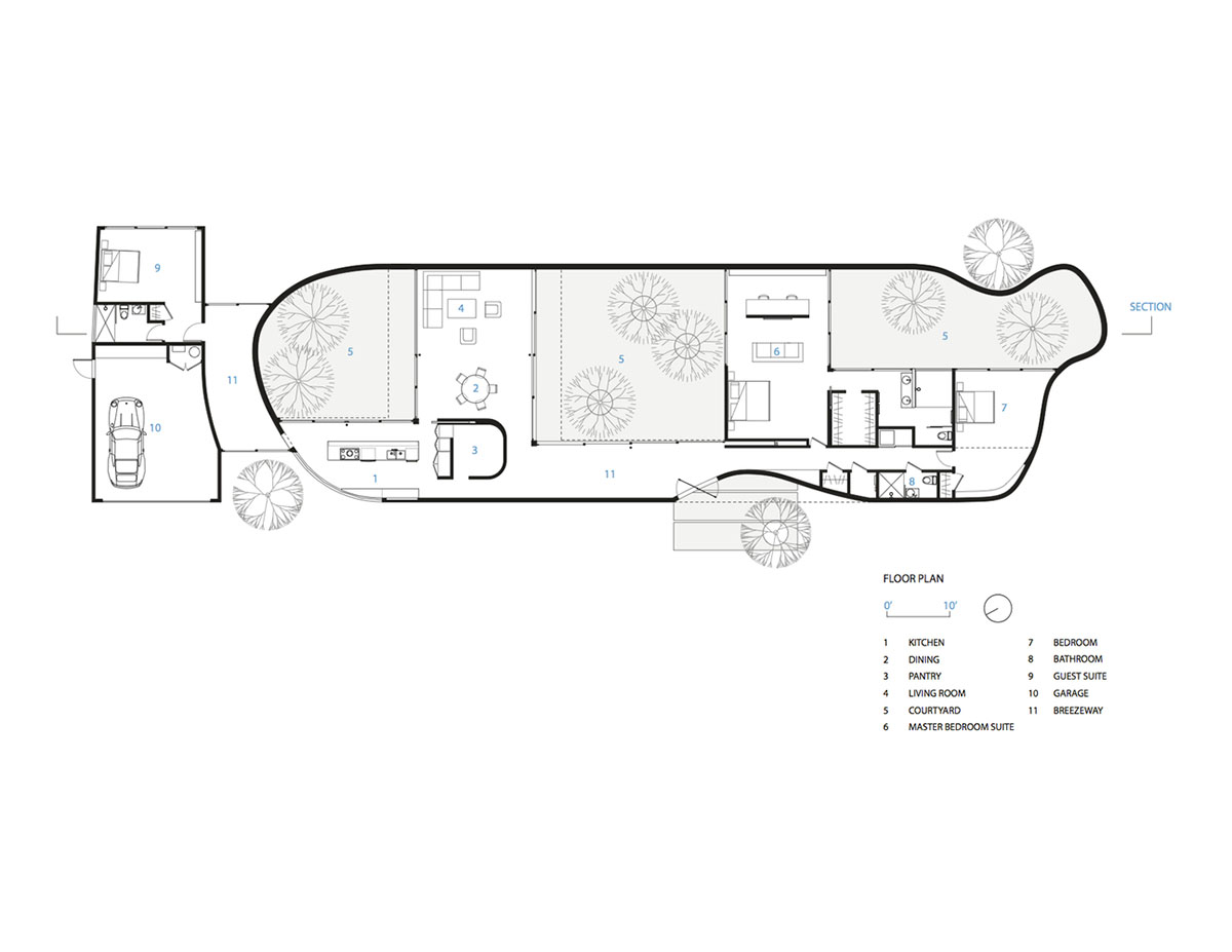
Inside, the house contains an open kitchen, dining & living area, pantry, master bedroom suite, bedroom, bathroom, guest suite, garage, a hall.
Three large inner courtyards are placed at each side and the center of the house. Among these courtyards the living room and master bedroom suite are designed to overlook at the greenery.









Site plan

Plan

Roofless section
Craig Steely Architecture was founded by California and Hawaii based architect Craig Steely. The firm's buildings have been described as true and unique hybrids of these two environments. The studio designs residential houses and retails in various scales and sizes.
Project facts
Project name: Roofless House
Architects: Craig Steely Architecture
Location: Atherton, USA
Size: 269m2
Date: 2018
All images © Darren Bradley
All drawings © Craig Steely Architecture
