Submitted by WA Contents
CPDA Arquitectos completes housing with dusty pink residential volumes in Mexico city
Mexico Architecture News - Jun 18, 2021 - 12:10 5295 views

Mexican architecture practice CPDA Arquitectos has completed a new residential complex that features dusty pink volumes marking the building from afar within a neighborhood in Mexico city, Mexico.
Named Casa Jardin Escandón, the 2,300-square-metre development is a mixed-use project that contains a commercial space at the street level.
Located at 19 Agricultura Street in the Escandón neighborhood of Mexico City, the Escandón neighborhood has gained an increase in the past years, with that fresh and youthful vibe, where art deco buildings coexist with new contemporary buildings.

The main goal of the project for CPDA was to create a project to live with itself towards the interior of the complex, partly narrow partly surprising and meandering.
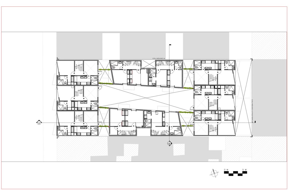
The team deliciously designed a verdant inner courtyard that is meandering into the spine complex, this courtyard creates a tranquil yet sociable feeling through the building.

The residential complex contains 14 homes in which each of them brings natural light and cross-ventilation inside. Four of the homes are apartments and placed on the ground level.
This compact space is navigated by a zig-zagging path that accommodates triangular balconies for a pair of ground floor apartments.

The architects chose to use Galarza stone to cover the volumes as it has a traditional inspiration that identifies the neighborhood.
"With a gabled facade facing the street where the concrete slabs stand out, which in turn on the first level stand out from its alignment to generate balconies to allow a freer relationship with the outside in the social areas of the residential interior," said CPDA Arquitectos.
"On the other hand, the interior facades towards the central courtyard have a different language, where a game of different windows, openings and gabled roofs are generated, to create a simple, dynamic, fun and ingenious form of the complex."

The interior façades are made of light Galarza bricks to offer a crisp yet tactile backdrop for the courtyard´s rich greenery, while earth tones on the windows and railings reinforce a grounded, soothing ambiance.
In a small courtyard, the unfussy combination of light tones and subtle brick articulation also make for a more comfortable space.

Four suites wit private green space are placed on the ground floor, with 10 larger three-storey apartments above. On the upper levels, the architects designed three-storey townhouse-style homes and each features a private rooftop garden.

Atop the brick-clad form that defines the building's street level presence, the uppermost storey combines outdoor green space with discrete dusty pink residential volumes set back from the courtyard. From above, it's a graceful accent on the tree-lined local skyline.
"The central courtyard of the project houses a variety of native plants and species tolerant to sunlight, whose familiarity with the local climate negates the need for much maintenance in the future. A space that invites you to reflect and contemplate the central garden and its different species of plants and flowers," said the architects.

As the studio explains, this interior garden becomes the most important element of the design proposal, where users look for a magical presence where architecture creates the space for permanence and contemplation.

The team carefully considered the distance, orientation and arrangement of the balconies facing the central courtyard to be able to create a discreet, private and peaceful interaction between the residents and their shared "secret garden".

The access was designed as a cave with a gabled ceiling, which felt as if it had been carved out of the stone volume and functioned as this traditional space between the street and the interior of the complex.
Where the visitors are received with a view frame by the light, the landscape and the stone, a moment where the person moves away from the reality of the city.

The result is a physical manifestation of the idea that architecture can connect with the built environment and the natural environment, adding its benefits to offer a more complete and harmonious life experience.








Level 1 floor plan

Level 2 floor plan

Section

Section 2
CPDA Arquitectos is a studio of young architects and designers founded in 2016 by Juan Pablo Cepeda in Mexico City. The firm produces projects in various types and scales.
Project facts
Project name: Casa Jardin Escandón
Architects: CPDA Arquitectos
Location: Mexico city, Mexico
Size: 2,300m2
Date: 2020
Landscape: Entorno Taller de Paisaje
Architects In Charge: Juan Pablo Cepeda
Design Team: Eloisa Queijeiro, Luis Enrique Angeles, Agustin Perez
Engineering: Marcos Molinar
All images © Jaime Navarro
All drawings © CPDA Arquitectos
> via CPDA Arquitectos
