Submitted by WA Contents
Practice on Earth and Increments Studio complete inflatable structures in Ningbo, China
China Architecture News - Feb 24, 2026 - 05:22 1855 views

Practice on Earth and Increments Studio have completed a trio of inflatable structures in Ningbo, China.
Called Down in the Clouds Farm Field Renovation, the structures are situated in the Dun'ao Village which is tucked away interior among low hills in Sizhoutou Town. The idea of a tiny valley surrounded by mountains is embodied in the phrase.

The Cloud Cafe
The studio thought it was crucial to convey the tranquility and calm of the farmlands encircled by hills at the beginning of the project. They intended to convey these ideas through a series of brief poems and drawings rather than conventional architectural structures.
The link between the body and nature was reexamined as a result of this abstract and reductive approach, which revealed the possibility of it being humorous and lighthearted.

The Cloud Cafe
Old billboards, utility buildings, storage buildings, and other abandoned structures that once stood in the field have been replaced by the new structures. After looking into material systems that were both practical and affordable for the project's budget and schedule, the Studio decided to use a mix of inflatables and steel containers.
They selected those technologies because they were quick to install and allowed them flexibility. This inspired them to investigate how these seemingly unrelated components might be combined to produce unique and entertaining spatial experiences.

The Cloud Cafe
The Cloud Cafe
The first location is where an ancient utility building that had been abandoned for a long time is situated at the farmland's entrance. Naturally, the site required a new "landmark" at the entrance.
The Cloud generates a sizable cantilevered space underneath the inflatable in addition to being a visually recognizable concept with significant public appeal. Without disturbing the nearby farms, this covered spot provides shade and rain protection for a variety of activities.
In order to satisfy the needs of their contents and transportation logistics, steel containers are typically constructed off-site into uniform proportions. The containers for this project were modified to serve as occupiable structures utilizing standardized steel components rather than being reused as "off-the-shelf" containers. To serve the outdoor platform below the "cloud," a small coffee station was built into this 3x3x8m conventional tower unit. Accessible exclusively through the "cloud," a viewing platform atop the tower provides a distinctive view of the nearby rice fields and mountains.

The Leaning Cinema
The Leaning Cinema
An existing billboard serves as the site of the second intervention. The client's goal was to design a climate-controlled salon area where guests could relax or congregate in all seasons, including summer and winter.
The Studio angled the container at a 15-degree inclination so that the structure only utilizes two points of support, producing a slope for stepped internal area for screenings, in an effort to have as little of an impact as possible on the farmland.

The Leaning Cinema
In addition to hiding the structural components and AC access points, these supporting columns are wrapped in specially made inflatable rings, which also add a playful visual element. The heavy container appears to casually lean against soft, balloon-like forms, creating an intriguing unfamiliarity in scale and material.
The screening room is compact but well-equipped, spanning slightly more than 30 square meters. The design incorporated the air conditioning, speakers, projector, screen, and other devices.

The Leaning Cinema
Wood wool panels are used as beautiful wall and ceiling treatments as well as an acoustic treatment. Visitors can comfortably relax on the floor beyond the typical wooden steps thanks to curved backrests that were ergonomically made to accommodate their bodies.
This particular element wonderfully fits the relaxed vibe of "Leaning Cinema."

The Leaning Cinema
The Secret Reading Room
At the base of the hills is the third location, which is another abandoned utility facility. It was perfect for turning into a reading area over the farmland because it was peaceful and had an open outlook.
The Studio looked for a third method to attach containers to inflated forms for this site. They reached seven spherical inflatables positioned above the rice fields inside a steel frame.

The Leaning Cinema
In order to enter, guests must split these soft spheres, which form a circular "wall" without an entrance. Many visitors later commented that they didn't know the spheres were soft, bouncy balloons rather than solid until their bodies contacted the inflatables. Conventional building materials seldom provide this tactile surprise.

The Leaning Cinema
The aluminum panel ceiling, stainless steel workstations, and gridded floor panels in the semi-outdoor reading area contrast sharply with the smooth, white, rounded shape of the inflatable, resulting in a combination of whimsical softness and chilly austerity.
The spheres get particularly plump and taut in hot weather because of the increased warmth. Bright sunshine from the south side, once filtered, enters beneath the roof and, coupled with the semi-reflective ceiling surface, generates a unique shadow effect.

The Secret Reading Room
Technique, experiment, and local construction
Inflatables are typically utilized in temporary exhibits, but in this project, they were planned as a permanent aspect of the building. Significant difficulties with longevity, upkeep, and the formal expression of the idea were presented by this unorthodox method.
In order to address these, the team worked closely with the manufacturer to do several rounds of prototypes and devoted a significant amount of time to research throughout the implementation phase.

The Secret Reading Room
They employed different inflating techniques for each of the three places because the site conditions varied. The Studio used a continually inflated PVC mesh system because of the Cloud Cafe's size and the necessity to retract in inclement weather.
Two blowers maintain internal pressure using air vents along its two-meter-high sides and 100-foot base, guaranteeing stability even in the event of a puncture and reducing material weight in half as compared to sealed inflatables.

The Secret Reading Room
From the first 1:20 handmade model to the factory's 1:4 inflatable prototype to the full-scale 1:1 construction, the process served as repeated rehearsals of the on-site assembly sequence—a crucial factor in design for procurement-based projects—in addition to testing the viability of inflating at such a large scale.

The Secret Reading Room
Sealed, thicker PVC with seamless welding was utilized to create a smooth, glossy surface for the movie theater and the reading area because both inflatables are entirely spherical spheres. Several unforeseen problems surfaced during the 1:2 prototyping of the cinema inflatable: it was difficult to make sure the ring-shaped tail closed tightly after inflating, and the combined weight of the material and air created perceptible sagging.
Through several iterations of scale modifications and fabrication improvements with the manufacturer, these issues were progressively fixed.

The Secret Reading Room
The ceiling, rails, and inflatable installation required on-site labor even though the primary framework and inflatables were prefabricated. Communication was more important than the drawings because of early mistakes and new techniques.
Once doubtful, local employees admitted that "it really looks good" after almost a month when the outcome matched the plan.
Despite its modest size, this initiative gave the crew extensive experience in agricultural and cultural tourism. Like the majority of initiatives in this industry, it involved problems and changes along the road, as well as learning via experience.
As the name "Down in the Clouds" implies, the outcome was ultimately lighthearted and delightful because of everyone's participation.

The Secret Reading Room

Cafe floor plan

Cafe section

Cinema floor plan

Cinema section

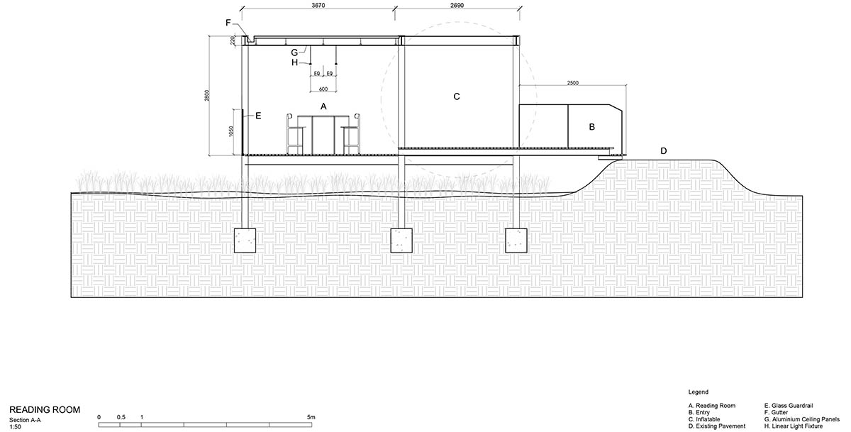
Reading room floor plan

Reading room section
Practice on Earth was founded in 2023 by Haotian Wu and Cloe Yun Wang, both of whom received Master of Architecture degrees from the Massachusetts Institute of Technology (MIT). Based in their hometown of Suzhou, the Studio pursues a design agenda that bridges cultural locality with technological experimentation.
Project facts
Project Name: Down in the Clouds Farm Field Renovation
Design: Practice on Earth + Increments Studio
Project Type: Renovation /Installation
Project Location: Dun’ao Village, Xiangshan, Ningbo, Zhejiang Province
Completion Date: April 2024
Site Area: 150m2
Building Area: 290m2
Design Team: Wu Haotian, Wang Yun, Lü Yancheng (Practice on Earth), Hu Liang, Naomi Ng (Increments Studio)
Client: Dun’ao Village Collective Economic Cooperative
Operator: Ningbo Xiangwang Cultural Tourism Co., Ltd.
Inflatable Manufacturer: Shanghai Congxi Equipment
Local Construction Team: Huang Lunyü, Wang Haihua, Master Song, and others
Container Fabrication: Ye Zhongdong’s Team
All images © Cloe Yun Wang.
All drawings © Practice on Earth + Increments Studio.
> via Practice on Earth & Increments Studio
