Submitted by WA Contents
Two Five Five Architects adds protruding bright pink marshmallow balconies to apartment in Cape Town
South Africa Architecture News - Jun 11, 2021 - 15:52 8167 views

South African architecture firm Two Five Five Architects has added protruding bright pink marshmallow balconies to a micro-unit residential apartment in Cape Town, South Africa.
Named Uxolo Apartments, the 1,306-square-metre building is marked by a series of pinkish balconies that create a playful appearance on the façade.

Image © Paris Brummer
Located in the Cape Town's central business district, the apartment building consists of 35 residential units ranging between 24-square-metre micro-studio units and 40-square-metre loft units. A lobby and retail area are designed on the ground floor.

Image © André Krige
The building is the first completed micro-unit residential development located in the Cape Town Central Business District.
"The initial development intention for the project was to create an iconic short-stay accommodation destination in Cape Town, with some long-term tenants, in the same way, that Tokyo has the Nagakin Capsule Tower and Rotterdam has the Cube House," said Two Five Five Architects.

Image © Paris Brummer
As the architects explain, the Covid-19 pandemic situation has however resulted in a re-evaluation of this approach, focusing on longer-stay tenants.

Image © André Krige
"This resulted in units that were far more complex in design to meet the considerably more extensive requirements of a permanent tenant," added the studio. "The change in focus required some additional planning but resulted in a building that arguably better responds to a need in the South African housing market."
"For residents of South African cities, there are currently few ‘curated’ and cost-effective alternatives to the South African norm of urban sprawl and long commutes."

Image © Paris Brummer
The project located on Vredenberg Lane, an alley joining Long Street and within walking distance of Kloof and Loop streets, is within easy reach of offices, eateries, transport routes, and amenities.
The apartment building features relatively small size of the units to ensure affordable prices to a large section of the market.

Image © Carel Nicolaas Smit
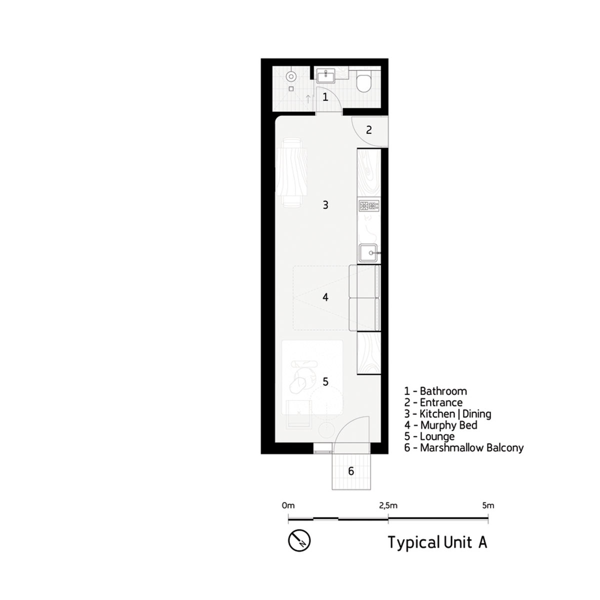
In order to successfully accommodate a long-term tenant in the micro-units, the architects paid special attention to the interior design of the units. "A single joinery unit, almost stretching the length of the unit, accommodates all the possible daily needs and activities of a resident," the architects added.

Image © Carel Nicolaas Smit
The joinery installation was designed, manufactured, and installed by Kink Design, a branch of Two Five Five Architects. The fact that the joinery installation was conceived and managed efficiently in the same office ensured that the language of the project stayed coherent.
The design of the unit simultaneously accommodates a fully kitted kitchen, built in cupboard, slide-out study desk, abundant concealed storage as well as a murphy bed that stows away to reveal a sofa for the lounge.

Image © Carel Nicolaas Smit
The studio placed four of these studio units on each of the eight floors, along with a loft unit on every second floor. To accommodate these units the small site area available had to be used efficiently, with the building built right up to the 0m building lines.
To allow for natural light in the units glass blocks were used, instead of stepping the façade back for windows.

Image © Carel Nicolaas Smit
The resultant flat façade was treated just like that, a flat plain on which a tapestry can be laid. The design takes inspiration from traditional patterns as seen in the work of Esther Mhlangu, as well as contemporary textile design such as rugs by Ninevites.
The glass bricks on the façade were combined with different face bricks by Corobrik to create a ‘tapestry’ that is low in maintenance and should age well.

Image © André Krige
The studio created "a tapestry façade" that is punctuated by bright pink ‘marshmallow’ balconies on the street façade. According to the architects, these balconies create a value-added footprint to the units from which the residents can look over the city to the iconic Table Mountain.
At the same time, the outer shape of these balconies also hint the ‘iconic’ image that that was part of the developmental brief.

Image © Paris Brummer

Image © Paris Brummer

Image © Paris Brummer

Image © Paris Brummer

Image © Paris Brummer

Image © Paris Brummer

Image © Paris Brummer

Image © Paris Brummer

Image © Paris Brummer

Image © Paris Brummer

Image © Paris Brummer

Image © Paris Brummer

Site plan

Ground floor plan

Typical floor plan

Typical Unit A

Typical Unit B

Typical Unit C

Urban elevation

South East Elevation

North West Elevation
Project facts
Project name: Uxolo Apartments
Architects: Two Five Five Architects
Location: Cape Town, South Africa
Date: 2021
Top image © Paris Brummer
All images © Paris Brummer, André Krige, Carel Nicolaas Smit
> via Two Five Five Architects
