Submitted by Sophia T
AD ARCHITECTURE from China Explored Undiscovered "Boundaries" in the XZONE Office
China Architecture News - Aug 27, 2018 - 04:42 17012 views

AD ARCHITECTURE, based in Shantou City of China, recently finished a creative office that explored undiscovered "boundaries" for their client XZONE. With the contrast of square and round elements, the ingenuous utilization of materials, colors and formations, as well as application of abstract concept, the designers created a space full of unknowns.





"A square box constitutes the main framework of the workspace. In the conversation area, we integrated semi-circle structures and a ball hung from the ceiling into the single spatial block, resulting in intersection of different boundaries," said the firm. Not restricted to a certain rule, all the elements in the space can form various combinations. When these interesting and diversified elements collide with each other, the originally ordinary space becomes unique.






Materials of different textures break the consistency in the space and endow it with various features. The steel structure of the ceiling was retained, which becomes a highlight of the spatial design. The coordinated combination of rough and delicate textures generates contrast in the space, and creates a free atmosphere in it.



The designers adopted a restraint color scheme, with white and light gray as major hues, to create a spact that is full of tension. Striking red and pink colors are dotted in the space, which inject vitality into it. In the conference area, the red sofa and pink panel form contrast with the spatial overtone set by white color. Different colors bring collisions of restraint and agitation, and at the same time facilitate emotional and idea exchanges in the space.


Scheme diagram

Scheme diagram

Axonometric drawing

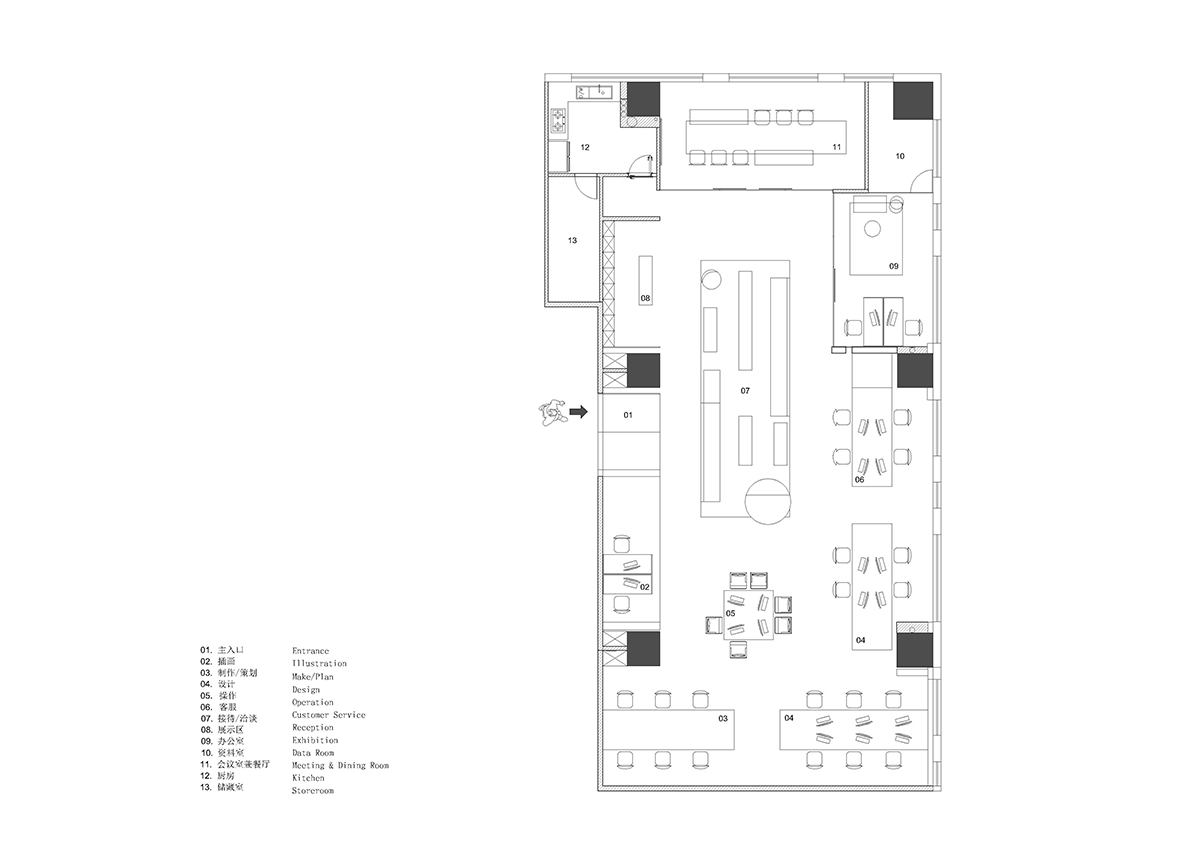
Floor plan
Project facts
Project name: XZONE Office
Design company: AD ARCHITECTURE
Chief designer: Xie Peihe
Design team: AD ARCHITECTURE
Construction team: AD ARCHITECTURE
Project location: Shantou City, Guangzhou Province, China
Project area: 280 sqm
Main materials: floor paint, gray latex paint (NipponPaint), concrete slabs
Design time: May 2018
Completion time: July 2018
All Photos © Ouyang Yun
> via AD ARCHITECTURE
