Submitted by WA Contents
MIA Design Studio completes family house with angular roof in Vietnam
Vietnam Architecture News - Dec 12, 2022 - 12:41 3097 views

Vietnamese architecture firm MIA Design Studio has completed a family house with an angular roof in Ham Thuan Bac District, Binh Thuan Province, Vietnam.
Named Binh Thuan House, the 126,2-square-metre house is located in Phan Thiet city, Binh Thuan province for a family who have four family members.
From the beginning, MIA Design Studio conceived the project with a limited budget and analyzed the basics demands required for a young family's life.

These inputs guided the direction to approach architecture practically, mannerless and highly proactive. Another interesting thing is that the project was designed and built during the isolation in the Covid epidemic, so the architects had to come up with a design direction that could be communicated and managed remotely with the local construction team.
The house had to become an ordinary residential architecture. That's why the studio preferred to arrange every element in a very basic way.

These basics included the organization of natural light, natural ventilation, and create the functional spaces and internal circulation, thereby create both behavior and life.
"Because the basic is concentrated as much as possible, the house forms the outer covering, as well as the roof, pillars... naturally," said MIA Design Studio.
"From the outside, it looks like a common corrugated iron house in countryside with a prefabricated steel frame structural system."
"However, it also implies that the bearing frame of the house must also be a sliding door frame, a frame for hanging furniture, a frame for curtains, a frame for hanging clothes... We seek to reduce the cost of construction by the way to create multiple-role playing structures," the architects added.

The studio could find the construction material easily in around 1 kilo meters away.
In addition, the form of the interior design of the house would initially be three-dimensional hollow frames that are modularized so that the owner can develop more spaces later without breaking the general design.

The studio created a house where the load-bearing structure presents a true architecture form, and then the plays the furniture parts as well.
The space of the architecture at this time has created a premise for users to participate in shaping the aesthetic in the next stage.

Depending on the needs of use and lifestyle, the general aesthetic of the building will be flexible corresponding to the modular system without causing conflict with the architect's original design.
This design experience has question us how to build when the resources around us become limited, which values turn superficial and invariant over time. "Sometimes, the basic is sometimes the best we can do!," the studio said.























Site plan

Axonometric drawing

Axonometric plan

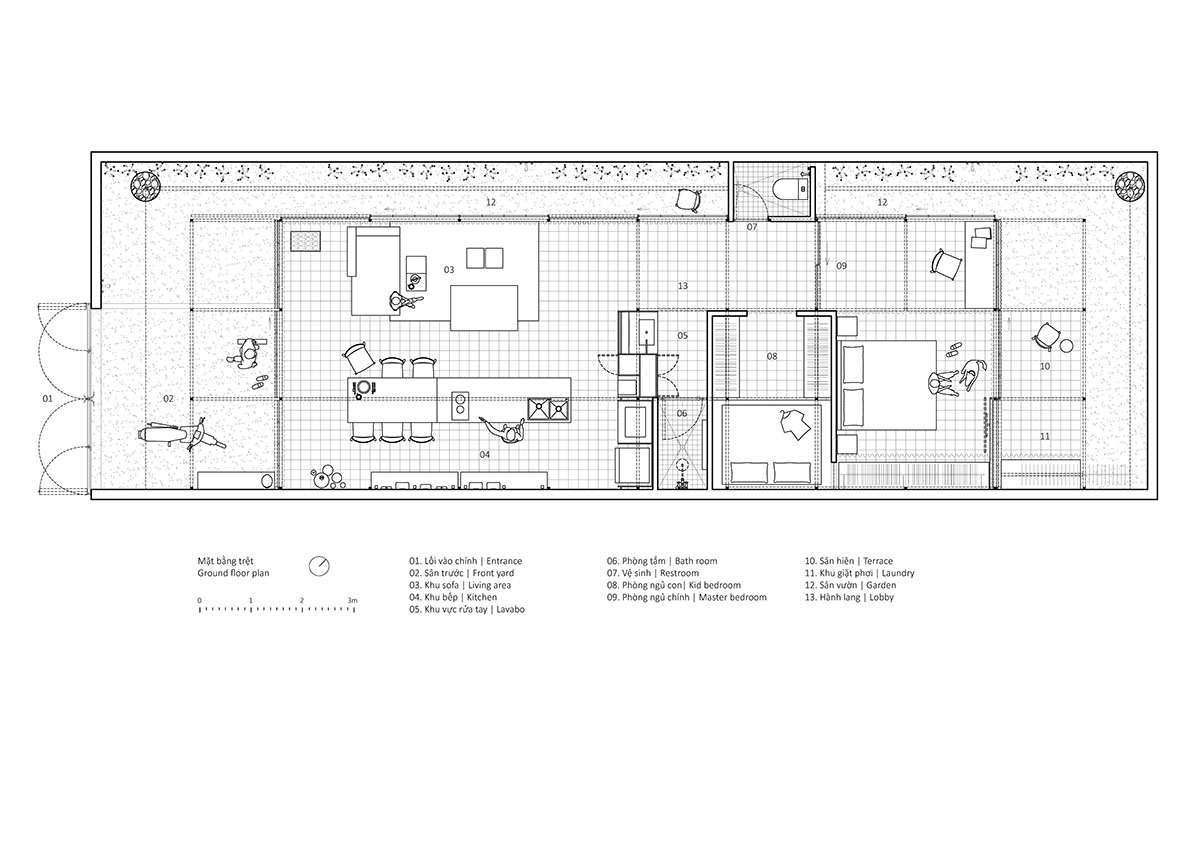
Ground floor plan

Roof plan

Section AA

Section BB

Section CC

Section detail
Project facts
Project name: Binh Thuan House
Architects: MIA Design Studio
Location: Ham Thuan Bac District, Binh Thuan Province
Client: Private
Designed in: 2021
Completed in: 2021
Land Area: 150 m2
Construction area: 126.2 m2
Total floor area: 86.3 m2
Principal Architect: Nguyen Hoang Manh
Architecture, Interior and Technical Design: Truong Nguyen Quoc Trung, Le Kim Dieu Thien
General Contractor: Coppha Builder
Interior Contractor: H2
Curtain supplier: LAM weaving spaces
Loose furniture: LAITA Design Studio
All images © Trieu Chien.
All drawings © MIA Design Studio.
> via MIA Design Studio
