Submitted by WA Contents
Four A-framed cabins by Atelier L'Abri captures the wild beauty of Canadian region for campers
Canada Architecture News - Dec 12, 2022 - 14:48 3192 views

Four small A-framed cabins designed by Montréal-based architecture practice Atelier L'Abri captures the immerse and the wild beauty of a Canadian region for campers.
Named Farouche Tremblant, the 464-square-metre cabin complex is set against Mont-Tremblant National Park, and nestled within the Devil’s River valley, the Farouche agrotourism site offers a singular and unique concept for the Laurentians region of Quebec.

The aim of the project is to make the most of the natural and untamed qualities of the territory of almost one hundred acres.
The project combines a Nordic farm, a café-bar, four-season micro-refuges, and an outdoor basecamp.

On the north side of Chemin du Lac-Supérieur, there is a barn that serves as the headquarters for the farm activities. On the other hand, the route guides visitors to the small organic vegetable farm that goes through the tunnel greenhouses, flower fields, and fallow land.
The hiking trails begin behind the agricultural building and allow visitors of the Farouche site to explore the mountains of the Devil’s valley.

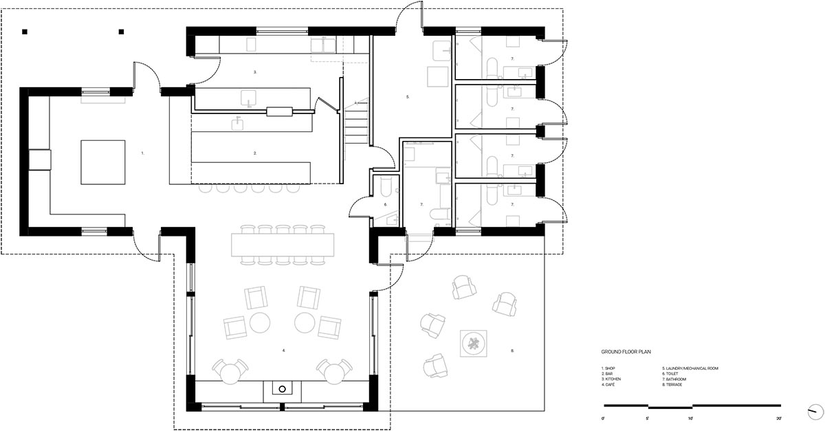
On the river side, to the south of the road, the café is at the heart of the activities offered on the site.
Upon entering, visitors encounter a welcoming building through the small market, then visitors can see seasonal products from the Farouche vegetable farm, as well as other goods such as cheeses, beers, and wines from local producers.
The dining area and its kitchen offer passing visitors and cabin guests the opportunity to taste meals from the farm's production.

The café lounge opens towards the river: its large west-facing windows offering unique views of Mont-Tremblant and sunsets behind the Laurentian mountaintops.
At its center, the wood stove’s fire invites patrons to gather together and observe the ever-changing silhouette of nature. Nestled in the cathedral roof, a mezzanine space offers a quiet, set back living room.
The building’s materiality is sober; the charcoal-colored steel roofs and the natural hemlock siding are reminiscent of vernacular farm buildings.

The cabins are clad in cedar shingle and micro-cabins camp stands south of the café. The cabins are organized organically, while they are connected by a winding path.
Each of the four small A-frame shelters contains a king bed, a sofa, and a gas stove within their compact plan.

Conceived as minimalist cabins, the buildings recede in the landscape and allow guests to fully immerse in the wild beauty of the Devil’s River.
The project was documented by photographer Raphaël Thibodeau over a twenty-four-hour period in order to capture the evolution of the site, from the sunrise over the river, to the nocturnal observation of the cabins illuminated by the moonlight.














Site plan

Exploded axonometric drawing

Exploded axonometric drawing

Ground floor plan

Mezzanine floor plan

Floor plan
Project facts
Project: Farouche Tremblant
Site: Lac-Supérieur, Québec, Canada
Area: 5000sf (464sm)
Client: Farouche Tremblant
Architecture: Atelier L’Abri
Construction: Construction Pascal Rondeau
Engineering: Alte Coop
Project Team: Stefania Praf, Charles-Édouard Dorion, Vincent Pasquier, Nicolas Lapierre, Francis Martel-Labrecque
Products: Lepage Millwork, Vicwest, Scierie Armand Duhamel & Fils, Entrepôt du Cèdre
Delivery: 2022
All images © Raphaël Thibodeau.
All drawings © Atelier L’Abri.
> via Atelier L’Abri
