Submitted by WA Contents
Foster + Partners completes EU’s tallest building in Warsaw
Poland Architecture News - Oct 26, 2022 - 16:16 4931 views

British firm Foster + Partners has completed a new 310-metre tower in Warsaw, Poland, which is the tallest tower in the European Union.
Named Varso Tower, the tower was built as an integral part of HB Reavis' Varso Place development in Warsaw, Poland.
The 53-storey skyscraper contains generous, modern office spaces with restaurants, shops, and cafés, with an observation deck at 230 metres for office employees to grasp the views towards the city.
Construction began on the tower in 2017, and although its completion date was scheduled to be completed in 2020, Foster + Partners completed the tower this year.

At a record-breaking 310 metres Varso Tower is the tallest tower in the European Union, rising above the adjacent Palace of Culture and Science
Located at the corner of Jana Pawla II and Chmielna Street, the tower is described as "a gateway to the new development and draws people through the building towards the public plaza on its western end that connects to the neighbouring buildings."
Developed by international real estate developer HB Reavis, engineering company Buro Happold was responsible for engineering services and Epstein served as a collaborating architect on the project.

Varso Tower is a timeless addition to the skyline and a vibrant destination in the heart of Warsaw
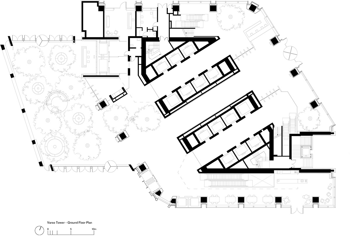
A large plaza makes up the social heart of the project, which is enclosed within a glazed screen and animated with full height trees and benches for people to enjoy the surroundings.
There is an "urban room" at the centre of the plaza to create a seamless connection between people who work in the offices and for whom want to use it as a sit-out during breaks – and the public, giving access the shops and restaurants in the neighbouring buildings.

The social heart of the project is a plaza enclosed within a glazed screen, animated with full height trees and benches for people to enjoy the surroundings.
"We are so proud to be part of this development. Our client HB Reavis has been a fantastic champion of the project throughout and our local collaborators at Epstein and Buro Happold have worked tirelessly alongside us," said Grant Brooker, Head of Studio, Foster + Partners.
"We believe that the tower, filled with activity and featuring extraordinary rooftop public spaces will make a strong, positive contribution to this wonderful city. We hope that it will become a hub for local and international business and a symbol for contemporary Poland," Brooker added.

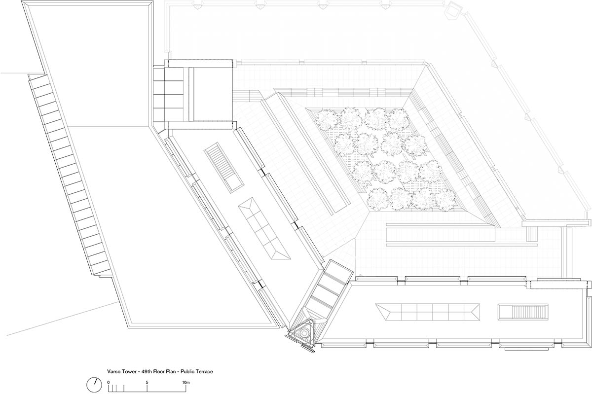
The public realm continues at the top of the tower, accessed directly from the ground via two panoramic lifts, with a viewing platform at level 53
Another public realm is also created at the top of the tower, which is accessed directly from the ground via two panoramic lifts, with a viewing platform on the 53rd floor.
"This is the highest inhabited floor in Poland with uninterrupted views of the city," said the studio. "Level 49 will soon offer a fully landscaped terrace bar, with sixteen trees, breaking the record for Warsaw’s highest garden."
"We are delighted to see the first tenants moving into the tower, which is the product of close collaboration between Foster + Partners and HB Reavis," said Krzysztof Gornicki, Partner, Foster + Partners.
"The tower’s lobby features a 10-metre-high ceramic artwork by the local artist Krystyna Kaszuba-Wacławek, which brilliantly animates the space," Gornicki added.

The tower’s lobby features a 10-metre-high ceramic artwork by the local artist Krystyna Kaszuba-Wacławek, which animates the space
Two banks of high-capacity double-deck lifts are dedicated to the offices, while each car serving two floors at any one time.
Premium office spaces encompasses a total of 70,000 square-metres, and to create open plan offices the tower is benefitted from large-span floorplates and three-metre clear ceiling heights.

The tower’s lobby features a 10-metre-high ceramic artwork by the local artist Krystyna Kaszuba-Wacławek, which animates the space
"Varso Tower is a timeless addition to the skyline and a vibrant destination in the heart of Warsaw. In addition to the flexible office spaces, the building gives back to the city by providing a dynamic public realm. The tower’s direct underground link with the adjacent Warsaw Central Station will breathe new life into the surrounding urban quarter," said Jedrzej Kolesinski, Partner, Foster + Partners.
The building holds BREEAM Outstanding and WELL Gold certification, due in part to its triple-glazed façades.

Varso Tower, an integral part of HB Reavis' Varso Place in Warsaw. At a record-breaking 310 metres it is the tallest tower in the European Union

Level 49 offers a fully landscaped terrace bar, with sixteen trees, breaking the record for Warsaw’s highest garden

At a record-breaking 310 metres it is the tallest tower in the European Union

Varso Tower is a timeless addition to the skyline and a vibrant destination in the heart of Warsaw

Site plan

Ground floor plan

38th floor plan - typical floor plan

49th floor plan - public roof terrace

Section

East-West elevations
For landscape design, Foster + Partners worked with Polish studio RS Architektura on the project.
Foster + Partners recently completed the headquarters of Ferring Pharmaceuticals with cantilevered roof canopy in Copenhagen, Denmark and DJI Sky City, a pair of skyscrapers connected by an almost invisible 90-metre-long suspension sky-bridge in Shenzhen, China.
All images © Aaron Hargreaves / Foster + Partners.
All drawings © Foster + Partners.
> via Foster + Partners
