Submitted by WA Contents
GRACE studio to renovate Uzbekistan's modernist building as a new art restoration center in Tashkent
Uzbekistan Architecture News - Mar 22, 2022 - 16:29 4522 views

Milan-based architecture studio GRACE has revealed design to renovate Uzbekistan's modernist building as a new art restoration center in Tashkent, Uzbekistan.
GRACE studio was commissioned to design a large-scaled international art restoration center in Tashkent, while opening up the existing building with more transparent architecture, pinkish façade elements and human-scaled courtyard.
Scheduled to be completed in the end of 2023, the renovation will consist of a French cultural center and an international art restoration department as well as providing new leisure areas for the public.
The restoration is being backed by Uzbekistan’s Art and Culture Development Foundation.
Image © Alexey Naroditsky
The building of the former Intourist Cultural and Information Center, was built in 1987 and is known one of the monuments to Tashkent modernism.
During the years of independence, the building housed the office of the State Committee for Tourism Development of the Republic of Uzbekistan.
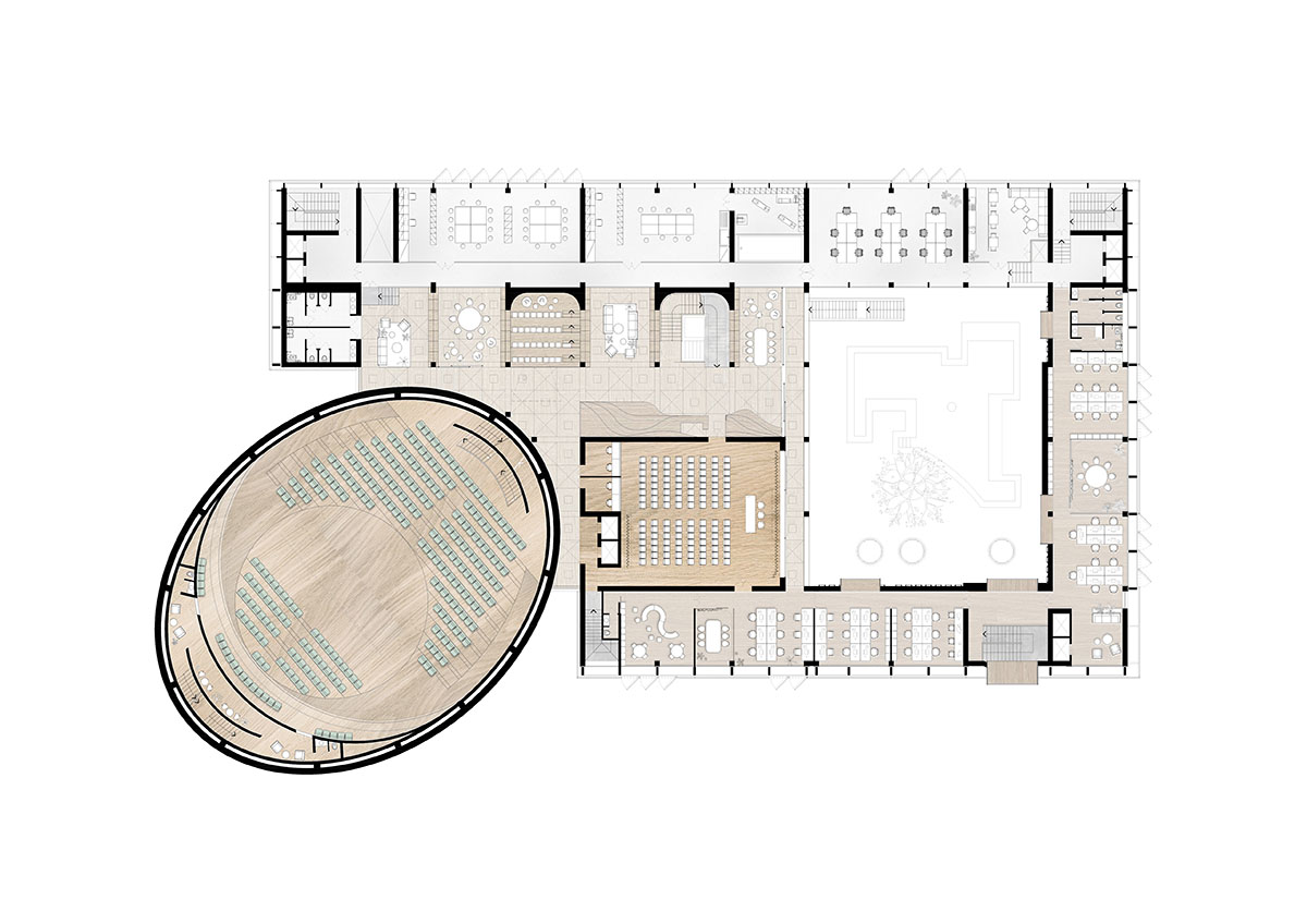
When completed, the new building will house two new cultural institutions-the French Cultural Center and the Research Center for the Restoration of Cultural Heritage Objects and Artworks, including a modern library, a coworking center, a cinema, and a restoration laboratory.

GRACE studio will maintain the original spatial composition, alongside the restoration laboratories and public areas.
Besides, the plans will accommodate a modern configurable hall auditorium for theatrical performances, concerts and film screenings.

"The uniqueness of the project lies in the scale of the reconstruction, which is unusual for Central Asia. We hope that the project will set a new trend in the architectural development of the region as a whole, and will allow us to take the first step in introducing a competent and modern approach to the preservation of our heritage," said Gayane Umerova, executive director of the Foundation.
"In housing the country’s very first center for the restoration of cultural objects, this building will help revive the restorative traditions lost over the past 20 years, which at one time were among the strongest in the region," Umerova added.

"The center’s public spaces will be characterized by complexly organized visual connections, through which they communicate with one another," said Ekaterina Golovatyuk, co-founder of the studio GRACE.
"During the reconstruction, we will expand on the original site, opening access to the courtyard, lobby, and roof, while dismantling the walls erected in the early 2000s to help recreate a transparent and open architecture."

GRACE traditionally works with themes of preservation and architectural heritage.
This approach is exemplified in one of Ekaterina Golovatyuk's standout projects the Garage Museum of Contemporary Art, which she worked on as a member of the OMA bureau of Rem Koolhaas.
This innovative project involved the reconstruction and conversion of the Vremena Goda restaurant – an example of post-war modernism – into a modern museum space.

"For the last 10 years we have been working with the concept of heritage, trying to rethink its meaning and adapt it to new requirements. However, this doesn’t mean that we have any set approaches or solutions," said Ekaterina Golovatyuk.
"We do not work to a rigid imperative, which might require, for example, that all aspects of an original construction must be preserved."
Golovatyuk added that "With each new project we work out a bespoke philosophy and strategy, depending on the cultural context, the condition of the building, the objectives of the client, and so on."
"This involves conducting original research for every new endeavor, upon which we build a distinctive narrative. The only constant for us is a dedication to preserving historical traces – and not just in its monumental, assertive manifestations, but also as an everyday, contemporary historicism which is more subtle, complex and ambiguous."

Foundation office view
In a 2022 collaboration with the Louvre, Uzbekistan’s Art and Culture Development Foundation is putting on a unique archeological exhibition featuring more than 200 original pieces from museums across Uzbekistan, which will be shown outside the country for the first time.
"When we started thinking about the exhibition at the Louvre and the future of the French Center, the obvious decision was to also create a new Restoration Center in Tashkent, since there are no modern laboratories or young specialists in our country. Bringing the French Center and the Restoration Center together in the same building seemed like the most logical and natural solution," said Gayane Umerova.

Foyer exhibition view

Foyer exhibition view

Foyer view

French Center, co-working space

French Center, lecture halls view

Library view

Library view

Multi-function hall

Multi-function hall

Theatre view

Theatre view

Theatre view

Restoration lab

Model view

Model view

Basement floor plan

Ground floor plan

First floor plan

Second floor plan
The original condition of the building. Image © Alexey Naroditsky
Image © Alexey Naroditsky
Image © Alexey Naroditsky
Image © Alexey Naroditsky
All images courtesy of GRACE unless otherwise stated.
> via GRACE
