Submitted by WA Contents
Uygur Architects completes Presidential Symphony Concert Hall and Choir Buildings in Turkey
Turkey Architecture News - Oct 22, 2021 - 11:26 3995 views

Turkish architecture practice Uygur Architects has completed the Presidential Symphony Orchestra Concert Hall and Choir Buildings in the capital city Ankara, Turkey.
Named Presidential Symphony Orchestra Concert Hall and Choir Buildings, the 62,547-square-metre complex comprises triangular prisms, dome-shaped volumes and diagonal structures derived from the distinct and dynamic Euclidean forms to created a poetic composition.

Described as a new landmark in Ankara, each volumes has a different function, while the complex aims to prove an asset to both local and global music scene while being the instigator of interaction and exchange among citizens.
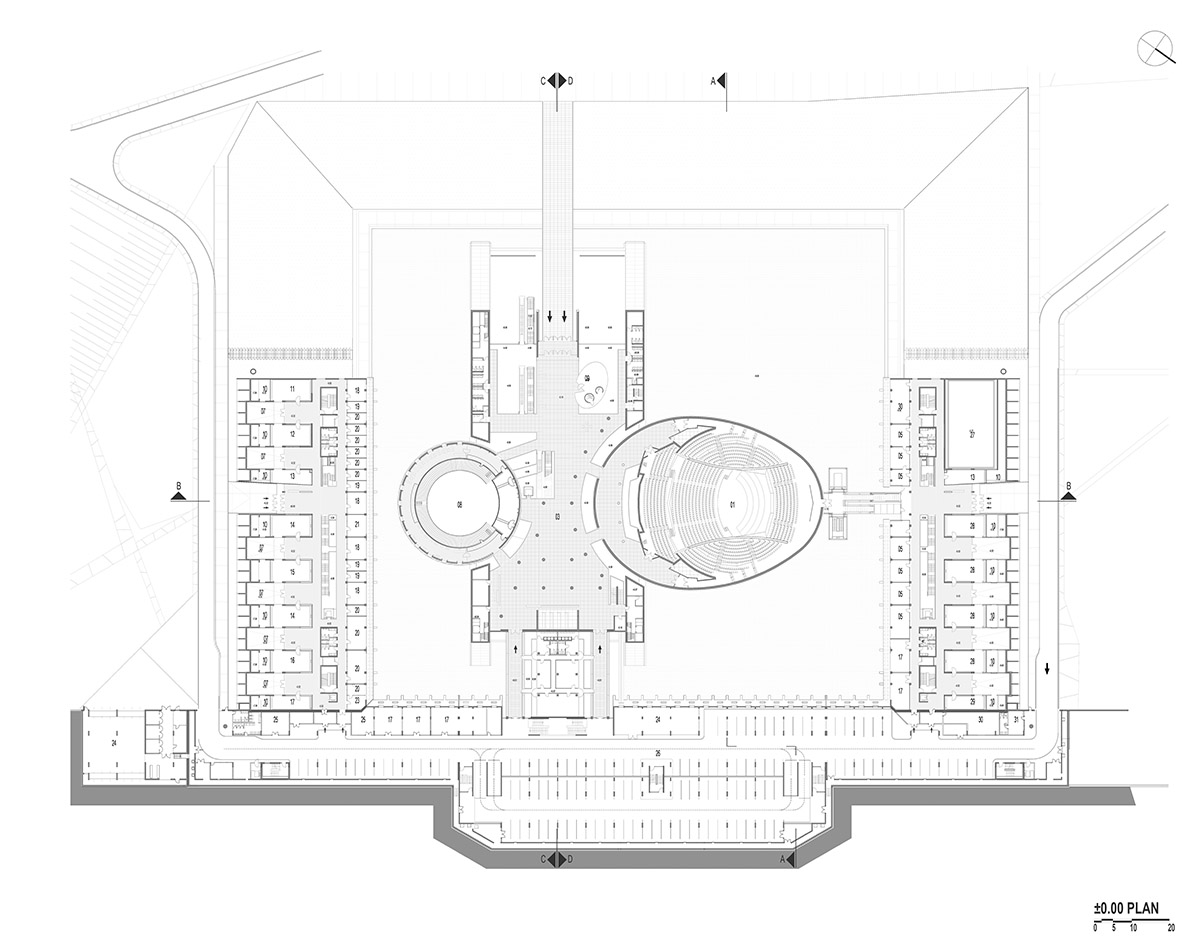
The program of the complex is comprised of a foyer, a 2,000-seat Symphony Orchestra Hall and a 500-seat Chamber Orchestra Hall.

Commissioned by the Republic of Turkey Ministry of Environment and Urbanisation, Uygur Architects' proposal was selected in a design competition in 1992. Construction began in 1997 and was completed in 2021.
In the competition, the project was praised among other competition entries with its two prominent features: "One was this subtle symbolism concerning the dialogue of the premodern and modern-republican histories of the city," the office emphasized.

The Presidential Symphony Concert Hall lies in the heart of the city, right in the middle of an axis connecting the historic Ankara Castle and Anıtkabir, the Mausoleum of Mustafa Kemal Atatürk (the founder of Turkish Republic).

The project is embedded in a relatively abandoned urban landscape, which is the only gap looking towards Anıtkabir and the historic Ankara Citadel from Ataturk Boulevard, which functions as the main avenue since the first urban plans of Ankara. According to the studio, the decision was to avoid interrupting the views of both the Citadel and the Mausoleum.

The configuration of the complex is so designed that the triangular prism foyer establishes the dialogue between Ankara Citadel and Anıtkabir.
Thus, a depiction of the “Before and After Republic” is intensified through a cultural house. This foyer is designed as an “urban room” by being transparent and publicly accessible. The colossal egg-shaped dome is designed as the Symphony Orchestra Hall with the capacity of 2000 audience, and the sphere dome is designed as Chamber Orchestra Hall with the capacity of 500 audience are popping out of this vaulted triangular prism foyer.

Following the vineyard concept of concert hall, the musicians are placed in the middle, while the audience surrounds the stage, rising up in steeply sloping rows.
The architects draw inspiration from the distinct and dynamic Euclidean forms and their poetic compositions to depict a symbolical approach.

While the Foyer and the Concert Halls are located on the lowest level of the site and a reflection pool surrounded them, a pool mirrors the sky, the city and the halls around, reflecting the different weather conditions and redefining the atmosphere every single day.
On both sides of this rectangular pool, two identical buildings are positioned diagonally, as if they emerge from the ground, enigmatizing and embracing the concert halls.

"The complex creates a crater lake imprint and otherworldly impact," said Uygur Architects.
"In these upward-tilted buildings, administrative and educational units and professional studios are placed."
"Guest’s experience is a clear incentive which eschews a singular roof or facade to convey a sculptural structure composed of seemingly independent forms and the balance of curvilinear and sharp-edged buildings," the firm added.

Located in the heart of the city, The Presidential Symphony Concert Hall Complex stands as an architectural landmark and can be seen by all because of its significant positioning and striking image.
The studio added that "The design was an early statement that heralded the future. Surprising as it may be for the time of its conceptualization, the design remained fresh in its futuristic aesthetic."

During this 29 years period since the competition, 5 Presidents, 10 Prime Ministers, and 20 different Ministers of Culture have taken charge in. Since this project has an unprecedentedly drawn-out story because of disparate priorities of the state, the project has been re-visioned by the architects several times according to the changed regulations (fire regulations, climate regulations, earthquake regulations etc.).

Even though the project was started to be drawn by hand at first (because of the starting date), the studio stated that "in this long process of 29 years all new technologies have been involved from simple computer drawing software to parametric technologies."
"The project had a painful and unsettled construction process, but architects managed to stick to their original concept and update the project details and solutions by the help of new technologies and current construction developments."

Despite all these updates and changes, according to the studio, the project reveals itself as a layered architectural timeline.













Site plan

-10.70 floor level

-8.40 floor level

- 4.60 floor level

Ground floor plan

+4.40 floor level

Sections

Elevations
Uygur Architects previously completed a performing arts center at the TED Ankara College Campus in Ankara, Turkey.
Project facts
Project name: Presidential Symphony Orchestra Concert Hall and Choir Buildings
Location: Altındağ, Ankara, Turkey
Project: 1993 - 2012
Construction: 1997-2021
Size: 62.547 m2
Design: Semra Uygur, Özcan Uygur
Project team: Necati Seren, Güliz Erkan, Metin Cihan Yıldırım, Ayça Tüzmen, Kamer Tomris Çetin, Esra Gömceli, Deniz Karabacak, Oya Caymaz, Bozkurt Yurdaku, Umut Toker, Sandro Capadona, Onur Ergen, Ayhan Abanozcu, Alper Derinboğaz, Gökhan Kınayoğlu, Emre Şavural, Ecren Başbuğ, Ramazan Avcı, Aslı Kaya, Evrim Özlem Kale, Özcan Kaygısız, Eser Köken, Ebru Can, Rabia Uçay, Kemal Yurtgezen, İrem Erdinç, Mustafa Kır, Deniz Uygur.
Civil Engineering Project: Danyal Kubin, Prota Mühendislik
Mechanical Engineering Project: Bahri Türkmen, Bahri Türkmen Mühendislik
Electrical Engineering: Kemal Ovacık, Ovacık Mühendislik
Landscape: Can Kubin, Promim
Consultants: Prof. Wolfgang Fasold (FRAUNHOFER INSTITUTS FÜR BAUPHYSİK)
Client: Republic of Turkey Ministry of Environment and Urbanisation
All images © Cemal Emden
All drawings © Uygur Architects
> via Uygur Architects
