Submitted by WA Contents
Linehouse forms interiors evoking a sense of being in a spaceship for a pastry store in Shanghai
China Architecture News - Jan 28, 2022 - 13:27 2966 views

Shanghai and Hong Kong-based architecture and interior design studio Linehouse has created interiors evoking "a sense of being in a spaceship" for a pastry store in Shanghai, China.
Named Black Star Pastry Shanghai, the 380-square-metre space invites customers into a Interstellar Travel in which stainless-steel shelves showcase thousands of meteorites.
The customers can feel the effects of ascending, bending and turning towards the ceiling creating the illusion of rocks transfixed in space.

Developed for Australian brand Black Star Pastry, Linehouse worked in collaboration with Louis Li, principal and creative director of Black Star Pastry, to transform a red-brick old villa on Yuyuan Road, Shanghai into Black Star Pastry’s first flagship store in China.
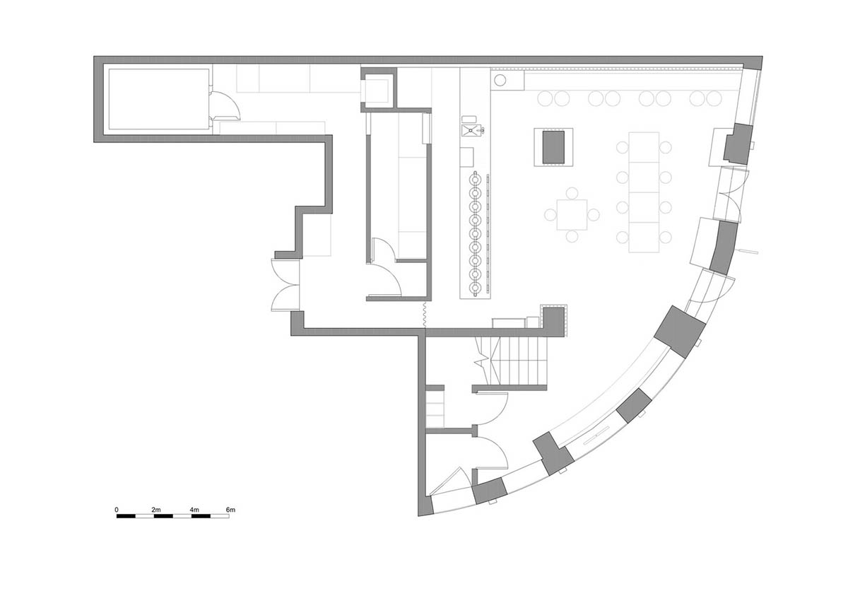
The studio conceived the store as two venues scattered over two floors. While the ground floor operates as Black Star Pastry’s cake and coffee retail space, the second floor reveals a new dining space for the brand, called Black Star Gallery.

The combination of the two spaces were aimed to create "a futuristic retail complex that encompasses dining, design, art, and lifestyle."
Black Star Pastry was founded in Sydney in 2008 and is the creator of the Strawberry Watermelon Cake. According to New York Times, it is the world’s most Instagrammed cake, added the studio.

The studio themed the ground floor pastry store around the narrative "Interstellar Travel", the iconic maglev display at the center features nine revolving and levitating space capsules, displaying 9 cakes exclusively launched in Shanghai. It is an exploration of gravity vs weightlessness.
The team used stainless-steel shelves to hold thousands of meteorites, a sense of illusion of rocks is created through ascending, bending and turning towards the ceiling.

The phrase ‘we are all just stardust’ can be found lining the edges of the communal tables - each letter seemingly dripping off the edge of the table following gravity, marking the transition from the concrete to the abstract," said Linehouse.
"Elsewhere, retail areas are spread throughout the ground floor, stocked with coffee beans and apparel."

The studio added that "the first flagship store outside of Australia, it features Black Star Pastry’s new branding, with illustrations by one of the world’s most popular illustrator, Noritake."
"Accompanied by black stars, the boy and hedgehog characters are connected to the Black Star name and narrative."

The ground floor creates an incredible sensation of being aboard a spaceship, transporting customers to a parallel universe upstairs, according to the design team.

The team added a new staircase, clad in roughcast concrete terrazzo, to transports guests to a Black Star Gallery - which is an exhibition-style dining space-themed as "meta habitat".
This floor is also featuring artworks by four emerging international artists, including Rowan Corkill, Olivia Steele, Debbie Lawson, and Naoko Ito who created four site-specific works.
The studio added that "the collection of artworks together creates a fabled habitat." "A root word with Greek origins, ‘Meta’ means “after” or “beyond”."

On this floor, visitors encounter ordinary and familiar objects related to human civilization that are transformed by the distortion of time and space into metamorphic states.
The art collection depicts roaming deer, trapped tree branches, glowing water streams, and bodies covered in withered leaves. Together it creates a fabled habitat that is sinister yet fantastical - a rich and pure landscape where the unusual and the unexpected are commonplace.

The gallery changes its character, and becomes a tearoom in the afternoon and a cocktail lounge by night. The ceiling is lined in a metal grid, while the floor is made of a rough concrete cast terrazzo tile.
As the studio explained, it gives the space a hint of wildness and creating a museum-like mood for the art.

There is also a private room, named There There, featuring an intimate bar wrapped in acid-etched blue metal. It is enclosed with a deep blue velvet curtain.
A black timber floor folds up onto the walls sits in contrast against the exposed concrete of the existing site. A stainless-steel curved backdrop holds the wines on display.

The space acts like a museum that openly exhibits different spatial qualities where different senses merge with material and narrative. In this sense, it is consistent with the concept approach expressed at the beginning.





Level 1 floor plan

Level 2 floor plan
Linehouse is an architecture and interior design practice established in 2013 by Alex Mok and Briar Hickling.
Linehouse operates as a platform to investigate the rituals of inhabitation and how these daily moments can be celebrated through design, transforming the mundane into performative acts.
Project facts
Project name: Black Star Pastry Shanghai
Architects: Linehouse
Location: 1265 Yuyuan Road, Shanghai, China.
Size: 380m2
Date: Dec 2021
Design Team: Alex Mok, Cherngyu Chen, Yeling Guo, Rongli Chen, Mia Zhou, Leah Lin
Levitating Cake Display: March Studio
Branding Graphics: Studio Ongarato / Noritake
Commissioned Artists: Olivia Steele, Naoko Ito, Rowan Corkill, Debbie Lawson
Artwork Production: UAP
Client: Black Star Pastry
All images © Jonathan Leijonhufvud
All drawings © Linehouse
> via Linehouse
