Submitted by WA Contents
J. Mayer H wraps IGZ campus with concrete skeleton structure in Germany
Germany Architecture News - Dec 08, 2020 - 14:09 12814 views

Berlin-based architecture studio J. Mayer. H has completed the IGZ campus wrapped by diagonal-shaped concrete skeleton structure in Falkenberg, Upper Palatine, Germany.
Named IGZ Campus, the 8,000-square-metre building was completed as an extension of IGZ headquarter, the company of IGZ serves as a software and engineering company which uses SAP standard software to develop technical software solutions in production and logistics for companies across Europe.
J. Mayer. H followed a sustainable and innovative planning and construction as a centerpiece of the new IGZ Campus module in the masterplan in Falkenberg.
The studio won the design for the main building of the IGZ campus at an invited competition and the building is the first new construction of the site’s extended masterplan.

The IGZ campus, reaching over 120m in length and sitting at the highest point of the site, complements existing company-owned buildings, creating a harmonious ensemble.

"Further structures are planned for the company restaurant, an innovation center and other office buildings, which, like the main building, focus clearly and precisely on the site’s surroundings," said J. Mayer. H.
In the construction, the studio used local materials like granite and wood, typical of the Upper Palatinate region. "Innovative construction engineering techniques ensure a holistic approach to the building concept," added the studio.
"Priority was given to providing a regenerative energy supply using geothermal energy and photovoltaic systems."

"The new IGZ building makes clear that construction work in rural areas is not only reserved for agriculture, tourism or local recreation."
"Instead, in this age of "New Work" (Work 4.0), the new headquarters of “IGZ-The SAP Engineers”, allows them to strengthen their local ties and reaffirm their presence as an innovative and responsible employer in the region," the firm added.

For the exterior, J. Mayer. H designed a skeleton structure from reinforced concrete. All load-bearing and bracing components are made of wood and exposed concrete, creating a visual blueprint of IGZ’s company headquarters.
The partition walls and built-in furniture are non-load-bearing and made entirely of wood and glass. Composed of various elements, the construction of the campus creates a light and warm atmosphere, while remaining highly flexible to future alterations.

The grey glazed wood façade further develops and reinterprets the materiality of the company’s existing buildings.
The building's thermal comfort relies on a passive temperature control method that is integrated into the reinforced concrete ceilings. The building's concrete core temperature control system regulates heating and cooling inside.
"The energy required for this is sustainably generated through a total of 60 geothermal piles, each 100m deep," added the studio.

In the interiors, J. Mayer. H developed the building’s interior design concept in close collaboration with the client. The studio worked with leading manufacturer Steelcase as the main partner for the design of workstation furnishings.
The loft-like work landscape, composed of exposed concrete and wood was furnished with Steelcase’s Flex Collection, designed to allow teams to make their space more flexible.

Equipped with wheels, the furnitures are able to be adapted to various, changing forms according to individual and group work. Flex complements the overall geometry of the building’s structure with its diagonal elements and clear-cut design.
As the studio summarizes, "the design’s language is communicated through large-scale wooden fixtures in the foyer and other areas, and reflected further in the rounded shapes of the movable desk-walls and mobile whiteboards."

"The choice of haptic, matte black surfaces, furthermore matches the wood and concrete elements present throughout the building."
Steelcase collaborated with Kvadrat, using their high-quality fabrics to produce a new range of seating areas and desk chairs. In communal areas, the studio used Viccarbe's soft seat products.













Site plan

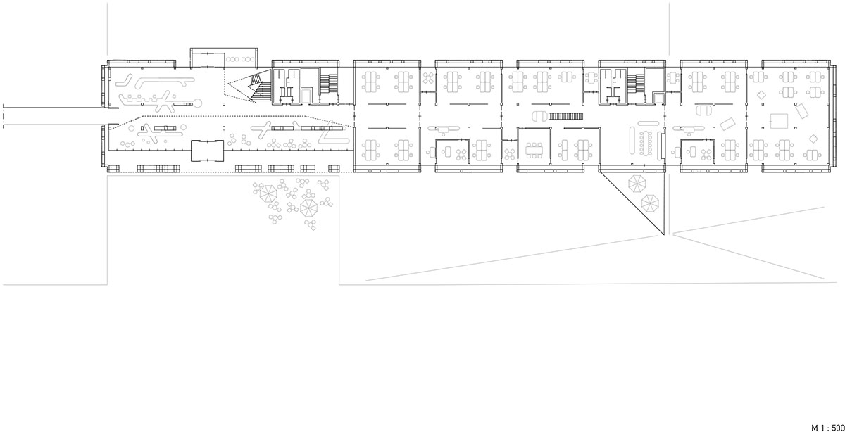
Ground floor plan

First floor plan

Second floor plan

Section AA

Section BB
The project was completed in Autumn 2020. The architects said: "Thanks to the flexibility of the interior furnishings and the building’s geometry, the inner layout can easily be adapted for Covid-19 related workplace changes and requirements, such as accommodating for Hygiene regulations and ensuring the safe distancing of employees."
J. Mayer. H was founded in Berlin in 1996 by Jürgen Mayer H., Andre Santer and Hans Schneider joined as partners in 2014. J. Mayer. H previously completed a flower-shaped private residence in near Moscow, Russia. The studio also completed "Box In Box" concrete house in Northern Germany.
Project facts
Project name: IGZ campus
Location: Falkenberg, Upper Palantine, Germany
Architect: J. MAYER. H und Partner, Architekten mbB
Invited Competition: 2018, 1st Place
Project: 2018 – 2020
Completion Date: October 2020
GFA: ca. 8000qm
Client: GZ Immo GmbH
Structural Design Engineer: Bodensteiner + Partner GbR, Weiden
Building Service Engineers: Grünwald + Ach GmbH, Weiden and Ingenieurbüro Zeitler, Rottendorf
Lighting Design: Licht Kunst Licht AG, Berlin
Fire Prevention Plans: Gerhard Schmidt, Weidenberg
Landscape Architects: S H L Architekten und Stadtplaner, Weiden
Interior Design Partner: Steelcase, Raumhaus Berlin, Kvadrat, Brunner,
Acoustics: Soundcomfort
All images © David Franck
All drawings © J. Mayer. H
> via J. Mayer. H
