Submitted by WA Contents
AAd built self-sustainable residence with perforated facade and steel rods in Thailand
Thailand Architecture News - Apr 07, 2020 - 16:24 13494 views

Bangkok-based architecture practice Ayutt and Associates design (AAd) has built a self-sustainable residence by using all-white perforated facade and steel rods in Thailand.
Called Shade House, the 950-square-metre house has its individual ecosystem in response to a critical question raised by the architects: "how can we adjust ourselves to live peacefully and privately in this speedily changed environment?".
Living amidst the rapid growth of urban population and high rises in Bangkok, the architects asked: "how can we avoid losing contact with the amenities that mega-city provides us and accessibility to the green space?".

Then the studio has proposed an alternative design solution to mitigate this urban-dwelling problematic issue by crafting a Shade House, a self-sustainable residence, implanted with an individual natural ecosystem that planned to become a part of a larger urban ecology and a solution for next generation of housing.

Principally, AAd has targeted the issue by lessening the superior role of the house, though increasing the importance of natural surrounding as the main protagonist of this project.

In the beginning, the Shade House, owned by a nature-loving couple, was planned to be a two-story private residence. This would cause its functions to spread out almost all over the entire site. However, with a plan to create the least footprint as possible, the house is thus converted to be a three-story with the parking lots placed separately in the front.

This new strategy helps to raise the green-area square meters to be 60% greater, which is twice the minimum requirement of green-area regulations in Bangkok. Together with adding pocket gardens at every corner of the house and a green roof, the overall green space of this house is boosted to 90%.

By the time the vegetation has fully grown and covers all the house’s elevations, the green area will be as much as 150% larger than its initial site.
Consequently, it will meet an original intention of both the house’s owners and the architects—to maximize the senses of natural scene perception on site—by establishing a life-long communication between the dwellers and the surrounding nature, resulting the growing shade of the house.

By designing details, the studio thought how to reduce the building's footprint
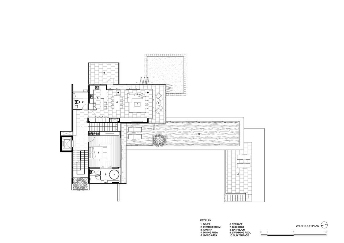
The architects’ initial plan was to lift and place a swimming pool on the second floor, along with the family living space, to leave the most open area on the ground floor for landscaping and maintaining the house owners’ privacy.
This creates a new sensory experience of nestling the seamless infinity pool among the clouds of tree leaves, creating a visual connection to the sky beyond.

One can touch and enjoy being among the greenery and a blue sky while dipping in the pool. AAd design team furthermore proposed a different type of room arrangement that each floor will be functioned completely within itself. Each living unit is equipped with all the functions needed for a suite such as a bathroom, kitchen and pantry, garden, and terrace.
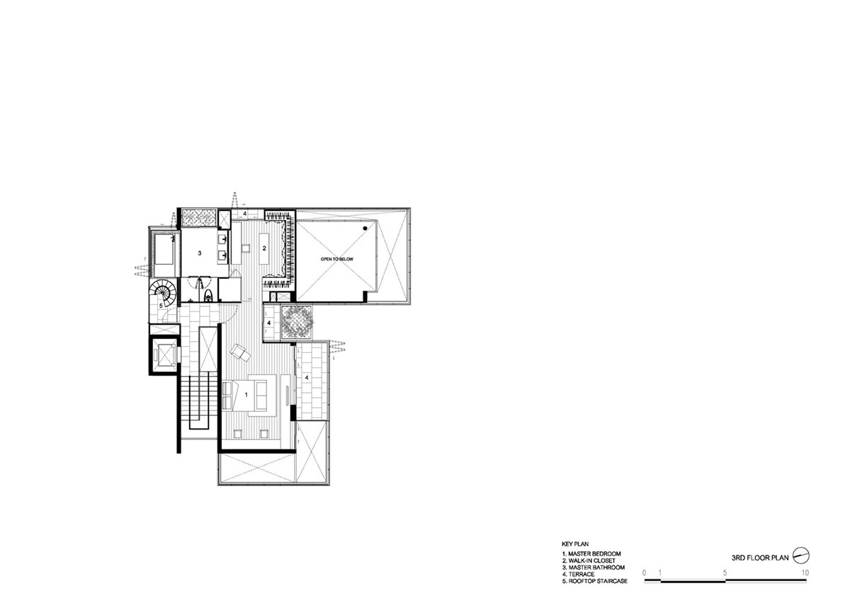
On the first floor, the architects designed a "garden villa" as a guest unit. Visitors can choose to access this guest suite by passing through the main foyer or entering the unit immediately through a side door, located adjacent to the waterfall. The rest of the living spaces which need more privacy and security,reserved only to the house’s owners,are placed on the higher floors.

The "pool villa" suite was placed on the second floor that was designed to be embedded among the trees. Its floor-to-ceiling windows are focusing on one approach—ona sculptural Plumeria and the swimming pool. The third-floor unit that rises above the tree canopy has a view towards a pristine landscape nearby the Suvarnabhumi airport.

By using other functions like perforated façade (imitating tree leaves) kept temperature control
The studio designed all the living spaces on the upper floors so that the house can act like a tree house. Tree leaves and bushes not only provide blooming refreshment for the residents, but also serve as a natural buffer, protecting the house from the outsiders’ eyes.
The facades of the living room are still maintaining the signature of AAd’s façade design: using the air gap and perforated aluminum panels to relieve the house from being heated as well as allowing sunlight and air ventilation to pass through. When measuring the temperature during summer season, these panels help cooling down the 39 degrees Celsius outside to be at 26 degrees inside.

The graphic of the façade holes is creatively punched imitating to the overlaid tree leaves. During daytime, when the sunlight shines in the room, it will create the same effect similarly to sitting underneath the tree and absorbing the sunlight that shines through the leaf layers. The sizes of the holes are also determined accordingly to the usage of the function inside.

For example, the holes of the living-room perforated facades are punched larger at the standing level and the couch-seating level, while the holes at the sleeping level inside the bedroom are punched smaller in order to secure privacy.
At night, when the internal light shine through these holes, the living quarter will become a lantern, leading the way home. However, with AAd’s careful design, the outsiders will not be able to see what is inside due to the level of these holes punched.

Steel rods with the development of tree growth/ shrine and light + shadow + shade
One of the most eye-catching element of this house is the white slender steel rods joined together as a sculpturing rigid frame. It forms geometric volumes that creates an immediate connection from the entry stair steps to the house’s main foyer.

This sculptural detail not only encloses an outdoor terrace but is also framing a focal point and making the pathway more intuitive, adventure-evoking. A series of voids and opening, created by the white continuous frame, draws visitors forward. When reaching closer to the main door, a lotus pond appears to join the eyes, revealing another set of rigid frames standing among the pond.
As guests move throughout the property, they are greeted with unexpected views of landscape, starting to unfold during the journey through the house. Besides from using this rigid frame to secure the house from robbery, it is aimed to block the eye sights of the outsiders.

Because of the overlapping design technique, the white steel rods create an illusion that makes the frame look denser than it actually is. The designer tends to use these rigid frames to hover different types of wall materials. Some envelop the solid walls, some embrace the opaque part, and some encompass the transparent glazing windows; these all create different dynamic views along the house.

"Because one of the house’s owners is a psychologist who is in need of a space to meditate, the designer decides to place the Buddha pavilion among the garden, in the middle of the land plot," said the architects.
"This is to maximize the advantages of having surrounded by nature. In general Thai culture, architects always use the left-over space of the house to become a shrine and tend to careless about making the space breathable."
"Therefore, by making the Buddhist shrine a garden pavilion and enveloping it with transparent glazing panels, this will make the room still be engaged with other functions, at the same time,remaining peaceful atmosphere."

The pavilion is also covered with the steel-rod rigid frames,which create an effect of frame mirroring,making the room elevations to be opaque one could hardly see what is inside. At the end of the day, the client together with the designers expect the ivy to craw along the rigid frames as an extra layer, which will slowly turn the pavilion to be entirely green.

As making an ecosystem is the main concept of designing the Shade House, AAd plans to design a consequence of spatial experiencing by integrating various kinds of landscape around the house. When observing the house from outside, one will see nothing but hearing the relaxation sound of the waterfall.
While stepping closer to the house, the rigid frames will start to reveal the location of the Buddhist pavilion and lotus pond, then revealing the waterfall embracing the first-floor guest unit at the corner of the house. If entering the house via the parking lot, one will see a more formal stepped garden, that is planned to be the rice terrace when the season comes. On the second floor, the landscape planning becomes less formal and more minimal by emphasizing the reflecting pool and a plumeria tree among the clouds of trees.

The third-floor plant spaces, which designated for the pocket gardens, are compact enough not to block the views of the outside beautiful landscape scenery; and the rooftop is finalized as a fruit garden.
With this project, the design team interprets this white house similarly to the white canvas that when the owners move into the house, they can start to create their own painting by planting colorful trees and flowers. As time goes by, the greenery will swallow the white background, meeting the expectation which the architects want the family to grow old peacefully and naturally as the trees grow along with the house.




























Project facts
Project name: Shade House
Architects: Ayutt and Associates design
Size: 700m2
Location: Thailand
Year: 2020
All images © Chalermwat Wongchompoo
All drawings © Ayutt and Associates design
