Submitted by WA Contents
Atelier Kempe Thill selected to design new high-rise office tower in Hamburg
Germany Architecture News - Apr 07, 2020 - 12:12 12429 views

Rotterdam-based architecture studio Atelier Kempe Thill has won a competition to design a new high-res office building in Hamburg, Germany.
Designed for Magna Real Estate, the tower is situated next to the airbus factory at the head of the Elbe peninsula, on the Finkenwerder business park.
The location derives its identity primarily from important economic synergy between Finkenwerder Airport and the Airbus site. Named "Magnatower", the project offers a unique opportunity to strengthen the spatial character and the visibility of the entire area within the urban landscape of Hamburg and tries to reinforce the public domain along the banks of the river Elbe.

Concerning the natural and urban landscape, the design responds to the historical context and the existing qualities of the area. The monumental harbour house at the head of the Steendiek Canal is one of the few remaining witnesses of the site’s industrial history, belonging to the former shipbuilding company “Deutsche Werft”.
The building is preserved as an identity-creating reference point and will be used for a semi-public purpose. Together with the Rüschpark ferry pier, the harbour house and the ’Magnatower’ form the new gateway to the Finkenwerder business park and thereby make a significant contribution to the branding of the location.

The materiality of the office building’s facade is made of reddish concrete, which is derived from the historic harbour building and integrates consistently into the new spatial composition. At the same time, the new house is in search of a reference to the rough and industrial port architecture of Hamburg.

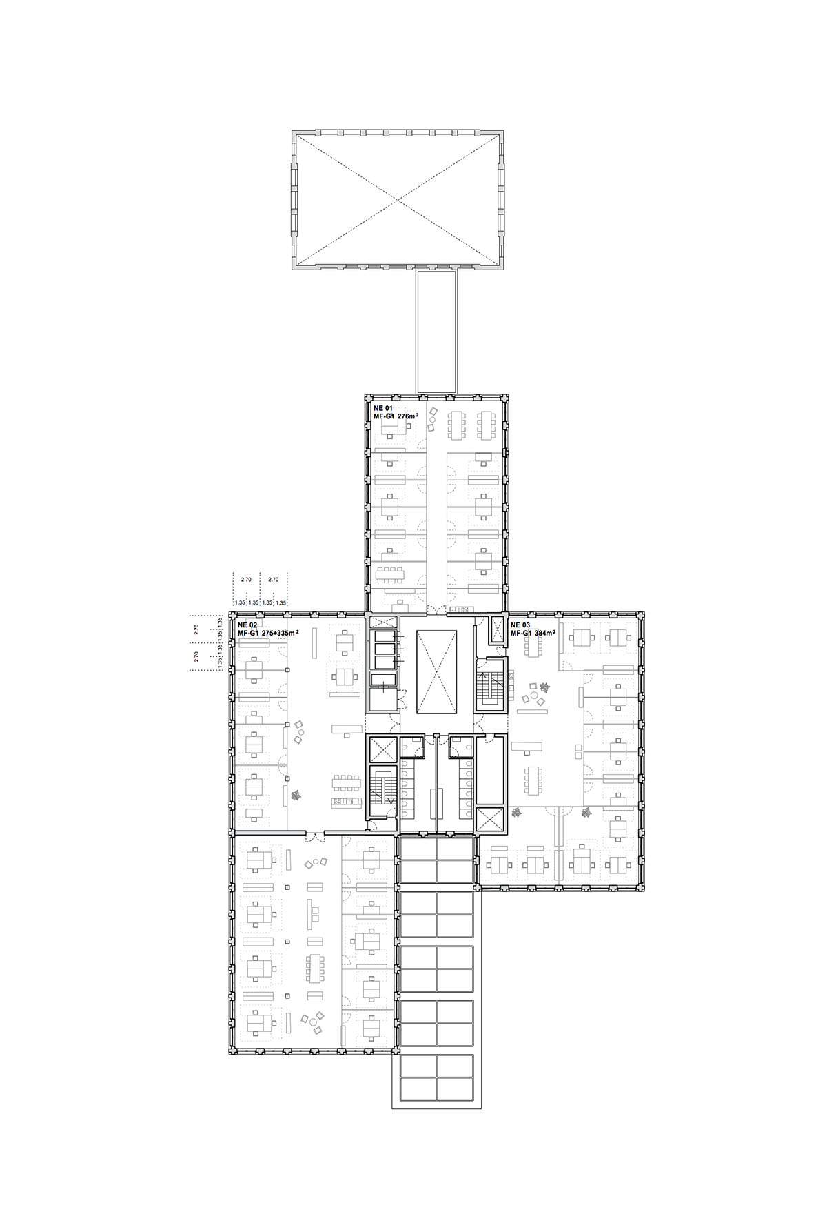
The building consists of three interlocking volumes which are arranged around one central core. This configuration avoids a too pronounced a hierarchization of the four sides of the building resulting in a more fluent spatial composition. In the direction of the famous landscape Jenischpark and the river Elbe, the new house presents itself with a very slender facade.

Office units of various sizes are offered on around 22,000 square meters. The units can be subdivided flexibly, allowing the floors to be used for both small and medium-sized companies.
In addition to the desired urban differentiation, the chosen floor plan figure opens up a variety of panoramas on Hamburg, the river and the port landscape.

In order to stimulate a maximum of social interaction, all public activities are bundled along a central spatial axis on the ground floor. This connecting axis runs through the house from north to south.

Site plan

Situation plan

Floor plan

Section
Project facts
Client: Magna Real Estate, Hamburg, DE
Location: Hamburg, Germany
Status: 1st prize invited competition, commission
All images © Sugarvisuals & Atelier Kempe Thill
> via Atelier Kempe Thill
