Submitted by WA Contents
Nómade Arquitectura creates urban filter with large interlocked brick wall for house in Argentina
Argentina Architecture News - Apr 07, 2020 - 13:26 11285 views

Argentinean architecture studio Nómade Arquitectura has completed a low-rise brick villa in Santa Fe, Argentina.
Named House LP.0405, the house is located in Rosario, Santa Fe, Argentina and has been designed as private as possible with its exposed brick walls.
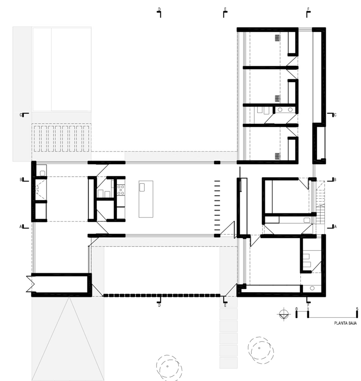
The starting point of the project, the heart of the house, is a glass "intern" space, which reveals and articulates two green patios / gardens; where the most inhabited space of daily life is housed, the kitchen and the living room.

Materialized through simple lines, pure forms and noble materials, the exempt house without party walls is implanted in the unification of two lots to increase the surface of the land, within a closed neighborhood to the south-west of Rosario, in the process of transformation and surrounded of vegetation.
Developed on one floor, exposed brick, reinforced concrete with exposed planks, wood, black painted metals and glass predominate.

From the outside, the urban filter is a large interlocked brick wall; Thus, the house receives visitors opening onto a patio / garden that welcomes, provides privacy from the street, regulates the entry of natural light and the security of the home, in turn solving its formal expression.

A large central rectangular block for public use occupies the lot in its entire width, leaving the regulatory withdrawals and articulating another 2 blocks at its ends.
To the social sector is added a gallery with perforated exposed concrete ceiling, which expands the house towards the pool and garden, generating a new, transitional space.

The main entrance, with its "curtain" of mobile wooden boards, is in charge of linking these sectors with the private part of the house. Five bedrooms are accommodated in total, three of them the same and with a mezzanine, they share a full bathroom and are arranged in relation to the back garden, another guest bedroom, attached to the laundry room and access to the terrace, and the master suite and its bathroom, in relation to the entrance garden.
























Project facts
Project Name: House LP.0405
Architecture Office: Nómade Arquitectura
Architect in charge: Arch. Ana Dalla Bona, Arch. Julia Kerckhaert, Arch. Leila Poveda, Arch. Valentina Serri.
Location: Los Pasos del Jockey Club Private Neighborhood, Lots 4 and 5, Rosario, Santa Fe, Argentina
Construction year: 2019
Constructed area: (sqm) 240
Engineering: Weder Ingeniería
All images © Ramiro Sosa
All drawings © Nómade Arquitectura
> via Nómade Arquitectura
