Submitted by WA Contents
Peterson Rich Office converts former Beckenstein Building into light-filled public art gallery in NY
United States Architecture News - Apr 16, 2020 - 11:37 17245 views

Brooklyn-based interdisciplinary design studio Peterson Rich Office has converted former Beckenstein Building on the Lower East Side in New York into a light-filled public art gallery for Perrotin, a contemporary art gallery founded by Emmanuel Perrotin in 1990.
The 3,160-square-metre transformation is Peterson Rich Office's first public art gallery completed for Perrotin's New York flagship, which involved the complete adaptive reuse and redesign of The Beckenstein Building.
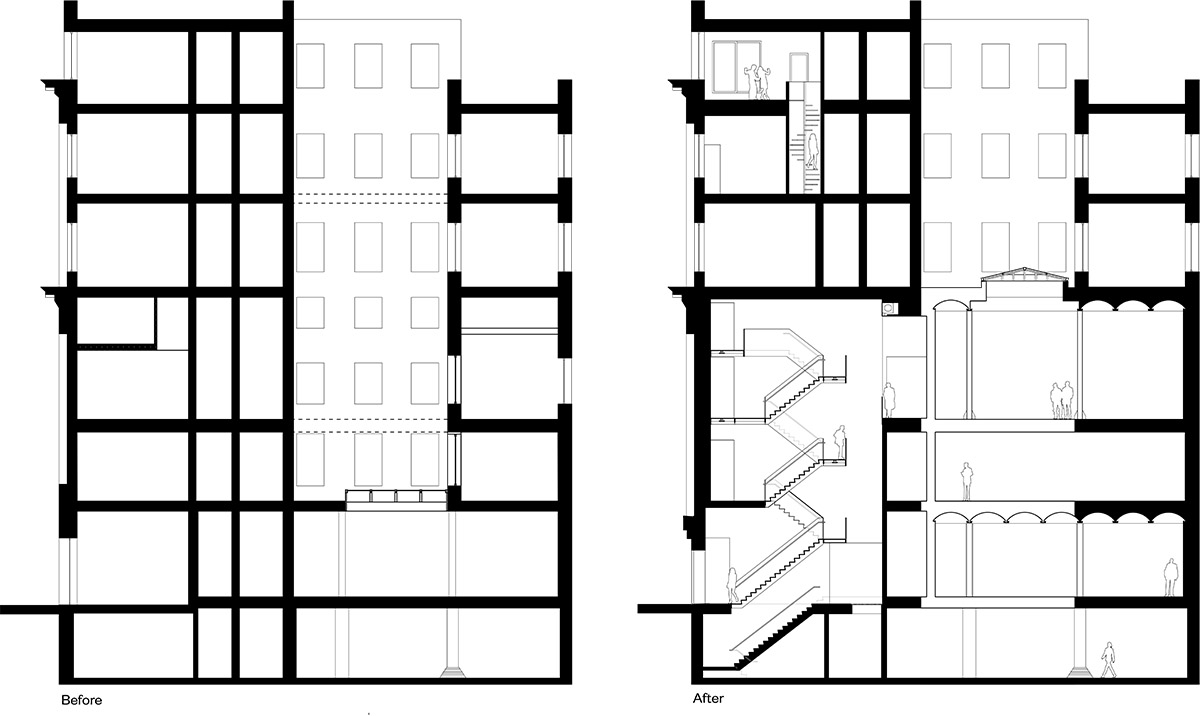
Constructed in 1890 and located at 130 Orchard Street on the Lower East Side, the building has evolved from residential lofts to commercial use.
The revised version of the building now functions as an open, flexible contemporary art gallery and workspace. Because of its scale and varied uses, the building functions more like an institution than a commercial art gallery. The designers successfully combined black and white to narrate the exhibited objects and pieces in a smooth language.

"Perrotin's space has come to life aesthetically and operationally, with a range of programming that extends from the grand floor galleries and bookstore, to the 6th floor rooftop terrace," said Miriam Peterson and Nathan Rich, co-founders of Peterson Rich Office.
"The building's full transformation centers around addressing the vibrant street life of the Lower East Side, and inviting the public to interact with art at all times of day and night. Inside and out, the design sets the stage for a diverse range of exhibitions and events, blurring the lines between art gallery and institution," the designers added.

Over the past decade, art galleries have played a central role in the changing character of the Lower East Side. There are fifteen times as many galleries in the neighborhood today as there were ten years ago.

Where as the vast majority of these spaces occupy small 300-500 ft2 tenement storefronts, Perrotin has the largest exhibition space, representing a dramatic shift in the neighborhood from small storefront exhibitions, to museum scale, multi programmed, mega- galleries.
Although it is a private art gallery, Perrotin is a very public building — unlike many museums, it is free and open to all. A radical transformation of the existing flat terra cotta arch structural system was required to maximize open floor space, to connect all three floors of exhibition space, and to take advantage of the unusually high ceilings.

The building includes five exhibition spaces, and more than 1,858 square meters of public space. A dedicated stair built from half-inch blackened steel plate provides continuity and circulation and features a three-story atrium for sculpture display.
A bookstore on the ground floor addresses the street and engages different markets than a typical art gallery, while a rooftop garden is used for events.

"Historically, the many international Perrotin spaces light artworks with sunlight. For the New York flagship was critical that the architects create a lighting strategy that felt continuous with the other galleries," continued the studio.

The challenge was that 2 out of the 3 floors have no exposure to sunlight. As a result Peterson Rich Office collaborated with Pierce Lighting Studio on developing a bespoke and highly specific lighting strategy that would mimic even, non-directional sunlight, but maintain flexibility for spot lighting individual works.


Their work started with the existing building, which is historic and structured with terra cotta arch slabs. For the new gallery ceilings Peterson Rich Office rebuilt the arches, not just to function structurally, but to conceal all of the complex infrastructure required in the gallery ceiling including sprinklers, hanging points, security systems, power, and most of all lighting.
The arch then became a surface for projecting daylight color LEDs. The soft curve of the arches evenly reflected light back to the gallery floor, creating an even wash across the gallery spaces.

The lights can be dimmed to 0%, and if there is a need for directional spot lights, Peterson Rich Office concealed lighting track within the base of each ceiling arch.

This means the gallery can accommodate any type of installation. Since fully opening in 2018 Perrotin has exhibited sculpture, installation, video, performance, and traditional paintings.

The arches provided a lighting strategy that is both maximally flexible and architecturally distinctive.




Plan 1

Plan 3

Section

Axonometric drawing

Axonometric drawing - areal
Project facts
Location: 130 Orchard Street, Lower East Side, New York, NY, USA
Program: Galleries, Retail Shop, Creative Workspace
Gallery Floor Area: 34,000 ft2 / 3,160 m2 total with 20,000 ft2 / 1,858 m2 (75%) galleries
Building Height: 6 stories; 86 ft / 26 m
Building Footprint: 67 ft. / 20.4 m wide x 88 ft. / 26.8 m deep
Project Dates: Commenced 2016; Groundbreaking 2017; Gallery Opening 2018; Completion 2019
Project Team: PRO—Peterson Rich Office - Architecture & Interiors; Silman - Structural Engineering; ABS Engineering - MEP Engineering; Pierce Lighting Studio - Lighting; Riverside Builders - General Contractor
Project Scope: Facade Restoration, Interior Architecture, Consultant Coordination, Construction Administration, Artist Collaboration
All images © Rafael Gamo
All drawings © Peterson Rich Office
> via Peterson Rich Office
