Submitted by WA Contents
Seoinn Design Group built a curvaceous church with fluid towers challenging to traditional churches
Korea, South Architecture News - Oct 03, 2019 - 15:41 20497 views

A pair of fluid towers rise from the main body of this contemporary church designed by Seoinn Design Group in South Korea. Designed as a new challenge responding to traditional church typologies, the architects wanted to design a distinctive church as a new form of embodiment that embraces people in more fluid form.
Called Saemoonan Church, the building was originally established in 1887 and it is the oldest protestant in its historicity as the mother church of all Korean protestant churches. Located in the Jongno-gu district of Seoul, the architects designed the church as the sixth home of the Saemoonan Church.

The brief of the Saemoonan Church proposed four distinct church construction themes as basic guidelines: the historicity as the mother church of Korean protestant churches, the symbolism of doors open to heaven, the spatiality of expressing Christ as light, and presenting a water space as a meaning of baptism and harmony.

Hence, Seoinn Design Group adapted the themes with loving god and loving neighbors and included them in the design. "Loving God was mainly portrayed through the use and symbolism of the space, and the aspects of Loving Neighbors were expressed with the publicness through the external appearance and layout effect of the building that are revealed in the city center," said the architects.
In the construction of Saemoonan Church, the architects replaced the conventional spire with a soft curved effect that is open to the sky, and the excessive ornaments were converted into simple and abstract expressions.

"In addition, rather than focusing on showing the authority of the church, the love and mercy of God were metaphorically expressed with the curve of the soft front," they added.
"Furthermore, instead of creating a solemn spatial atmosphere with the common long corridor form, a new periodic worship space was proposed with a fan-shaped chapel plane that encourages the dynamic participation between believers."

"The public construction intention of loving neighbors is clearly visible throughout the architecture of Saemoonan Church, and this seems to be an architectural assignment that 21st century churches must deeply consider," the architects continued.
The yard of Saemunan-ro created by the hollow front and bent arch gate, which are church architecture typologies that cannot be found anywhere else in the world, is intended to become a practical resting place of citizens by opening the church to neighbors rather than pursuing a reverent worship space with a closed nature like a monastery.

The fact that a continuous communication was plotted through the lobby towards the Sejong Center for the Performing Arts also illustrates the openness of the church.
Here, the small chapel as well, which will bring back the history by downscaling the existing brick church, will be used as an actively open cultural space.

The transparent glass box, intended to seem as if it was disappearing into the sky beyond the curved wall, not only angles for a morphological harmony that is in contrast to the soft curved wall, but is also an architectural strategy that aims for it to protect the future generations from the congested streets and become a bright Education Hall with a rooftop garden.

Furthermore, the top floor of the Education Hall building and the high altitude space of the Cross Tower can become a memorial space open to every citizen, just as the many churches of the world often open their top floor dome to their neighbors, since Seoul’s beautiful downtown panorama can be enjoyed to the utmost.




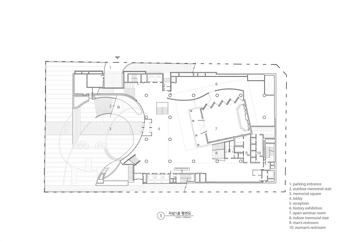
First floor plan

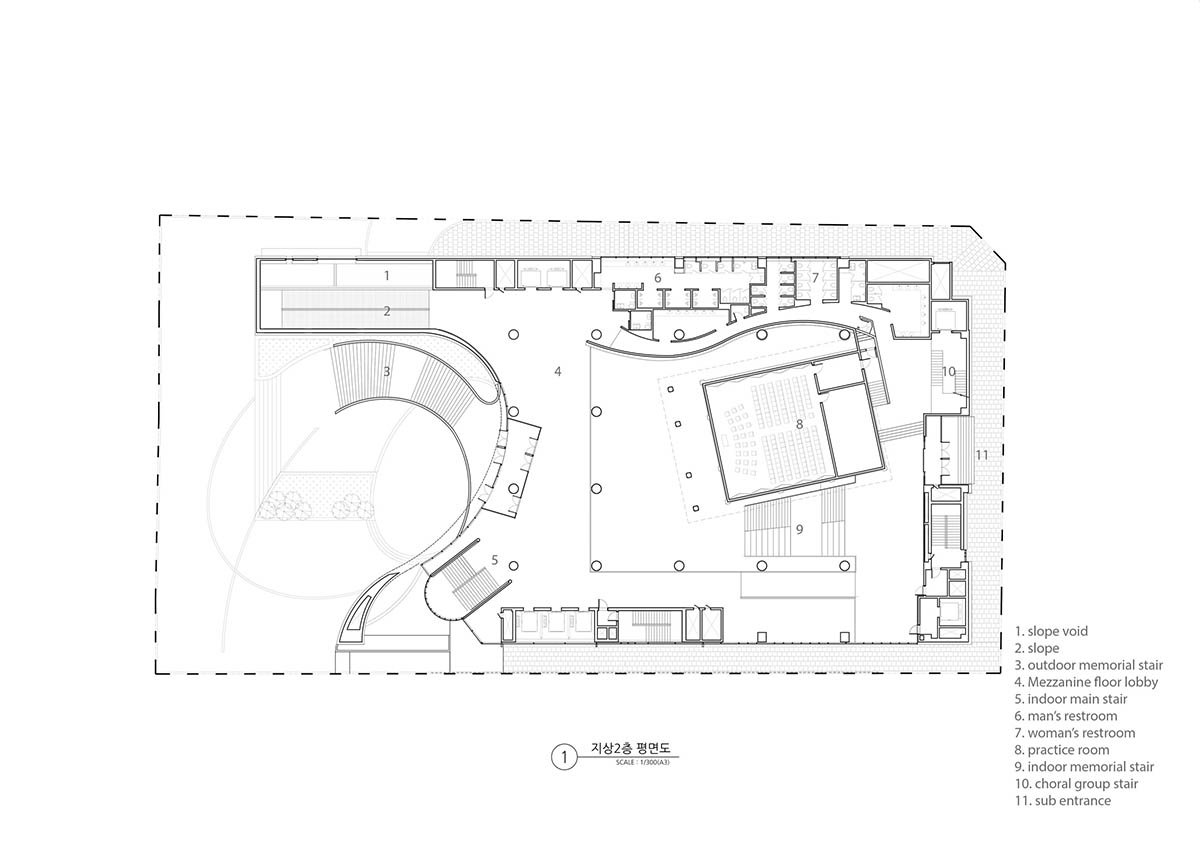
Second floor plan

Fourth floor plan

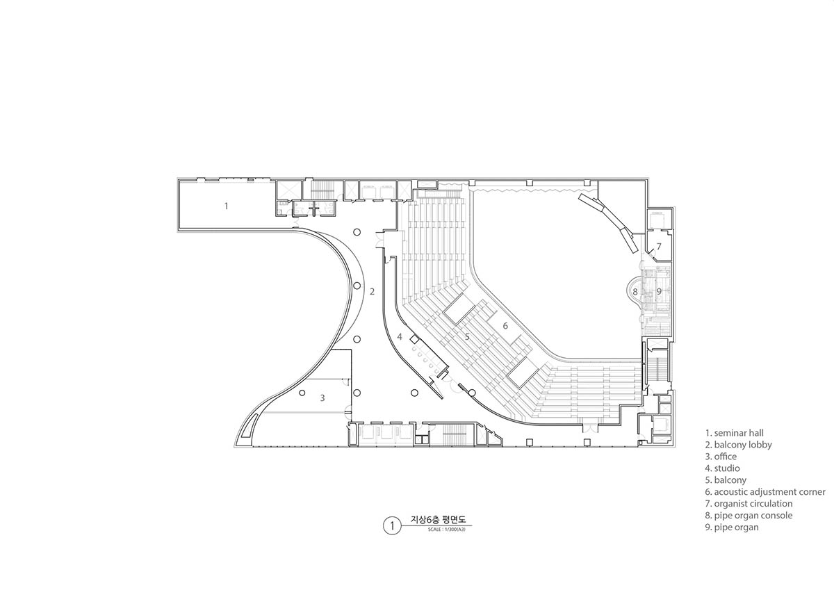
Sixth floor plan

8th floor plan

10th floor plan

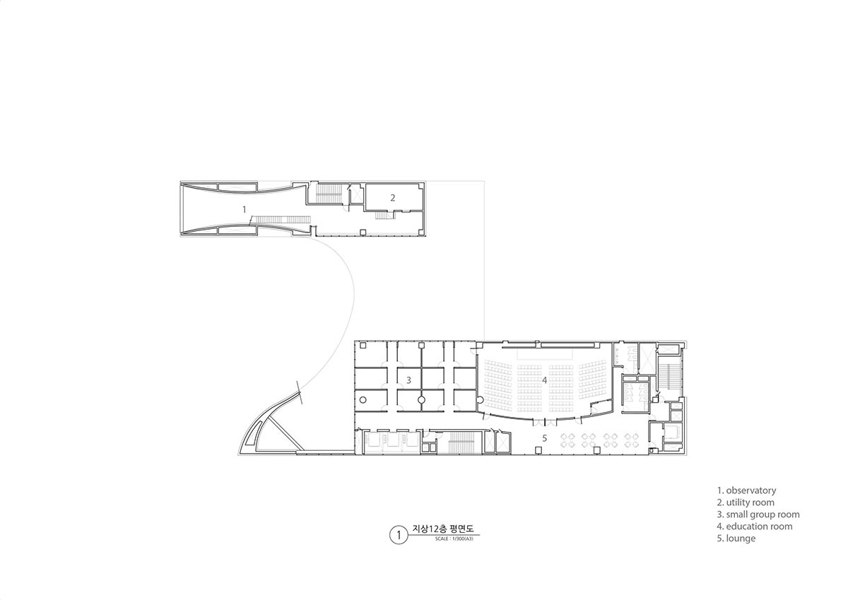
12th floor plan

13th floor plan

Section
All images © Juneyoung Lim
> via Seoinn Design Group
