Submitted by WA Contents
Atelier Red+Black built white Cascade House that features different patterns of brick in Melbourne
Australia Architecture News - Nov 19, 2019 - 17:20 15872 views

Melbourne-based architecture studio Atelier Red+Black has built this white house by applying different patterns of bricks that create a 3D effect on the facade in Melbourne, Australia.
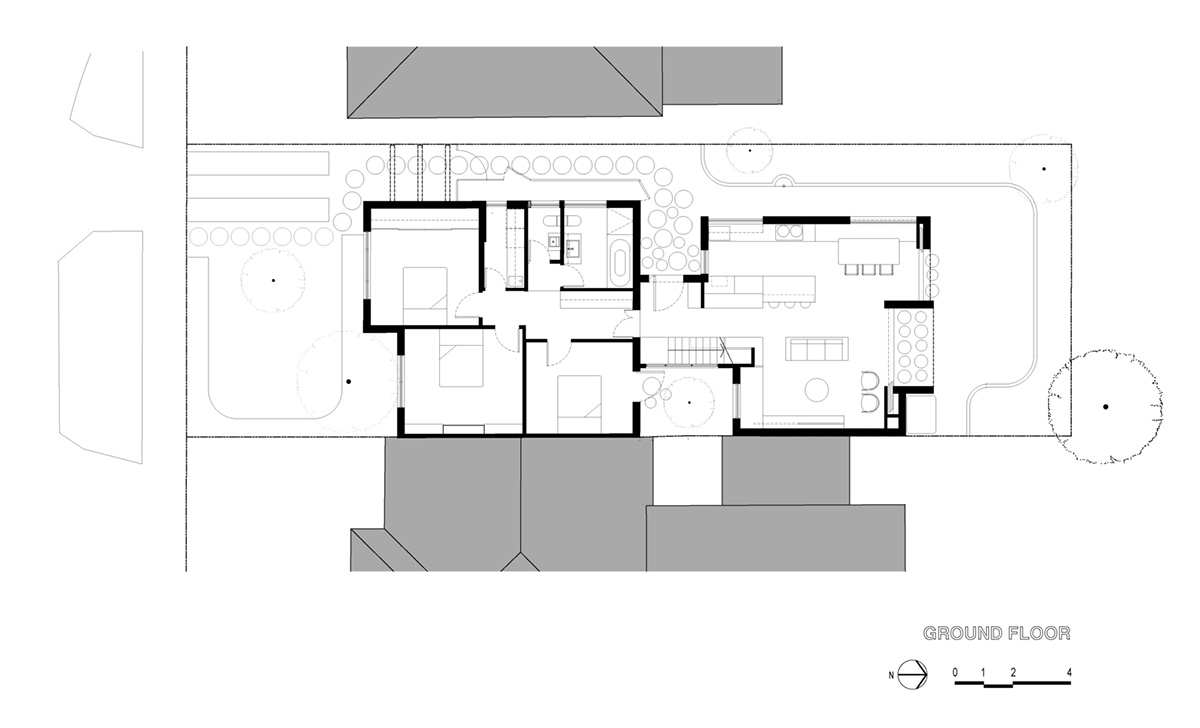
Named Cascade House, the 155-square-metre house takes cues from the client's cultural background, as the client's family grown up in a place which were surrounded by brick architecture - which has an extensive history in South Asia.

The house was designed for a young family who have four members. "At its core, it explores two themes - "identity" and "what is enough?". As recent immigrants, this project is strongly shaped by our client's cultural background," said Atelier Red+Black.
"The house has a chameleon-like ability to be skin, brise-soleil, thermal mass, ornament and monumental - are the reasons it almost entirely covers the new addition."

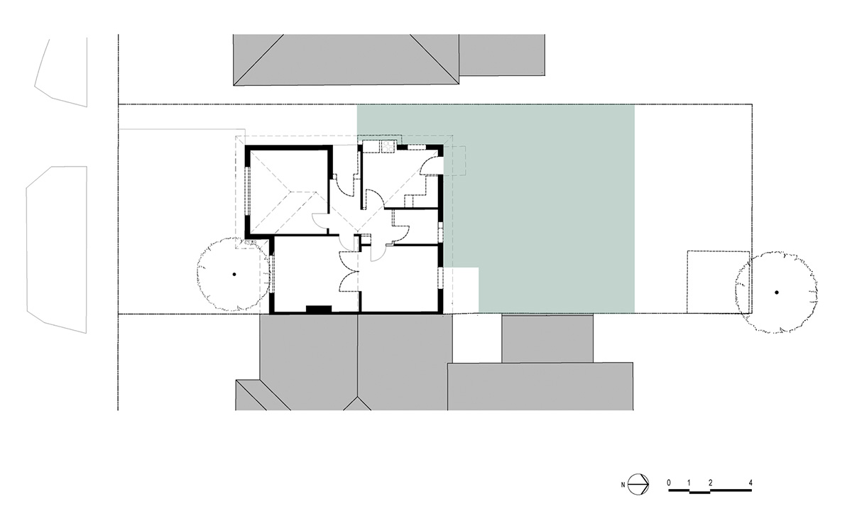
"The project allowed us to explore a bigger conversation - how to change the typical suburban approach to a brief. With Australian homes being the second-biggest in the world, it's time to re-think our approach to suburban homes. Too often we are asked "How much space can we get?", added the architects.

The architects wanted to flip that on its head with: "how much space do we really need?. But changing the question, they ended up with a built volume nearly 70% smaller than what local regulations would have allowed! "This "think small" approach was one that was informed by the original home and driven by the clients," they continued.

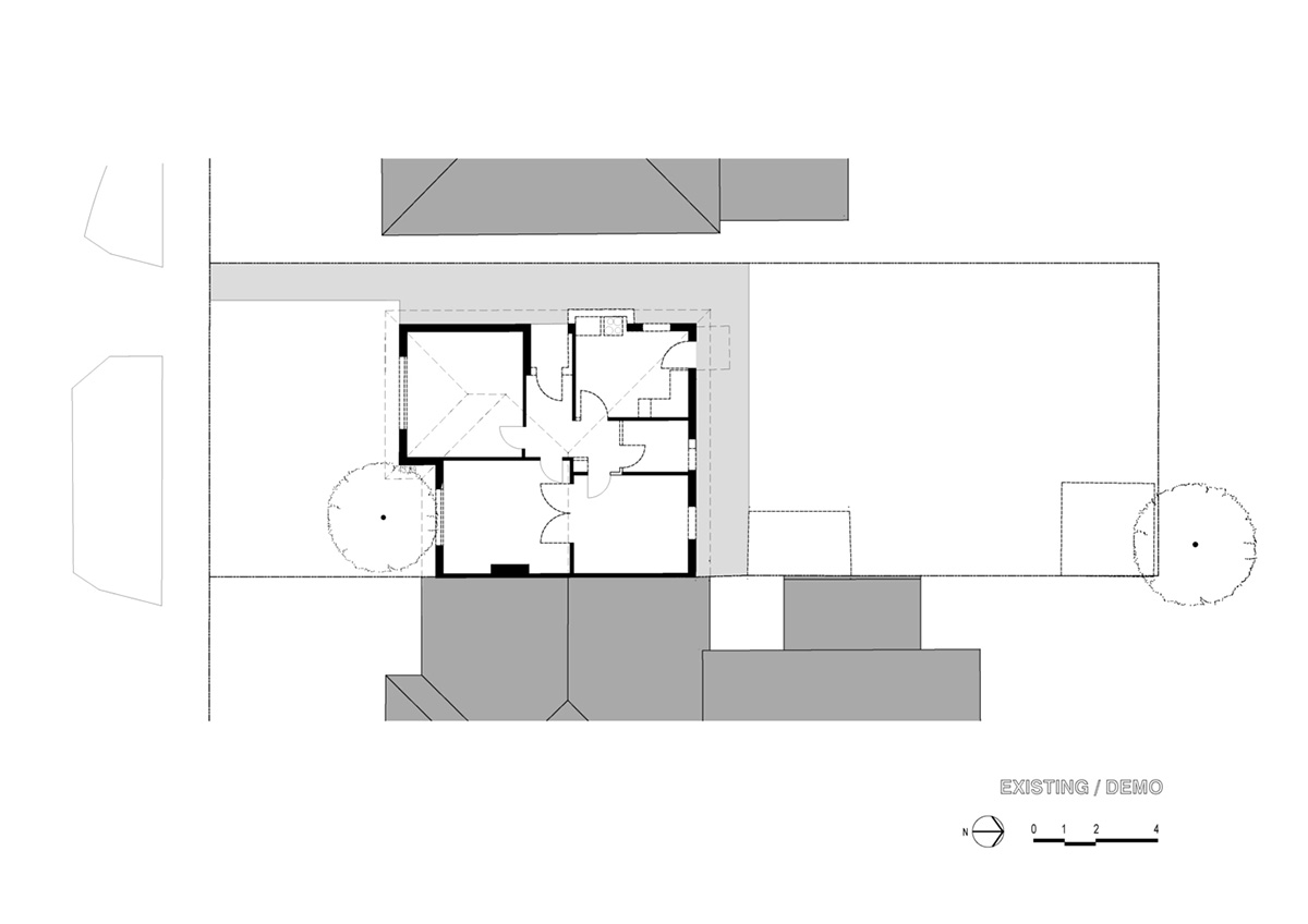
Built during the second world war - at a time of material shortages - it is austere and originally had only 4 rooms in total. Along with a large backyard, this was considered adequate for a typical family of four.
Whilst austere on the outside, the home had flashes of exuberance internally that was loved. Inside were ceilings filled with radiating art-deco motifs and hand plastered lace-like walls.

Atelier Red+Black wanted to extract these hidden moments of joy and bring them outside. Hence, they super-sized a slice of the Art-deco ceiling onto the western elevation using corbelled brick details and a Flemish bond pattern.

This facade of the extension is intentionally quite solid to provide thermal mass, but due to the larger side setback also ends up being the 'public face' of the extension.
By choosing a white painted finish, the architects were able to choose a cheaper grade of brick highlight the texture and movement of light across this brick facade during the late afternoon.

In design, the other key element is the prominent roof forms. What started off as a playful inversion of the existing ended up being a celebration of the most functional role of a roof - to provide shelter by re-directing rainwater away.
This function is rarely expressed and usually hidden. The team chose to make this evident through the rain-chain and with an oversized projecting gutter - which is where the name Cascade House is derived from.

"The clients love gardening and their proximity to a local creek; their brief was to feel surrounded by foliage and have an element of water in the design," added the studio.
"It is a home wrapped by a wall of the landscape on three sides and minimal paving so that the site still remains 50% permeable to rainwater and minimizes any urban heat island effect."

The design creates little moments of delight - the changing light of day and a feeling of expansion (in spite of being in the inner-city). The brick bris-soleil creates a moving pattern of sunlight that rises from the table to the wall and provides a visual shorthand for the time of day (like a sundial). The main bedroom fenestrations are such that when lying in bed, all one sees is a slice of sky.
The end result is a home where the spaces are modestly scaled but possess a richness in detail that conjures delight and provides a joyful backdrop to family life.


















Second floor plan

Section

Elevation
All images © Peter Bennetts
> via Atelier Red+Black
