Submitted by
Ministry Of Design Transforms Old Dwelling In Singapore Into Co-Living House With All-White Interiors
teaserd-44-.jpg Architecture News - Mar 23, 2020 - 11:46 4462 views

Ministry of Design has transformed an old dwelling into a co-living shophouse with all-white interiors in Singapore.
Called Canvas House, in this house the architects explore history and our relationship with the past, present and future through the concept of layers in Canvas House at Blair Road, Singapore.

The four-storey house features variety of materials, textures and furniture pieces that are layered in all-white interiors. Many historic details are combined with contemporary details and look to blur boundaries between spaces.

"Historic dwellings like conservation shop-houses are repositories of memories, with previous lives and a past of their own. Ministry of Design explores history and our relationship with the past, present and future through the concept of layers in Canvas House at Blair Road," said the studio.
"Blurring the boundaries between space and object, MOD conceptually blanketed Canvas House with a layer of white that provides a canvas for the future, whilst revealing historical preservation in concentrated spots".
"The house rhythmically reveals parts of its past, with Shadows of old timber as well as Layers of revealed brick and intricate details of re-purposed and upcycled furniture."

In Canvas House, MOD invites visitors to imagine a future with Dream, a text-based neon piece that the studio created, with a quote by Thomas Jefferson that encapsulates MOD’s approach to Canvas House.
"It is a neutral white canvas for the future to be dreamt upon, rather than a wholesale homage to the past," said Colin Seah, principal of Ministry of Design.

MOD has newly completed an all-white Canvas House for co-living, set in a heritage shophouse in Singapore along Blair Road. Commissioned by developer Figment, the client gave the architects a project brief with a fixed budget to be completed in 4 months and to re-imagine the interiors, with the aim of renting out the suites to expats for 3-12 month stays.

The brief was to do something absolutely appealing to long-stay renters, and a way for this co-living shophouse to stand out.
Faced with a tight budget and a tight timeline, alongside the desire for an overarching concept to underpin the moves, Colin and his team conceptualized the “Canvas House”: a. Painting the entire house in white, to provide a canvas for the future, MOD decided to focus on “upcycling” to meet both constraints. b. Majority of the tables, chairs, chests, mirrors, screens and vanity desks, were repurposed and given a new lease of life. c. To pay homage to the past, yet give it character for the future, MOD painted these pieces all white but carved out “playful peek-a-boo reveals” of vignettes on the decorative dragon or longevity vases, ceramic plates hung on the wall, and wooden screens, vanity dressers and chairs. Not only is this highly sustainable in terms of upcycling, it is also budget friendly, time-constraint friendly, and conceptually striking.

Blurring the boundaries between space and object, MOD conceptually blanketed Canvas House with a layer of white that provides a canvas for the future, whilst revealing historical preservation in concentrated spots.

"When it comes to adaptive reuse projects, the question is always the same, how do we tread the line between the past and the present? If one opts for the project to be just about preservation, it's as good as time standing still… which could be paralyzing and inhibiting. But at the same time, neither do we want to disregard history completely by creating something too foreign or novel," said Colin Seah.
"Our response was to layer over the existing history with a proverbial blank canvas whilst leaving choreographed glimpses into the past, blanketing both space and the furniture in it - allowing us to blur the inherent boundaries between past and present, object and space."

To present this spatially, MOD created a text-based neon art piece, featuring a quote by Thomas Jefferson that encapsulates MOD’s approach to Canvas House.

According to the architects, the quote summarizes the attitude of the house, quoting Colin, "it is a neutral white canvas for the future to be dreamt upon, rather than a wholesale homage to the past."
Fabricated by The Signmakers, the quote is penned in a single-stroke white and red glass neon, and encased in an aluminum box measuring 1.4m x 2.2m x 0.1m.

In a sense, the white blurs the distinction between new and old; it also blurs the distinction between the spatial elements (e.g. walls, ceiling), and the objects that sit within it (e.g. the furniture and lights). With everything white, object/space dichotomy is blurred.
The house becomes more whole rather than a space populated by objects and people that move in and out. That allows the people using the space, to truly activate the space, and be the prominent features instead of merely inhabiting space.

Layers and shadows dominate the house
Parts of the past are rhythmically revealed throughout the space, with layers of revealed brick and intricate details of pre-owned furniture, and Shadows of old timber.
This technique is applied to a variety of places, including round timber reveals on the stairs throughout the four-storey house, and playful peek-a-boo reveals of vignettes on decorative dragon or longevity vases, vintage ceramic plates hung on the wall, and wooden screens, vanity dressers and chairs.

Historic details are preserved in a similarly conceptual fashion, where brick walls are revealed in concentrated circles. In the suites in particular, visitors will see "time shadows" cast by the beds, which reveals the underlay of the floor.
Working with the studio's builder, the architects marked out the outline of the afternoon-sun shadow and had the painter paint around this outline, allowing the mark of time to cast its mark on the ground.
Collaborating with artist Kang to design custom lights MOD collaborated with Liu Kang, a Singaporean artist who specializes in upcycling and working with fused plastic to craft fashion accessories, to produce his first series of lights. Part of MOD’s incubation program, Kang works from the MOD office to craft his materials.
MOD collaborated with Kang to create 3 sets of luminaries with fused plastic made from cling film, placed at the five-foot-way, the living and the atrium areas. Keeping to the theme of layers, the cling film was layered and then ironed and heated to create a waterproof, leathery material.






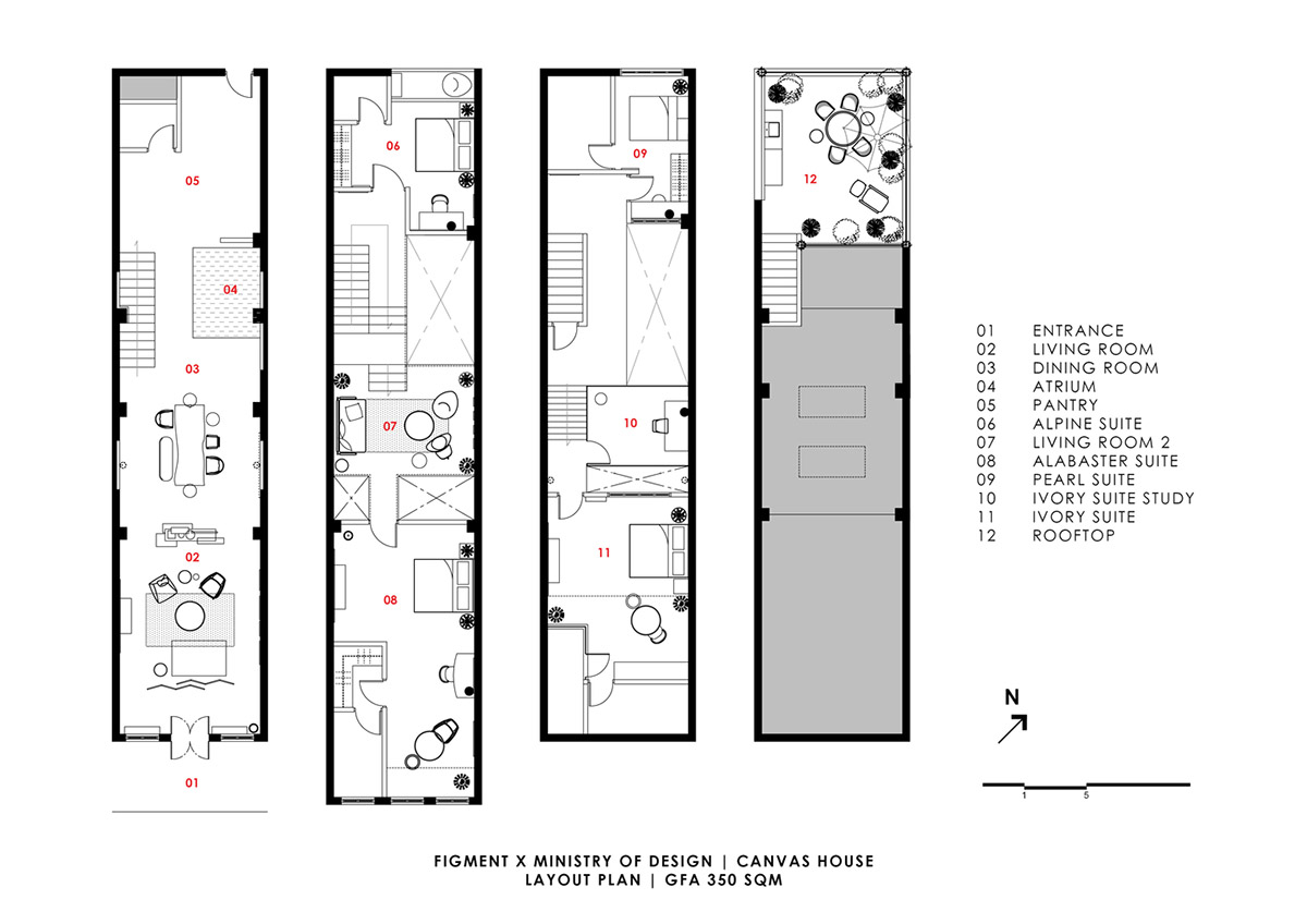
Plans
Project facts
Project name: Canvas House
Architects: Ministry of Design
Location: Singapore
Size: 350m2
Date: 2020
All images © Edward Hendricks, CI&A Photography
All drawings © Ministry of Design
> via Ministry of Design
