Submitted by WA Contents
BDR bureau completes community school with pinkish steel framework in Turin
Italy Architecture News - Sep 23, 2019 - 13:24 12446 views

A new pinkish-colored community school tries to redefine the concept of a community school with a steel framework and green elements in Turin, Italy.
Completed by Turin-based architectural firm BDR bureau, the school was transformed from the existing school building in Turin and was realized as the winning project of an international competition launched in 2016 by "Torino Fa Scuola".

The initiative, promoted by the Compagnia di San Paolo and the Fondazione Agnelli, in collaboration with the City of Turin and "Fondazione per la Scuola", embodies a cultural, pedagogical and architectural reflection on the new learning spaces of the Italian school.

The existing school building, built in the 1960s in the Nizza Millefonti district between the former industrial area of the Lingotto and the Po river in the south-east area of Turin, has been extended and it is functionally rethought.
The new educational needs – in which the school becomes an integral part of the community and merges with the urban fabric – represents the future of education and architecture for the Italian school.

The Fermi School, a middle school, opens up to the urban sphere through the reorganization of its entrances and of its external spaces. The back of the existing building becomes the large new main entrance, shaping a green space while unfolding to the neighborhood and emphasizing the concept of a community school.

The ground floor is an extension of the public space: integrating a series of services open to everyone, such as the gym, the library, the auditorium and the cafeteria.

"We wanted a project able to dialogue with the existing building and revolutionize its function at the same time. New spatial elements, transparencies and additions reinterpret the original structure with the aim of opening the school to the city," said the architects Alberto Bottero and Simona Della Rocca.

BDR bureau mainly extended the school with new additions: a new steel structure creates an inhabited envelope where the terraces are an integral part of the teaching program, embraces new connective spaces and works as a passive shield.
The modularity of the new frame outlines a thread-like backbone, completed by a metal net that highlights the visual permeability and the relationship with the outside.

The frame’s compositional scheme is also repeated in the old building, whose façades are treated with a multigrain plaster creating depth variations.
The façades of the new front and those facing towards the courtyards maintain large windows that enhance the relation between the various different volumes and the outdoor spaces, bringing new meaning to the original layout.


The ground floor is designed as a civic center, where the different functions are gathered in the atrium, directly connected with the garden and the two entrances. The atrium stretches to the upper floors thanks to a vertical element, a stairwell that evokes the external architectural language. The flexible library and auditorium space, the cafeteria and the gym complete the public spaces on the ground floor.

On the two upper floors, the atrium accommodates recreational and collective spaces, while theeducational activities are organized in clusters – spatial units composed of classrooms, cloakrooms, services and informal learning spaces. The classrooms become the meeting point and the linkage between inside and outside, retaining a visual connection to the common space and giving access to the terraces.

Just like in the experimental en plein air schools, the educational and recreational activities take place outdoors. In these open spaces, the green areas and the dialog with the surrounding landscape encourage students and professors to meet and exchange ideas in their daily activities, thus adding great value.

The planning project shared with the community carries an explicit and higher ambition as well: "to set the standard by building a school in both the pedagogical and educational sense".

At the same time, the innovation of the school structure and the inclusion of new architectural and spatial elements make the Fermi School by BDR bureau a case study, a replicable model for the requalification of the school building heritage.












Site plan-1

Site plan-2

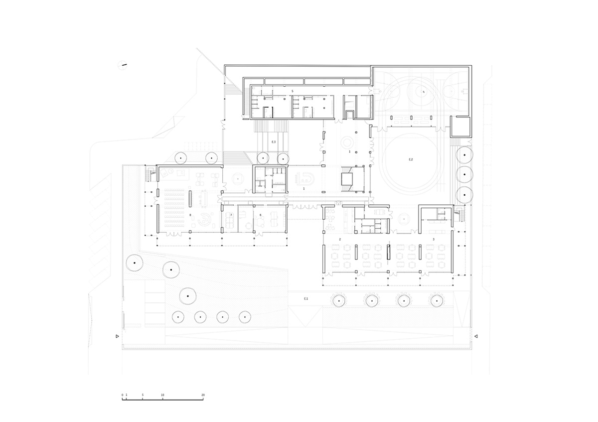
Ground floor plan

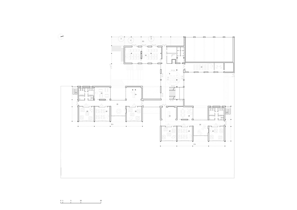
First floor plan

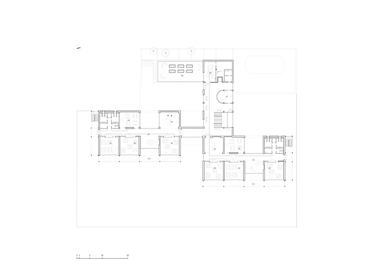
Second floor plan

Section-A

Section-B

Elevation South-East

Elevation North-West
Project facts
Project: Enrico Fermi School
Address: via Biglieri 19, Turin (Italy)
Client: Fondazione Agnelli, Compagnia di San Paolo
Programme: middle school with library, auditorium, cafeteria, gym, classrooms and public spaces
International competition: first prize, 2017
Design phase: preliminary project (October - November 2017); assigned project (December 2017 - January 2018); executive project (February - March 2018)
Construction phase: July 2018 - September 2019
GFA: 5.096 sqm
Area surface: 5.579 sqm
Costs (including furniture, technical costs, landscape): 7.300.000 € (VAT included)
Architect: BDR bureau
Structural and executive planning: Sintecna srl
Mechanics and electrical advisor: Proeco ss
Sustainability and acoustics advisor: Onleco srl
Furniture design: BDR bureau
Construction supervision: Sintecna srl
Art direction: BDR bureau
Project Manager: FCA Partecipazioni S.p.A
Materials
Façades: plaster, metal structural work, stainless steel wire mesh
Interior flooring: linoleum, rubber
Exterior flooring: draining concrete, precast concrete, prestressed adaxite coating
Windows: aluminum, selective glass
Ceiling: acoustic fiber plaster
Furniture
Benches and chairs: VS school furniture
Pouf, small sofas, folding steel tables: Pedrali
Canteen and auditorium chairs: Infiniti
Wardrobe, bookcases, built-in wardrobes, entrance counter, cafeteria: custom-made
All images © Simon Bossi
All drawings © BDR bureau
> via BDR bureau
