Submitted by WA Contents
Antonio Costa Lima designs continuous inner gallery in Portugese house to overcome windowless façade
Portugal Architecture News - Feb 24, 2017 - 13:55 16789 views

A continuous rounded inner gallery creates a free movement and fully glassed façade looking at the inner courtyard of this Portugese house in Estoril, designed by Portugese office Antonio Costa Lima Arquitectos.

The house is located in a strictly defined plot of Estoril, Portugal and situated within dense Portugese houses, carry the classical characteristic of the town.
The basic design approach for this house is to overcome a windowless façade surrounded by city houses and narrow streets. The architect designed an ascetic movement from the land which seeks light and views of the valley on the east and the sea to the south.

''The idea of the house comes from a personal meaning transmitted by the client: the house represents a step in the journey of life,'' said Antonio Costa Lima.

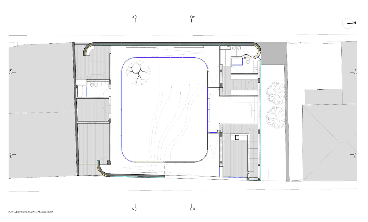
The ground floor patio features living room, dining room and kitchen, private area with rooms and offices and a terrace, including a roof top garden. It is the extension of this route into the house that defines the entire inner and outer space.
The patio result of this continued movement gallery ramp and are defined two distinct altimetric volumes separated from each other through half floor height.

A car parking place is directly reached front the street and with three stairs, the user reach this glamorous courtyard surrounded by fully transparent movement gallery.
























All images © Francisco Nogueira
All drawings, models © Antonio Costa Lima Arquitectos
