Submitted by WA Contents
Anonym Studio completes Y House with white louvres in the old neighborhood of Thailand
Thailand Architecture News - Dec 18, 2017 - 02:56 22971 views

Bangkok-based architecture firm Anonym Studio has completed a new private residence within the old neighborhood of Nonthaburi, Thailand. Named Y House, the three-storey house is designed according to the limitations of the project site, which clearly gives the shape of the plot to this house.
Located in the Nonthaburi province, the house is situated is one of the satellite cities of the Bangkok Metropolitan Area that has a certain distance from the chaos of the centre of Bangkok, and "it does not mean that the rapid changes of Bangkok will not affect the context of this house," states the studio.

Covering a total of 500-square-metre space, the all-white-coated private house creates a dialogue with its existing context through the rhythm of building skin layering.
The house brings about the perception of the flow of spaces from the context to living spaces of the house. The relationship creates enclosed spaces and environment that provides privacy, while connects the house to the urban ecology in harmony with lives inside.

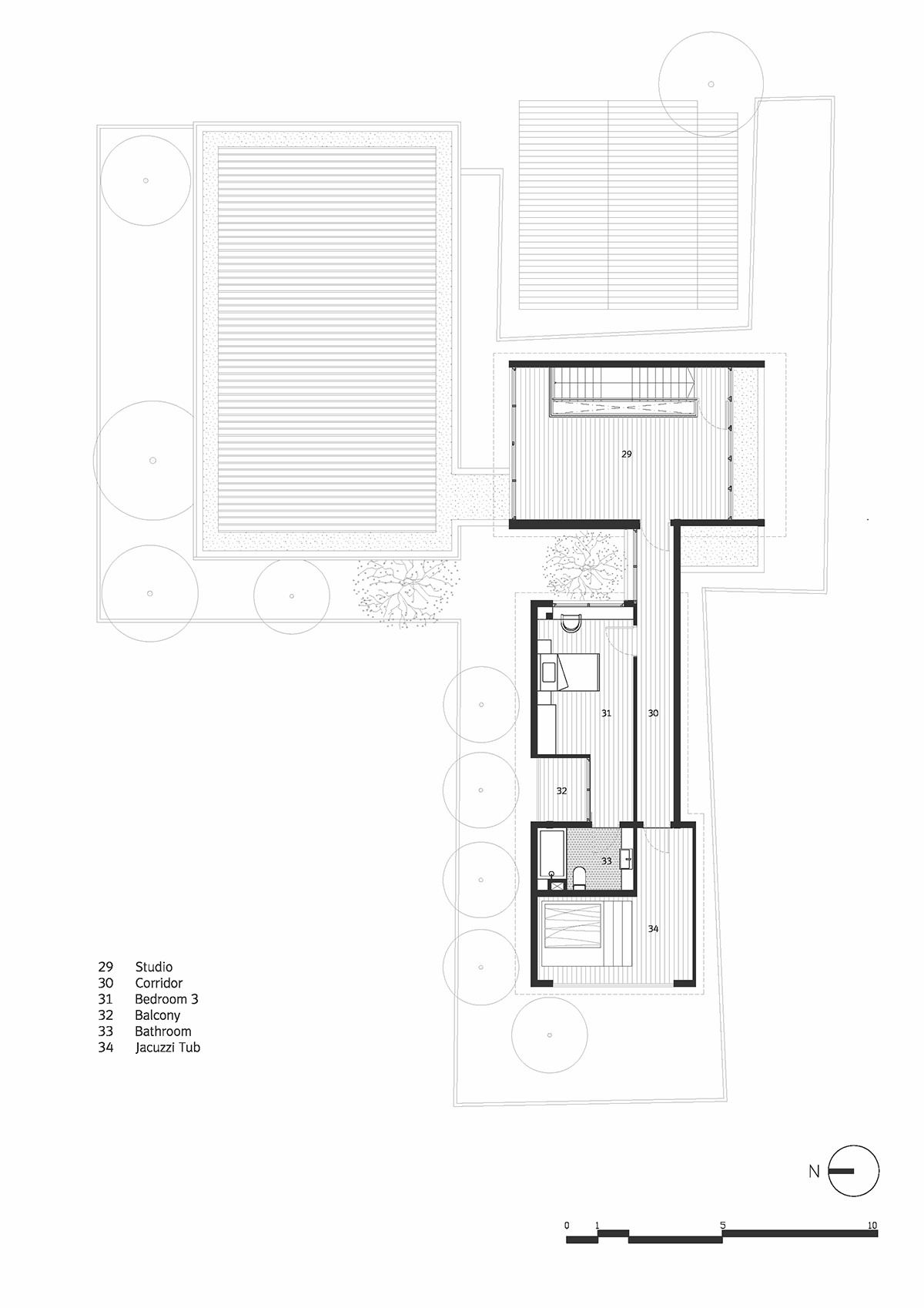
Led by architects Phongphat Ueasangkhomset and Panduangjai Roojnawate, the residence includes four bedrooms, two sitting rooms, and one studio. Using the limits of the Y-shaped land plot, the architects create small courtyards and gardens to achieve a micro-ecology of the house, connecting living spaces together.
The studio also employs a formal difference while the articulation of the architectural skins and mass creates visual sequences that reflect the owners' memory and long-established relationship with the neighbourhood.

"While one walks through the spaces, one can perceive different fragments of the urban context through the various layers of building skins," said Anonym Studio.
"For the house stands in the midst of constant changes of the metropolis, an attentive solution to the visual and psychological distance between the house and its context becomes crucial for creating the living spaces."
"The environment of the house itself is designed to be both protective as well as open towards the changes at the same time," explained the architects.

The architects created a particular architectural language for the house by considering such limited circumstances caused by the particular Y-shape of the land plot, the plot size, and the functional requirements.
All these external parameters are articulated within the relationship amongst the small open courtyards, narrow strips of the garden along the house, and the layers of the skins.

"The architectural elements, therefore, plays a role of interlocutor with the context and life. The architects use the layering of surfaces to achieve the effects of various shades of atmosphere for different functional spaces, keeping the shades of perception of the surrounding context in harmony with life inside. So it brings about another form of living "with" the ever-changing urban context," added the studio.

Using white painted steel brise-soleil, this brings about superimposition of visual perception that draws the surroundings into the interior spaces and it also reduces heat gain by deflecting sunlight through the building.
The vivid and colourful row-houses or the detached wooden houses in the neighbourhood are not cut out but appear from time to time when one moves freely inside the house and become a part of the environment of the house itself.

"All of these form a conversation in which the house pronounces its speech to the context by exposing its identity and differences through a simple form, while it still listens, observe and perceives what is going on in its beloved outside world, explained the studio.













Site plan

Ground floor plan

Second floor plan

Third floor plan

Roof floor plan

East elevation
Anonym Studio recently completed the transformation of a Bangkok's old house into a flexible house with steel flower beds to create more openness. The studio, founded by Phongphat Ueasangkhomset and Parnduangjai Roojnawate, designs different residential projects, majorly focusing on Thailand's local context.
Project facts
Project Name: Y House
Architect: Anonym, Phongphat Ueasangkhomset, Parnduangjai Roojnawate
Interior designer: Anonym, Phongphat Ueasangkhomset, Parnduangjai Roojnawate
Location: Nonthaburi, Thailand
Area: 500 sq.m.
Project year: 2017
All images © W Workspace
> via Anonym Studio
