Submitted by Sarbjit Bahga
Louis Kahn-designed IIM-Ahmedabad invites alumni to support its restoration and conservation
India Architecture News - Mar 10, 2017 - 14:45 34591 views

Louis Kahn-designed Indian Institute of Management, Ahmedabad (IIMA) - a 'modern brick wonder' now needs massive restoration and conservation to retain its original glory.
Five-decade old campus has successfully withstood the vagaries of weather and many earthquakes in the past. Thanks to the most versatile material -'brick', to whom Louis Kahn once asked,'' ''What do you want?'' and brick said, ''I want an arch.''

Keeping in view the need for up keeping the campus, IIAM authorities have now invited its alumni and corporates to contribute to the conservation and restoration of its Heritage Campus. Indian architects Somaya and Kalappa Consultants Pvt Ltd have been assigned the task of restoration work.
"About five decades ago, the renowned American architect Louis Kahn translated education philosophy into infrastructure when he assumed responsibility of building IIMA’s infrastructure," said IIMA in a press release.
"Generations of students since then have been inspired by the spaces to reflect, deliberate, break the mould, and free the spirit. These buildings have witnessed generations of academic life on campus and withstood Gujarat earthquake. The grandeur of the Louis Kahn Campus infrastructure leaves the visitors to campus awestruck. But age has taken its toll, requiring conservation and restoration on priority," IIMA said.

The release said the Government of India had recognized the conservation and restoration of IIMA’s iconic Louis Kahn Campus buildings as an important task and contributions for this are covered within the ambit of corporate social responsibility (CSR) in the Companies Act 2013 under ''protection of national heritage, art and culture, including restoration of sights of historical importance as well as promoting education.''
IIMA has recently received significant funding from individual alumni and alumni batches to support conservation and restoration of dorms, classrooms, and other infrastructure.
The institute had announced last year the TCS–IIMA partnership for restoration and improvement of Vikram Sarabhai Library at IIMA, supported by a Rs. 20 crore funding by TCS Foundation.
Ms Susan Macdonald, Head – Buildings and Sites, the Getty Conservation Institute added, ''After some 50 years, Louis Kahn's magnificent IIM complex still has the ability to inspire and move the human spirit. Inevitably, it is now suffering many of the conservation challenges typical of many great architectural works of the modern era. It is to be commended that IIM has commenced a careful and thorough program of work that seeks to understand these challenges and develop conservation approaches to sustain Kahn's great work over the next 50 years.''

''I am touched by these gestures and thankful to our alumni for the love and care that they have for the Institute. The strong commitment of IIMA alumni to the institute will enable us to pursue excellence in teaching, research, and infrastructure and educate future generations of leaders,'' said Prof. Ashish Nanda, Director IIMA.
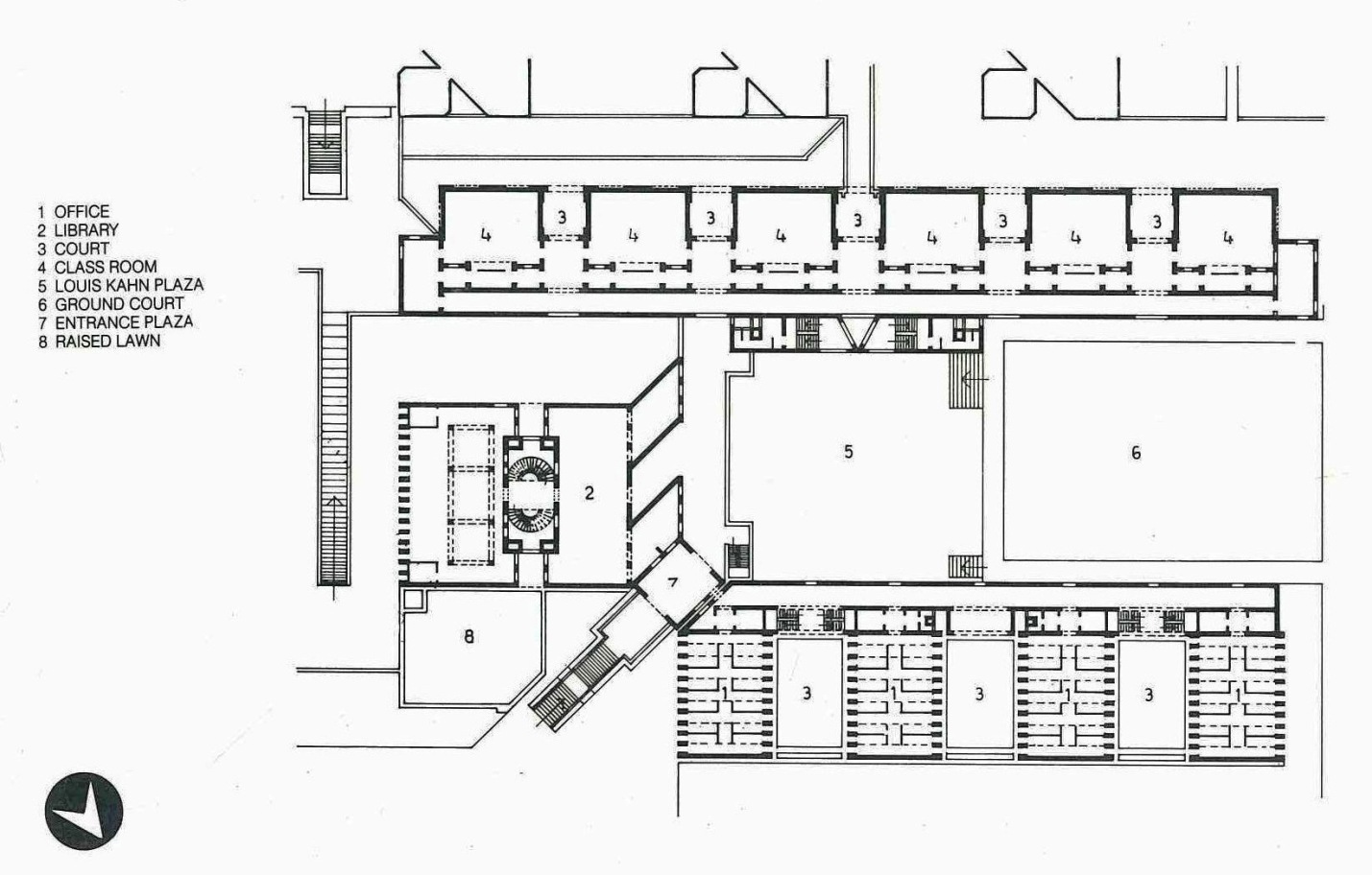
The iconic Louis Kahn Campus buildings consist of library, faculty wing, eighteen dormitories, tower lawn and Louis Kahn Plaza. The entire conservation and restoration work will cost approximately Rs 130 crore of which Rs 30 crore have been raised already. The restoration work has already begun for the library and one of the eighteen dormitories.

The aim is to conserve and at the same time upgrade the buildings for example to make the buildings disabled friendly but the main idea is to restore the original structure of the building as initially designed and constructed.
"The process of conserving and restoring will be more challenging now in the short run. We are convinced that in the long run this is clearly nurturing an asset that the institute will be very proud of and Indian society will be very happy about", said professor Ashish Nanda, director of IIM-A.

Campus layout

Academic wing
All images © Sanyam Bahga/Flickr
> via NetIndian
