Submitted by WA Contents
Francisco Pardo Arquitecto converts old auto-parts warehouse into a vibrant local market in Mexico
Mexico Architecture News - Jul 11, 2017 - 13:48 14906 views

A gridded-concrete facade with open terrace and public space marks the corner of a historic street of Colonia Juarez in Mexico City - the building was carefully converted from an old auto-parts warehouse into a vibrant local market by Francisco Pardo Arquitecto in collaboration with architect Julio Amezcua, co-founder of AT103.
Named Milán 44, the building is conceived as an urban-regeneration project located in Colonia Juarez, is a small town in the northern part of the Mexican state of Chihuahua.

Occupying a total of 1,016 square-metre space, the project transforms a four-storey warehouse built in the early 1900’s that was originally home to an auto-parts store into an urban market that reactivates a neighborhood, which connects two entirely contrasting areas. On one side, the booming business district that lines the emblematic Paseo de la Reforma, and on the other side, the lively epicenter of hipster subculture, Colonia Roma Norte.

This area, which has been in decay since the 1985 earthquake, is currently experiencing a slow gentrification process. Centrally located and rich in history, it has been equipped with new infrastructure and now holds the genetic code for the city’s future development.
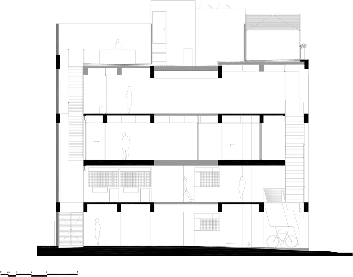
Transforming the existing building according to the new dynamics of the area has been the main challenge for the architectural firm, who decided to integrate a regular grid of concrete beams, columns and slabs, originally conceived from a utilitarian perspective, into the poly-dynamic venue’s new public role.

Left exposed like a raw skeleton, the reticular structure is the framework for a two-storey local market, restaurants, and several private commercial spaces including a barber’s shop and a yoga studio. The new public program intrinsically and physically forms an extension of the city itself: the former warehouse with its blind façades vigorously shakes off its skin, opening up and inviting the urban fabric to come in.

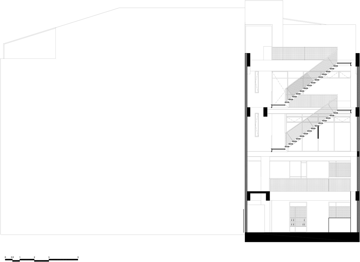
While maintaining its original scale and structure, the building has undergone a complete metamorphosis: a green staircase has been added to generate fluid vertical circulation. Acting like a fil-rouge, this element connects the spaces and invites visitors to explore the building extensively.
"Through it, the street folds to the inside and upwards," said Francisco Pardo, founder of the architectural practice. "It’s like a vortex that transversely crosses the building, pulling the street right up to the rooftop".

The architectural peak culminates on the top floor, which is also open to the public and hosts a beer bar: in this way, the Milán 44 project gives back to the city much more than just the ground floor of a standard building, which is typically designated for commercial use.
In its place, an entirely fresh, dynamic venue has emerged, in homage to the collectivity that embodies the radical change embracing the area.










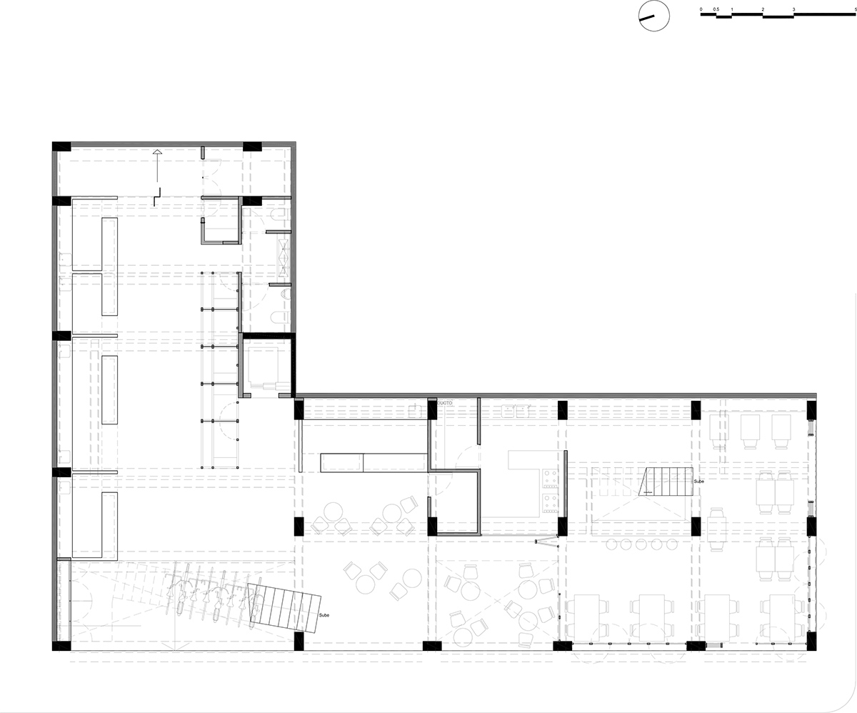
Ground floor plan

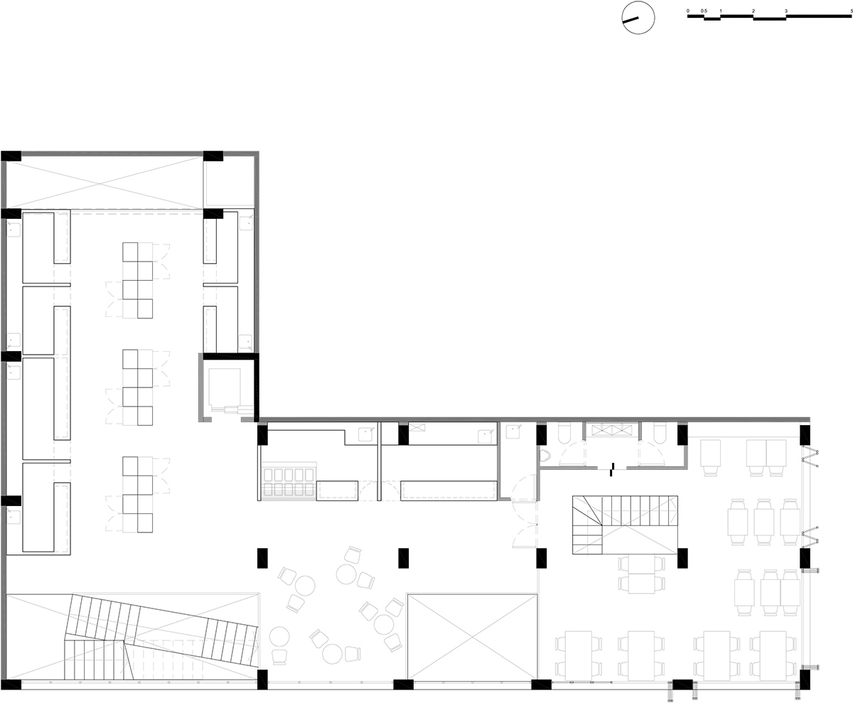
1st floor plan

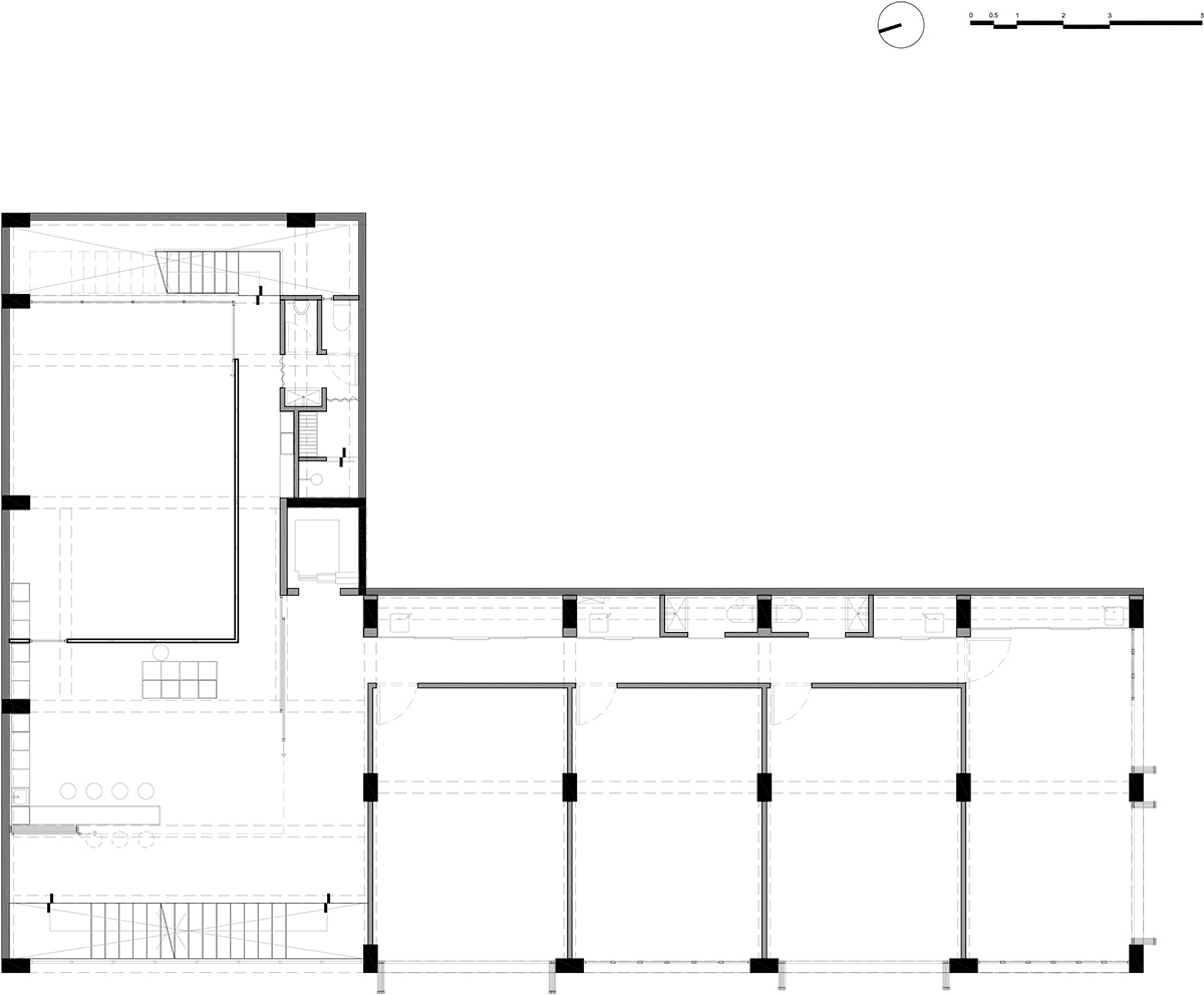
2nd floor plan

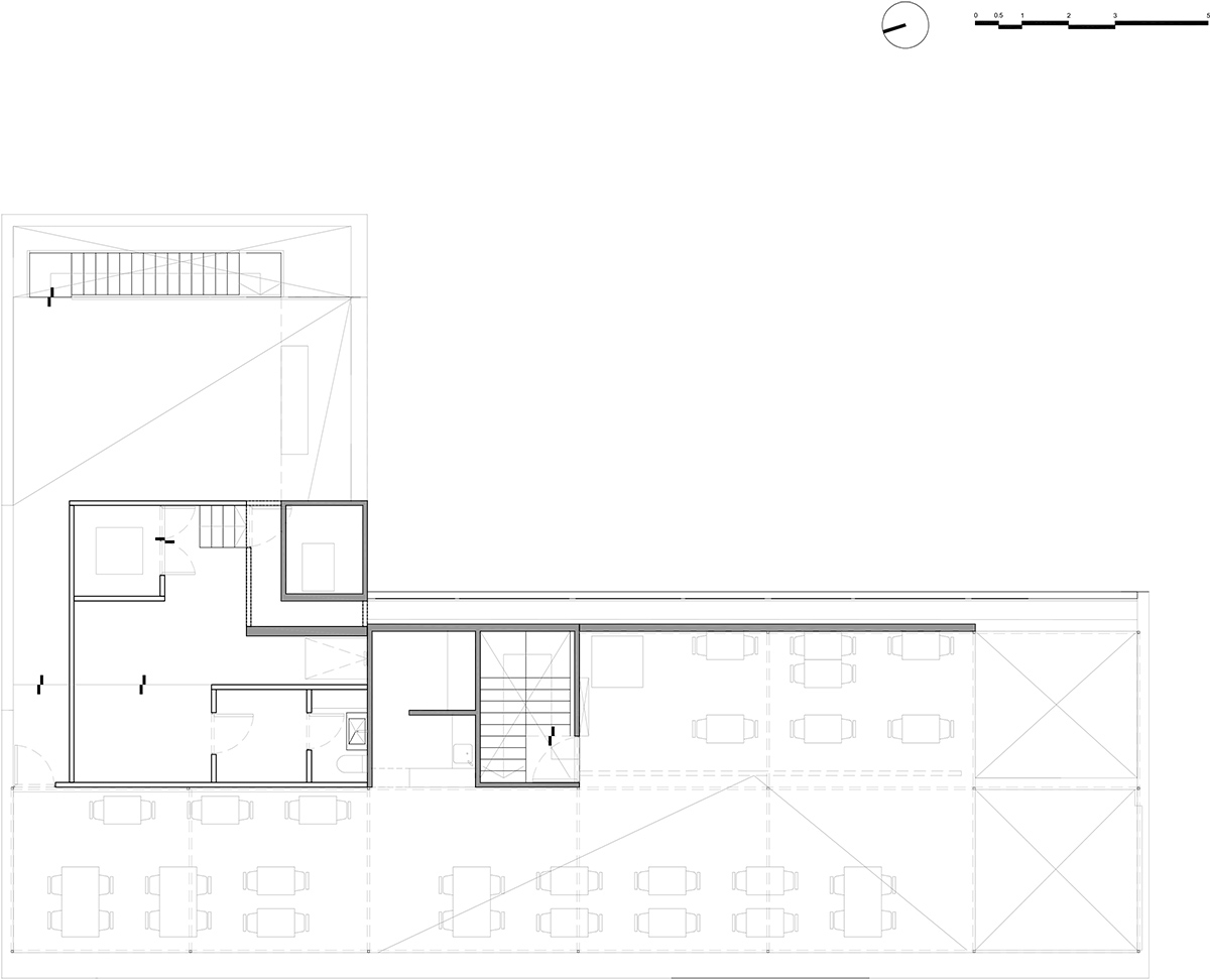
3rd floor plan

4th floor plan

Axonometric drawing

Cross-section-1

Cross-section-2

Longitudinal section
Project facts
Project: Milán 44 ReUrbano
Location: Milán 44, Colonia Juárez, Mexico City (MX)
Architects: Francisco Pardo Arquitecto + Amezcua
Design team: Jan Müller, Tiberio Wallentin, Gabriela Mosqueda, Benjamín Mercado, Víctor Cruz, Aarón Rivera
Real Estate Concept: ReUrbano. Rodrigo Rivero Borrell Wheatley + Alberto Kritzler Ring
Design: 2014
Completion: 2017
GFA: 1.016 sqm
Restaurant ‘Ojo de Agua’ Design: Casa Villana
Awards: 2017 Archmarathon Awards Milán. Milán 44, category Commercial Retail, first prize
2016: Quito Panamerican Bienale. Milán 44, category Rehabilitation & Recycling, first prize
2016: Mexican Architecture Bienale. Milán 44, silver medal
All images © Diana Arnau
