Submitted by WA Contents
Mecanoo completed Zaans Medical Centre in Netherlands
Netherlands Architecture News - Jun 28, 2017 - 13:57 19254 views

Mecanoo has completed new Zaans Medical Centre with full of natural light and colourful interior, which proposes adaptable and flexible spaces to upgrade patient experience to another dimension. Zaans Medical Centre is the first lean hospital in the Netherlands. It is an efficient and compact building in which professional healthcare and a personal approach strengthen each other.
The studio combines architecture, urbanism, landscape and interior in a coherent design. Clear routing, an abundance of daylight, and positive distractions contribute to an environment that does not feel like a hospital, but as a place that promotes wellbeing. Mecanoo chooses a very soft coloured palette for the façade of the building starting from orange-coloured-brick to pastel tone of brick, which creates a smooth transition for the outer skin and makes the building more integrated in the city context.

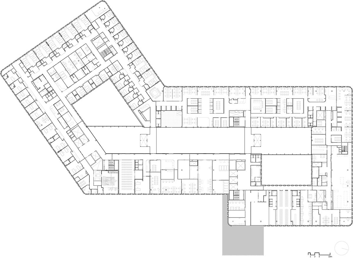
The 38,500 square-metre hospital consists of acute centre - with 8 operating rooms - intensive care unit, cardiac care unit, outpatient clinics, theme centres according to the shop-in-shop principle (such as pain centre, exercise centre, Esperanz, cardiovascular centre), diagnostic centre, day care centre, hospitals (137 beds) with separate mother-child centre, laboratory, pharmacy, public functions, offices and meeting centre for the ZMC Academy and the parking garage for 700 vehicles.

"All departments are designed to prevent any form of waste. Whenever possible, the outpatient clinics and nursing departments are standardised, allowing for exchangeability and adaptability. The Zaans Medical Centre is therefore flexible and future-proof," said Mecanoo.
"The patient experience played a crucial role in the design process. Positive distractions can reduce the stress of a hospital visit and advance recovery. The spacious multi-storey lobby has the feel of a welcoming public building. Semi-circular voids and skylights, the use of wood, bright colours, good acoustics and unobstructed views of the surroundings provide a pleasant atmosphere."

All hospital wards can be accessed from an internal street with many sheltered waiting areas. At either end of the street is a landscaped courtyard. Hand-drawn illustrations on walls, glazed partitions, and lifts refer to the industrial heritage of the Zaan region. A special spiral slide offers children an adventurous way to travel between levels.

Adjacent to the Zaans Medical Centre lies a health boulevard with a rehabilitation hotel, a pharmacy, eye clinic, various shops, a supermarket and a parking garage, designed to function as a small town.

The smart combination of the medical centre and related healthcare services results in a health district for Zaandam and the region. The hospital was developed by the Zaans Medical Centre and Vitaal ZorgVast, and constructed by BAM, within time and budget. SILO Agency designed the illustrations and environmental graphics. The building is BREEAM Very Good certified.








Ground floor plan

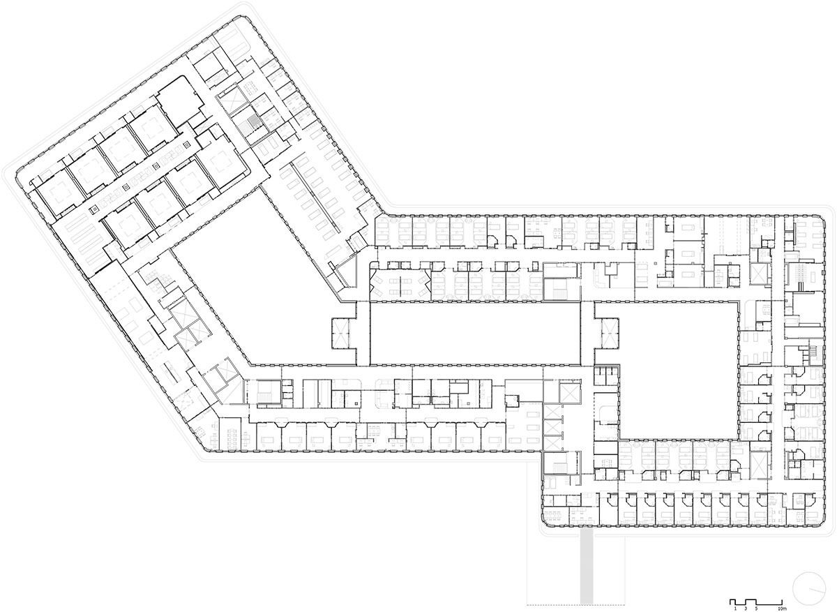
First floor plan

Second floor plan

Third floor plan

Fourth floor plan

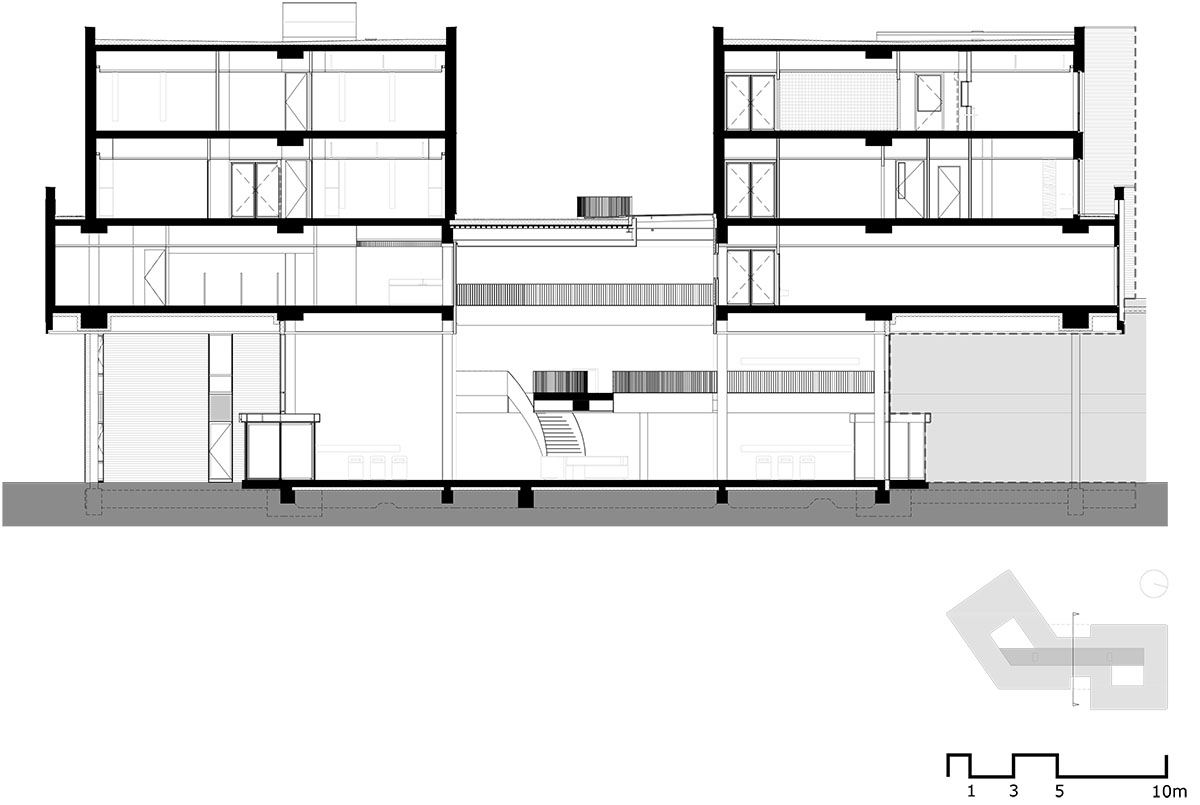
Section-1

Section-2

Section-3

East elevation

West elevation

North elevation

South elevation

South-west elevation

North-west elevation

Axonometric section

Axonometric section-2
Project facts
Project name: Zaans Medical Centre
Location: Zaandam, Netherlands
Programme: 38,500 m2 hospital with acute centre (8 operating rooms), intensive care unit, cardiac care unit, outpatient clinics, theme centres according to the shop-in-shop principle (such as pain centre, exercise centre, Esperanz, cardiovascular centre), diagnostic centre, day care centre, hospitals (137 beds) with separate mother-child centre, laboratory, pharmacy, public functions, offices and meeting centre for the ZMC Academy and the parking garage for 700 vehicles.
Client: Zaans Medisch Centrum, Zaandam; Vitaal ZorgVast, Bunnik
Design: 2012-2014
Realisation: 2014-2016
Structural engineer: BAM Advies & Engineering, Bunnik
Mechanical engineer: Ingenieursbureau Linssen b.v., Amsterdam
Building physics consultant: DGMR Raadgevende Ingenieurs B.V., Arnhem
All images © Mecanoo
> via Mecanoo
