Submitted by WA Contents
Dieter Dietz completes birdhouse-looking living space nestled in the Swiss rural landscape
Switzerland Architecture News - Feb 05, 2018 - 03:07 24329 views

Zurich-based architect Dieter Dietz has completed a birdhouse-looking living space nestled elegantly in the Swiss rural landscape, as well as the refurbishment of one of the 19th century buildings, which was formerly used as a press-house.
Dieter Dietz, who runs his own company dieterdietz.org based in Lausanne and Zurich, used a mega triangular structure to create a distinctive skin, in refence to the existing rural environment.

View from the courtyard
Built as a new Grange, occupying a 701-square-metre area, the intervention immerses itself in an evocative context of a 200-year-old Chestnut tree and a very tall Sycamore in the midst of the vineyards of Chigny, Switzerland that hide a cluster of carefully proportioned houses dating from the 19th century, which are perfectly integrated into the landscape.

View from the backyard
The new house provides views towards the Lake of Geneva and the French Alps, with the impressive Mont Blanc blurring against the sky: a perfect setting for a very unique project.
"The client requested a design which fostered the coexistence of shared and individual living spaces to provide an opportunity to live independently within a community of friends and their families," said the firm.

The project strongly follows the prevailing characteristics of this rural site, where solitary volumes in conglomerates provide space and shelter for everyday activities.

The 19th Century Pressoir House
"By adding a house and following the typology of a barn, a further gravitational mass has been added to the interplay of volumes among the trees. The garden remains the locus of identity, where the refurbished Pressoir (press-house) and the new Grange (barn) articulate an interstitial court in the uninterrupted landscape," added the firm.
"Chestnuts will fall close to a new roof, built entirely of nano-film coated solar-cells that provide energy for the new and the refurbished houses."

View from the Grange house' entrance
The layout of each house is structured around a generous-sized room that serves as a social hub for the people living in both houses. Thus, the two houses can be inhabited as one common place.

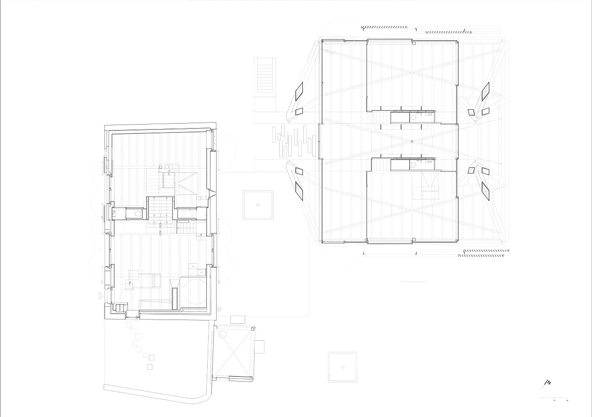
Grange house ground floor
Likewise, each house can be individually occupied, as both Grange and Pressoir are suited as work-and-living environments with a plan that plays on interstitial thresholds of voids, doors, curtains and sliding panels that gradually negotiate between public and private spheres.

Grange house ground floor
The studio followed the same construction principles in both projects, the houses rely on a basic palette of materials, which accentuates their genetic similarities and differences. The press-house is fully refurbished while maintaining its original structure, walls and carpentry.
Now exposed and with visible signs of age, these structural elements tell the story of the building. New openings follow the proportions of existing ones, literally being drawn around the facades.

Grange house upper floor
The exoskeleton of the Grange embodies a reverberation of the exposed roof truss of the Pressoir. In structural consequence, the logical order is reversed and primary exposed steel is completed by a timber secondary structure.

Pressoir house ground floor
"These houses offer a frame for living. Like a canvas drawn into space that awaits life to complete itself. Users will further define visual and spatial articulation," said Dieter Dietz.

Pressoir house - a view from kitchen
From the inside out, the two buildings orient themselves towards the Lemanic landscape, opening views onto the vineyards and the surrounding orchard.

Pressoir house features a japanese bath
Over time, they will be fully shaded by trees and growing plants and flowers that climb between the roofs, and reflect the blossoming fusion between housing development and nature.

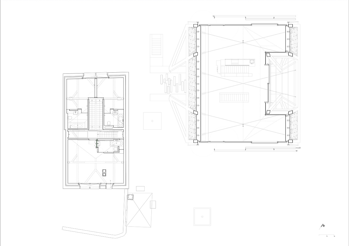
Pressoir house upper floor

Site plan

Ground floor plan

First floor plan

Roof plan

Cross section facing hill

Cross section facing lake

Cross section facing hill

Cross section facing lake

Long section of Grange house

North West elevation

South East elevation

South Wast elevation

North East elevation
Project facts
Location: Chemin de Vuideborse 1, 1034 Chigny, Switzerland
Client: Forel/Schrämli, Zurich
Architect: dieterdietz.org, Zurich and Lausanne
Project architects: Dieter Dietz, Vincent Mermod, Manuel Potterat
Civil engineer: Schnetzer Puskas, Basel
Landscape architect: dieterdietz.org
Completion: 2017
Lot surface: 1.910 m2
Volume: 2.559 m3
Constructed surface: 701 m2
Heated surface: 590 m2
Solar roof: 250 m2
Installation performance: 20.37 [kWp]
Output/year: 15.200 [kWh]
Volume skin ratio: A/EBF 2.21
Qh: 192 MJ/m2a
Qww: 50 MJ/m2a
All images © Joël Tettamanti, except cover image © Adrien Comte and Mikael Blomfelt
> via dieterdietz.org
