Submitted by WA Contents
Expansion at Ravenor Primary in Greenford by Seymour Harris Architecture won RIBA Award
United Kingdom Architecture News - May 25, 2015 - 09:04 8151 views

all photos © Daniel Burton
A primary school expansion in Greenford was one of the winners at London's biggest celebration of architecture and architects awards.
The Royal Institute of British Architects (RIBA) London Awards 2015 recognised 38 winning projects across the capital at the ceremony in the National Theatre on Monday (May 18). The expansion at Ravenor Primary School, in Greenway Gardens, with the cheerful quality of an adventure playground by Seymour Harris Architecture, was one of the award winners.
Acting headteacher Leonie Lobo said: "The children, staff and governors at Ravenor Primary school are delighted to have received the RIBA award for our Meadow building. This building has been a real asset to our provision and has complemented the high standard of education provided here at Ravenor. "This award is recognition of the vision and creativity of design by the architect Colin Way and we have been fortunate to work in partnership with such a true talent.".....Continue Reading





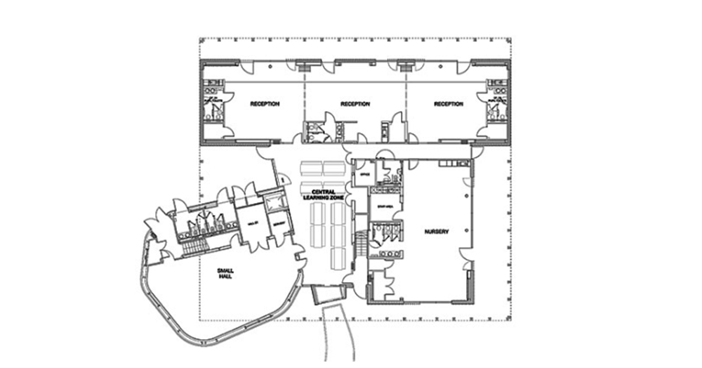
plan of the school;image © Symour Haris Achitecture
