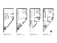
Site Area for this house is 39 m² and I should Designed a house with 3 bedroom and one office and one parking for client ... The client was an artist and hi needed a small place for home work and for meeting with his client, I used for ever spaces in this house such as under stairs and sharp edge for commode and dresser ... So i called this house named ( 39 m HOUSE ) ... This area , there is between to old historical office building for 100 years ego and I wont designed a building to damage the old facade , ... I designed a minimal building and minimal facade ... this is a functional and minimal residence for minimal artist .

2013

Building structure and make info :
Steel structure - Exposed staircase - Masonry stuff - White Nano Cement facade - Roof garden ...

/

Ali Ghaffari