This small project had originated from an idea of one musician, who wants to have very small temporary unusual building selling equipments for music industry. At the same time, his budget and timing are very limited. Many types and options of building have been brought into consideration between the architects and client.

At the end of the day, the used and abandoned containers have become the most acceptable and interesting concept for both architect and client’s design solution. They are economical, unique, quick assemble and it is an interesting way to give a new life to the almost worthless product.

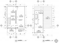
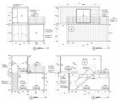
The project includes the use of 3 old containers which were carefully chosen by architects from the junkyard. The client prefers to have the exterior skin re-painted rather than to have them as they are, as proposed by the architect. The interior spaces of the shop have been arranged into 3 main sections. Firstly, the shop area on the ground floor consists of combining 2 containers together. Secondly, the office and living area are located on the second level. Finally, a spacious balcony connected to the living area. The sound and heat insulations have been specially integrated to the overall interior spaces of the shop, in order to protect the echo sound and to control the internal temperature.

In Thailand, This kind of project are rarely to be found, thus, coordination between the architect and the local contractor becomes very important, and at the same time, very difficult. The details of every single distorted spots of the containers have to be carefully drawn up and check by architects; in order to achieve the correct interior and exterior fittings.

2009

2009

/

Vin Varavarn Architects Ltd. Inhouse

Favorited 1 times