Submitted by WA Contents
Simple Architecture renovates old house with gridded façade in Bulgaria
Bulgaria Architecture News - Nov 15, 2023 - 12:28 2648 views

Sofia-based architecture practice Simple Architecture has renovated an old house with gridded façade in Sozopol, Bulgaria.
Named House In Sozopol, the house is located near the Black sea town of Sozopol and is situated on a plot with panoramic sea view.
Simple Architecture partially overhauled the house and completed visual transformation of the existing house.

East elevation view
The house was originally built around 15 years ago in a style imitating the authentic for Sozopol architectural elements and materials: multitude of inclined roofs with tiles, facade planking and tile cladding, bay- windows and arches.
The goal of the contractor was to achieve the exactly opposite effect: the contractor aimed to have "a contrasting, memorable, minimalistic and contemporary architecture."

South elevation view
The biggest challenge of the project has been to reduce as much as feasible the cluster of geometries and to emphasize the constructive principle of the building by making some spatial and organizational improvements of the interior.

View from the sea
The guiding idea of this project has been to create a light, elegant and ethereal atmosphere, dominated by the sea view and the constantly changing colours of the surrounding nature.
Both the interior and the exterior have been decided in nuances of the white with the only colourful touch being the works of art present in the house.

Main entrance view
The courtyard has various relax areas, each with its unique qualities, thus guaranteeing the diverse experience of the exterior.
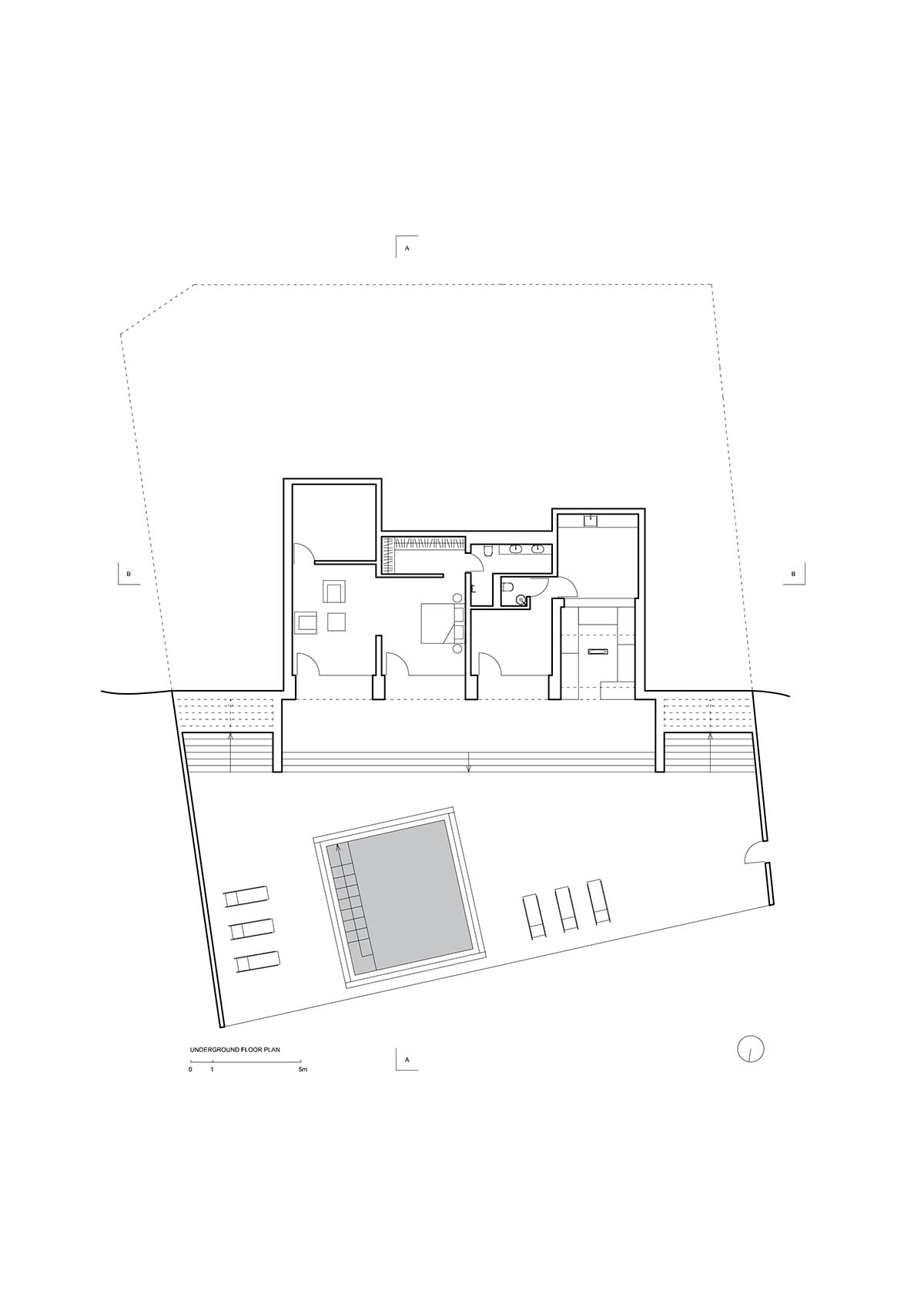
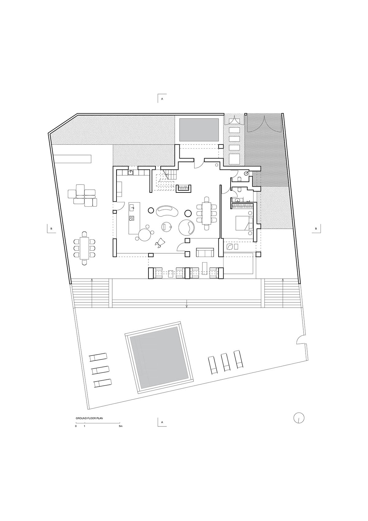
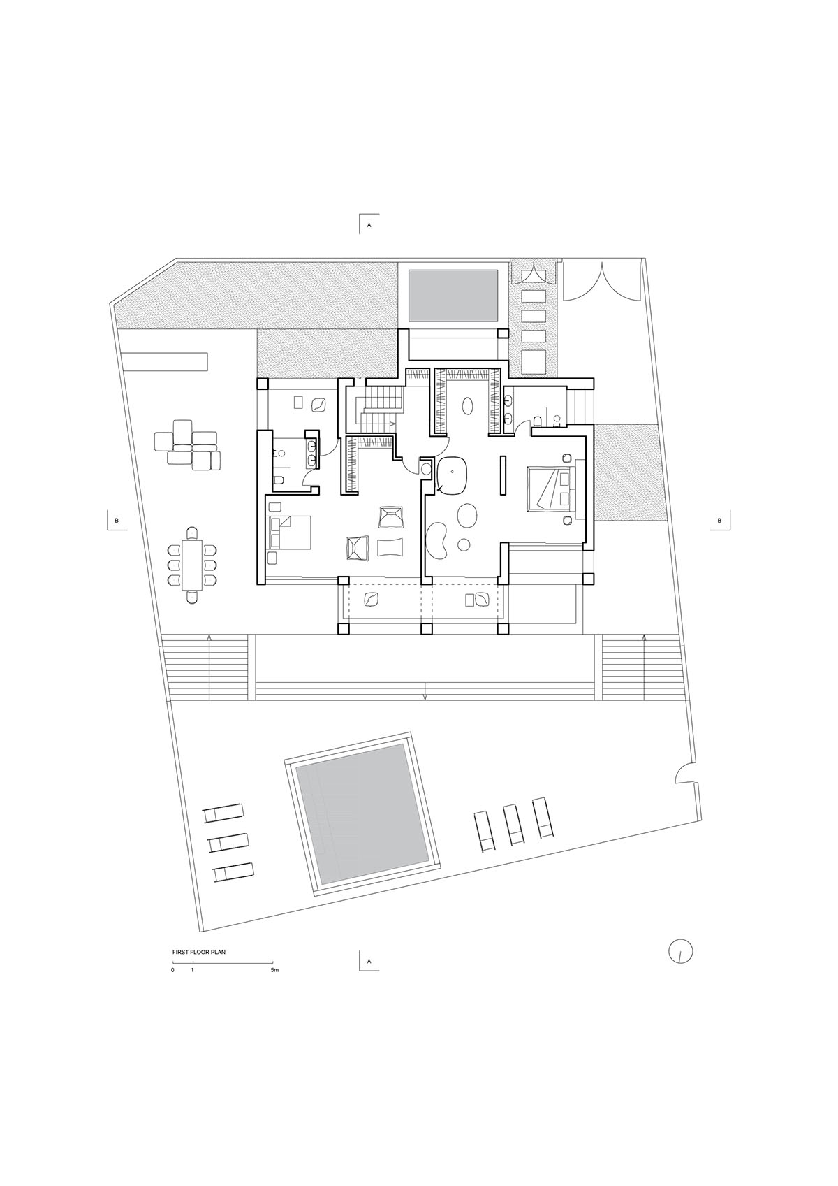
In terms of organisation, the three-story house, has one big common area, which includes a living room, a kitchen and a dining room. There are also four bedrooms, four bathrooms, two toilets as well as storage and service rooms.

Corridor lounge area
The furnishing with its plastic, abstract and non-standard forms has been carefully selected to create the overall feeling of being into an art gallery.

Pool area

Entrance Area with water mirror

Living Room

Kitchen

Master bedroom

First floor terrace

Lounge Area and Outdoor Kitchen

Outdoor Area Fragment

Living Room and Kitchen

Dining Area

Living Room Sea View

Staircase

Guest Bedroom

Master Bathroom

Master Bathroom

Guest bedroom 2

Master Bedroom 2

Guest bathroom

Guest Bathroom

Underground floor plan

Ground floor plan

First floor plan

Section AA

Section BB

East elevation

West elevation

North elevation

South elevation
Simple Architecture was founded by Alexander Yonchev in 2017. The firm has been working on various public and private projects around the world.
Project facts
Project name: House In Sozopol
Architects: Simple Architecture
Location: Sozopol, Bulgaria
Completion year: 2022
All images © Assen Emilov.
All drawings © Simple Architecture.
> via Simple Architecture
