Submitted by WA Contents
Misc Coffee makes a bold statement with green translucent bar in a busy street of Toronto
Canada Architecture News - Dec 11, 2025 - 05:22 1370 views

Situated just north of Toronto's Ossington strip, Misc Coffee is a modest café that uses few materials to create a powerful visual impression.
Transparent green FRP (Fiberglass Reinforced Plastic) panels, an industrial grating material commonly utilized in utility and infrastructure contexts, defines the space.
This project, desiged by Toronto-based interdisciplinary architectural practice StudioAC, recontextualizes FRP to add texture, color, and light to a small room.

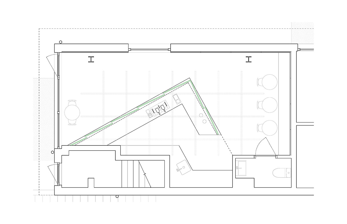
The design revolves around a triangle bar that is placed to effectively direct traffic while highlighting the FRP panels from the entrance.
In addition to supporting the shop's operational requirements and facilitating a clear flow of people, this geometry uses form to frame the space's material expression.

The triangle footprint of the bar is mirrored above by a corresponding canopy. It is suspended from an exposed Unistrut channel grid, which is another material used in industrial construction.
A layered visual effect that experiments with transparency, repetition, and structure is produced by the pattern-based logic shared by the FRP panels and the Unistrut grid. When combined, these components use common, off-the-shelf materials to create a powerful spatial identity.

The green FRP is complemented with stainless steel counters and shelving, which also reinforce the industrial color scheme. Because of its reflective surfaces, which enhance both artificial and natural light, the panels' green hue can change throughout the day.
These material selections also prioritize clarity and durability, attributes that complement the project's goal of feeling both practical and distinctive.

The design strategy was simple: create a unique atmosphere with no intervention, use easily accessible materials in an unusual setting, and let the geometry support both form and function. The project emphasizes letting light, material, and layout do the work rather than adding layers of finish or adornment.

Misc Coffee, which attempts to stand out by simplicity, contrast, and a reimagining of industrial materials in a hospitality context, is situated in one of Toronto's busiest and most design-conscious neighbourhoods.









Concept sketch

Concept sketch

Floor plan
StudioAC was inspired by agrarian architecture of the area to design a residence in Prince Edward County, two and a half hours east of Toronto, Canada. In addition, the studio designed a new pharmacy made of large ric arches that create a sculptural dome in Toronto, Canada.
Project facts
Project name: Misc Coffee
Completion: 2025
Architect: StudioAC
StudioAC Team: Andrew Hill, Jennifer Kudlats, Ryan Beecroft, Melody Matin, Mohammed Soroor, Sarah Reid
All images © Scott Walsh.
All drawings © StudioAC.
> via StudioAC
