Submitted by WA Contents
FMA. creates a sanctuary for holistic well-being in Morelia, Mexico
Mexico Architecture News - Jul 09, 2025 - 04:25 4777 views

Given the importance of health, Hābico becomes a place devoted to mental and physical health. The purpose of this carefully designed area was to provide a haven that blends mobility, calm, and practicality.
Situated in Morelia, Michoacán, on a street whose central median was converted into a linear park by urban intervention, Hābico blends in with a setting that fosters wellbeing and community.

In keeping with the project's basic principles, this intervention transformed a neighborhood that had previously been connected to crime and nightlife into a place for sports and family time.
The project, designed by Mexican architecture and design pactice FMA., was meticulously planned from the start, and a graphic design firm collaborated closely to enhance the idea.
A concept was created from the ground up, combining functional and aesthetic components that emphasize Hābico's own character.

In addition to being functional, the thoughtfully crafted furniture and signs complement the building and provide a visual and spatial balance that improves the user experience.
According to the Hābico team, creating a peaceful atmosphere that encourages tranquility is more important for designing for well-being than using flashy features or grandiose statements.

In order to accomplish this, they have used earthy hues, natural materials, and organic shapes to create a room that not only feels and looks wonderful, but also fosters inner calm and quiet.
The curves deviate from conventional lines to create a sense of continuity and balance, evoking the vitality of the human body and the energy that passes through it during exercise. Warm color schemes, gentle textures, and lighting that accentuates organic shapes all work together to create a warm and inviting space where people can unplug from the outside world and re-establish a connection with themselves.

"Hābico is more than just a place to train; it is a sanctuary designed to transform body and mind through physical dynamics and music, generating a holistic experience that goes beyond the physical," said FMA.
"It offers a space for those seeking health, balance, and a transformative experience in an increasingly fast-paced world," the studio added.











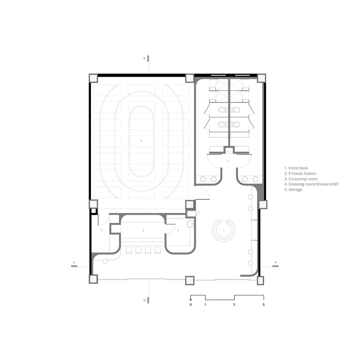
Ground floor plan

Sections
FMA. created a palette of warm and earthy tones into a new interior of a corporate building in Morelia, Mexico. Moreover, the firm designed the interiors of a bar with raw and rustic details in Morelia, Mexico.
Francisco Méndez, a young architect, is the principal of FMA, a 2020-founded architecture and design firm with its headquarters in Morelia, Mexico.
Project facts
Project name: Hābico
Architects: FMA.
Architect in charge: Francisco Méndez
Gross floor area: 165m2
Year of completion: 2025
Location: Morelia, Mexico.
All images © Cesar Belio.
All drawings © FMA.
> via FMA.
