Submitted by WA Contents
HAS Design And Research unveils proposal for Thailand Creative and Design Center Surin
Thailand Architecture News - Jul 25, 2024 - 15:20 5493 views

Bangkok-based architecture firm HAS design and research has unveiled proposal for a new design center in Surin, Thailand.
Called Thailand Creative and Design Center Surin, the new design scheme is developed The Thailand Creative and Design Center (TCDC), an agency under the Creative Economy Agency (CEA) with a mission to inspire creative thinking in society and propel Thailand's creative economy.

TCDC Surin adorned with local pine wood panels, simulating Thai elephants resting on the ground
"At the beginning of the 21st century, TCDC, with a strong vision, aimed to create more creative spaces not just in Bangkok but also to extend this social impact across the entire country," said HAS design and research.
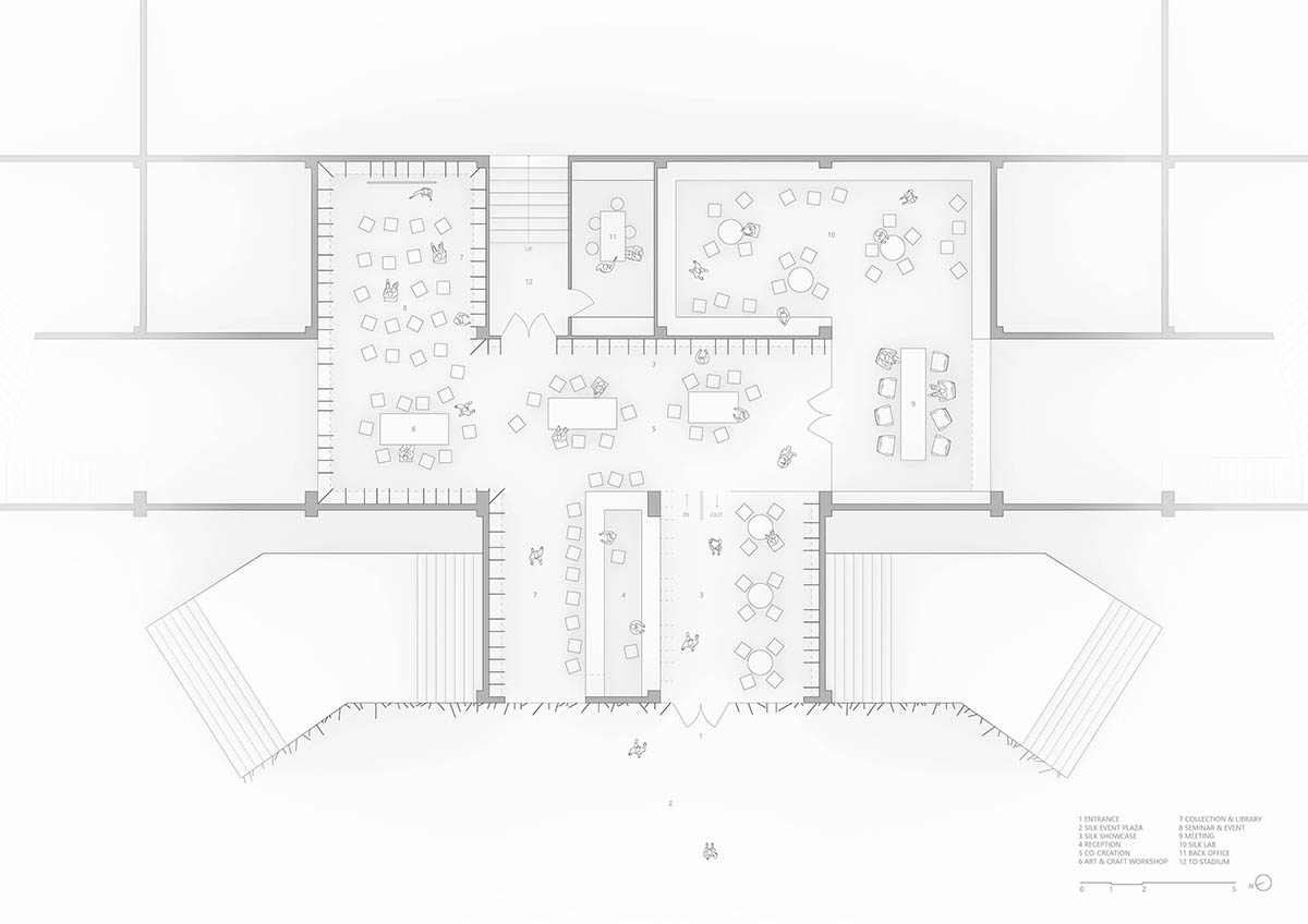
The 320-square-metre design scheme, proposed by Jenchieh Hung, the founder of HAS Design and Research, and Kulthida Songkittipakdee, the principal architect, is located in the old stadium, a large arena previously used for local events and activities.

The exposed stepped ceiling structure evokes a sense of nostalgia for visitors
"Surin, a legendary province of Thailand, is renowned not only as the hometown of Thai elephants but also for the expansive Phanom Sawai Forest Park," said the firm.
"Additionally, local silk weaving, inspired by the natural surroundings, is a significant cultural heritage of the region."
"These unique elements have established Surin as one of the most impressive cultural destinations, elevating Thailand's symbolism and addressing social issues from a different perspective," the firm added.

The Silk Lab is composed of thousands of local pine wood strips that form an impressive slanted wall
The Wat Buraparam temple and the airport are both nearby the location. The founders of the firm suggested a revolutionary strategy to transform the old stadium into a new cultural symbol for TCDC Surin because of its special location and history.
Hung And Songkittipakdee (HAS) planned for hundreds of local pine wood panels to cover the new TCDC Surin during the week.
These panels offer two different surface textures: one side has a silk-fabric texture painting that looks like textiles are draped over the stadium, giving TCDC Surin a new image, and the other side has a white-gray texture painting that represents Thai elephants playing in the soil mud.

The silk-fabric texture panels add another layer of local craftsmanship to TCDC Surin
These regional pine wood panels can connect outdoor and indoor events on the weekends by displaying movie advertisements and exhibition posters. Residents and guests can also enjoy the Silk Event Plaza, where they can watch movies in an outdoor theater setting in front of TCDC Surin, before entering the interior space.
There are two primary purposes that define the interior space. One is the Silk Lab, an amazing slanted wall made from thousands of strips of local pine wood. This wall offers a laboratory area for local silk and traditional fabric-related research, innovation, exhibition, and storage.

The Co-Creation area provides silk and fabric displays and book libraries
The Co-Creation area, which can be used as bookcases, silk displays, workshop areas, or exhibition spaces, is the other purpose. It is constructed from hundreds of local pine wood panels.
The stadium's current structure, which includes stepped ceiling elements and rough concrete, is visible through the exposed ceiling, giving fans a nostalgic feeling.

The library space is also a multi-functional area for book fairs and reading events
TCDC Surin's architecture goes beyond merely updating the dilapidated Surin stadium. Architects Jenchieh Hung and Kulthida Songkittipakdee used local pine wood panels for this project, which symbolically symbolize the special natural resources that support Thai silk-fabric craftsmanship as well as elephants.

The exposed stepped ceiling structure running through the Silk Lab creates a juxtaposition of rough and smooth textures
By adding a gathering area, the two sides of the panels on TCDC Surin's façade also mimic local elephants that are lying on the ground, fostering creativity and relaxation while encouraging visitors, students, and locals to envision a different future.

Concept diagram illustrating the transformation of the existing stadium into a natural space for local inhabitants

Site plan

Axonometric diagram

Hundreds of options show that Jenchieh Hung and Kulthida Songkittipakdee aim to create eternal spaces

Ground floor plan

Detail diagram shows silk-fabric texture painting creating two sides of facade performance
Recently, HAS design and research designed a public ground interior made of disc-like thousands of aluminum rods in Bangkok.
Project facts
Project name: Thailand Creative and Design Center Surin
Location: Surin, Thailand
Architecture firm: HAS design and research
Lead architects: Jenchieh Hung, Kulthida Songkittipakdee
Design team: Jenchieh Hung, Kulthida Songkittipakdee, Saralchana Pueakhachen, Rossrut Bannangkool, Thanyatorn Saelao, Pech Panha Pen
Structural Engineer: Buncha Layangkoon
Electrical Engineer: Sutee Preechachiaw
Site area: 2,650m2
Gross built area: 320m2
Design year: 2024
All renderings & drawings © HAS design and research.
> via HAS design and research
