Submitted by WA Contents
MoederscheimMoonen Architects completes Port Pavilion with black aluminum façade in Rotterdam
Netherlands Architecture News - Sep 27, 2021 - 15:44 3867 views

Rotterdam-based architecture studio MoederscheimMoonen Architects has completed a new pavilion that features black aluminum triangular shapes on its façade in Rotterdam, the Netherlands.
Named Port Pavilion, the 1,400-square-metre pavilion is located in the historic Maritime District in Rotterdam. The architects have created a new compact building that replaces the three outdated pavilions that used to be in its place.

The pavilion brings more transparency and visibility in order for the historic harbor and the activities that take place in the building can be clearly seen.

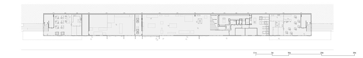
In the new pavilion, the pavilion houses a variety of functions. The pavilion houses the Port Visit Center of the Port of Rotterdam, where visitors are introduced to the impressive harbor of the city.
The visitors will find the workshops of the Maritime Museum. Here, the welders, blacksmiths and carpenters work on the maintenance of the historic fleet in the museum harbor.

These workshops are open to the public and bring the historic and current harbor together since all indoor functions are connected. You can simply walk through the Port Visit Center into the workshops of the Maritime Museum! Next to this, there is space for the restaurants/cafés on the two ends of the building.

MoederscheimMoonen Architects designed the pavilion under strict urban planning conditions. The building was only allowed to be eight meters wide, just like the old pavilions were.
This resulted in an elongated building that extends and runs parallel to the street and the quay. Due to the building being shorter than the former pavilions, there is a clearer view of the historic harbor from the street.

The team aimed to create a distinctive pavilion that can be visible from every perspective. MoederscheimMoonen chose to draw extra attention to the ends of the building.
These ends consists of large canopies that are real eye-catchers on both sides of the city. In the middle of the building is a cross-section with a staircase that can also function as a grandstand and connects the street with the waterfront.

On eye level, the building has been made as transparent as possible, so the activities inside and on the water can be openly seen. Above the plinth, the façade is finished with aluminum cladding in triangular shapes.

These shapes refer to the steel lattice structures and cranes that are in the harbor. The triangles are omitted in some places in order to create more depth and introduce a dynamic play of light and shade. The triangular panels have various gloss finishes that appear to reflect differently when hit by sunlight, suggesting the shimmer of the water in the harbor.

"The street next to the pavilion (Schiedamsedijk) has always been a bit of a messy part of the city center, and the new pavilion ensures much more contact with the old fleet and the water, which makes a great hotspot between the famous Coolsingel and the Erasmus Bridge," said architect Erik Moederscheim.

The new building is reuses the existing foundation and the main portals of the steel construction of the old pavilions. Other parts of the steel construction have been used as donor profiles in the new building. This way, the old materials are used sustainably and also leave a piece of history in the new building.










Site plan

Ground floor plan

First floor plan

Elevation

Elevation

3D axonometric
Project facts
Location: Rotterdam, the Netherlands.
Client: Gemeente Rotterdam
GFA: 1.400 m2
Program: Port Visitor Center van Port of Rotterdam, werkplaatsen Maritiem Museum, twee horeca gelegenheden inclusief terras.
Architect: MoederscheimMoonen Architects
Contractor: Bertens Bouw
Installation advisor: Nelissen Ingenieursbureau
Constructur: ImD Raadgevende Ingenieurs
Roof and facade: Cladding
All images © Bart van Hoek
All drawings © MoederscheimMoonen Architects
