Submitted by WA Contents
Iniesta Nowell Arquitectos converts old warehouse into house with a network of service alleys
Spain Architecture News - Aug 17, 2022 - 11:38 2586 views

Spanish architecture practice Iniesta Nowell Arquitectos has converted a former furniture warehouse into a house with a network of service alleys in Jerez de la Frontera, Spain.
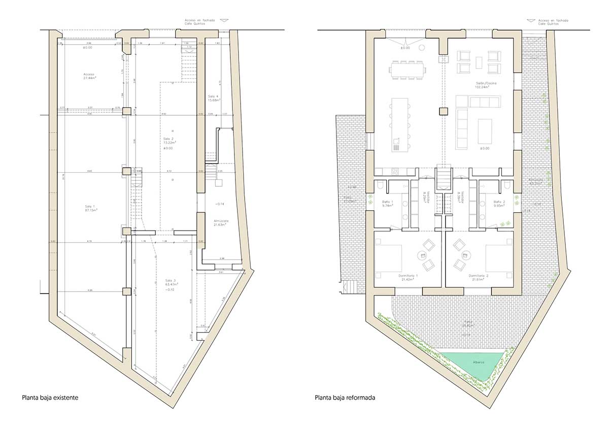
Named House in a Jerez Winery, the 384-square-metre project is the transformation of a warehouse into housing, including two living rooms, kitchen with dining room, four bedrooms and three bathrooms, as well as courtyard, small pool and terrace.

The winery in this project was previously used as a furniture warehouse and was left abandoned. Later, the studio was commissioned to transform it into a house.
The structural elements of the winery are still perceivable from inside, acting as small passageways and complementing the needs of the house.

"In the city of Jerez de la Frontera, wineries sit side by side with the rest of the houses to shape the historic centre, establishing a unique city skyline that is closely linked to the wine-making tradition in this part of southern Spain," said Iniesta Nowell Arquitectos.
"The “soleras and criaderas” system allows the wine to age in barrels arranged in vertical structures inside a specific type of cellar which needs to be large, dark, ventilated, and cool."

"These spaces have an unforgettable aroma and are dark save for the occasional ray of light," the office added.
"From the end of the 18th Century, sherry wine began to be exported worldwide and the winemakers went from operating domestically to industrially without leaving the city."
"As a result, this city in the south of Spain has been shaped by its connection to wine production. In addition to the cellars, a whole array of streets, squares, and extra spaces have been needed for various maintenance tasks; cleaning and repairing barrels," the studio continued.
"Over time, many of these buildings have been repurposed for multiple uses: shops, offices, gyms, homes," the office added.

"From the available documentation, we were able to ascertain that it was a small domestic winery, possibly linked to a house that has since disappeared. The deeds mention a maintenance alleyway, but this was impossible to see in the condition it was left in."

A city within a city
The architects created "a city within a city" by combining the old elements of the winery with the new restoration. According to the team, discovering the network of service alleys, which is a part of the old city, created a "second city" connected to the world of Jerez wine.
"We started with a very compact building without ventilation, then decided to work inversely by finding the remains of the service alley and opening up a new back terrace. This is a place for getting together, as well as to cool off in the small pool," the office added.

The living room and kitchen are located on the main façade, preserving the monumental character provided by the building’s original height, while to the rear the rooms are arranges on two levels with views over the patio with the pool.
There are open-plan spaces which allow for a view through the whole building, both from south to north and east to west.
The project became a process of studying and adapting the pre-existing structure, where we have worked with systems and materials commonly used in winery architecture: local limestone, lime, pine, and iron.

Out of a deep respect for the typology and building methods, the architects have renovated a forgotten structure into a Mediterranean, Andalucian house.
At the same time, the architects have put part of the urban fabric of the city of wineries back into service, which continues to define Jerez today.






















Ground floor plan

First floor plan

Façades and section

Axonometric drawing

Axonometric section
Project facts
Project name: Housing in a Sherry Winery
Architecture office: Iniesta Nowell Arquitectos
Construction completion year: 2022
Constructed area: 384.94m2
Location: Jerez de la Frontera, Spain
All images © Rafael Iniesta Nowell
All drawings © Iniesta Nowell Arquitectos
