Submitted by WA Contents
Rocco Design Architects Associates completes Bao'An Performing Arts Center in Shenzhen
China Architecture News - Mar 07, 2022 - 16:30 3398 views

Chinese architecture practice Rocco Design Architects Associates has completed the Performing Arts Centre, a flagship of the Bao’an Cultural Complex, opened on 17 September 2021 in Shenzhen, China.
The new 110,000-square-meter arts and performance complex is overlooking Quanhai Bay and the South China Sea, the building anchors the southern end of the cultural complex.
The new complex was realized as part of the Bao’An Cultural District masterplan designed by Rocco Design Architects. The masterplan includes three major new destinations: the Performing Arts Centre, a Library, and a Youth Palace. The Library was completed in 2013 and the Youth Palace in 2018.

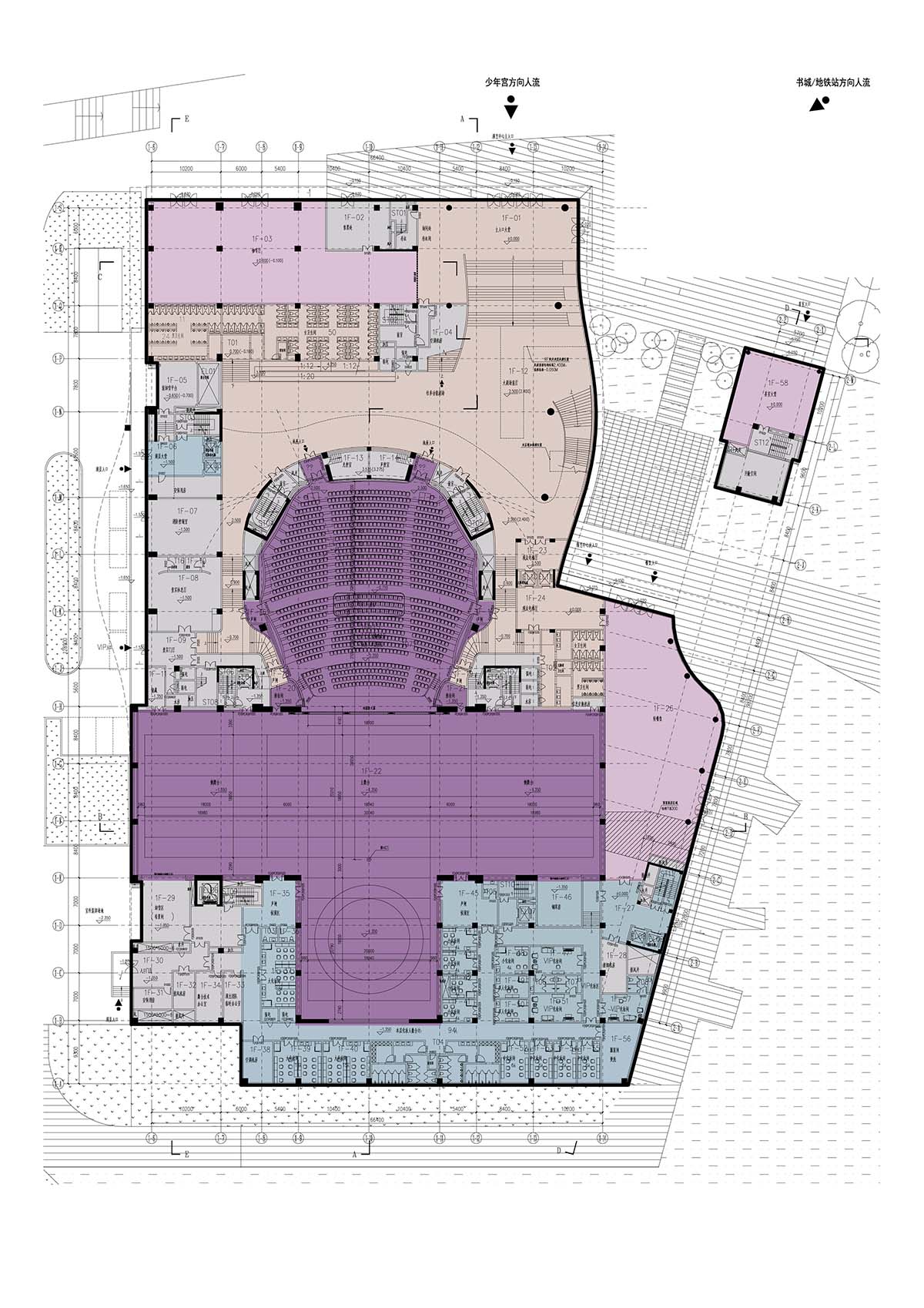
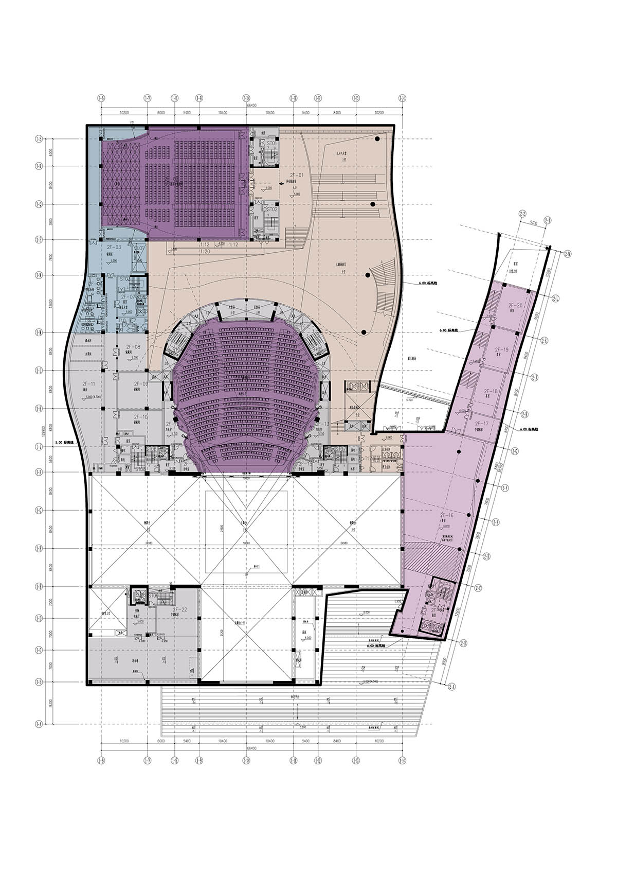
The building houses Shenzhen’s first performance hall to be scaled and equipped for international operas, as well as a 600-seat venue and rehearsal facilities. The 28,000-square-metre building will host opera, dance, symphonies, and dramatic performances.
Rocco Design Architects Associates takes cues from the long and narrow waterfront site. The base of the building is a low-slung, wave-like volume that carries a sense of rhythm and movement along the campus's axis.

A delicately perforated facade hearkens back to ancient Chinese craft like wood and ivory carving and produces dramatic visual effects recalling light shimmering on the bay.
The scrim-like envelope modulates transparency according to the spaces it encloses, creating openings at the public lobbies and gathering areas and becoming more opaque at the theatres and rehearsal spaces. While formally and technically innovative, the facade concept is rooted in traditional Chinese building screens and shadow walls.

A fly tower tilted 15-degrees off the vertical creates a point-of-orientation that announces the centre as the focal point on campus. Sky-bridges connect the tower to the main volume, offering commanding views over the bay. Gathering areas and elevated porticos line the base of the building, and a restaurant sits at the end of a sloping volume that extends into the plaza, weaving the building into the larger campus.
Visitors enter through a soaring triple-height lobby. A grand curving staircase and billowing walls finished with wooden slats continue the undulating character of the exteriors. Natural light from above filters in through the perforated facade, creating a lively play of shadow across the space.

The main performance hall will host high-profile productions of opera, classical music, and ballet.

Its delicately sculpted walls accentuate the organic geometries of the space and optimize acoustic conditions by muffling background noise and enhancing sonic clarity.

The stage comprises six double-layered lifts that can be raised and lowered within a range of ten meters, opening new production possibilities. The orchestra pool can be raised to the height of the main stage to extend the performance area into the house.

A 600-seat theatre complements the main performance hall. This space is designed for flexibility to accommodate experimental productions. The stage and seating can be easily rearranged, enabling catwalk, four-sided stage, immersive, and interactive theatre experiences.












Site plan

Diagram – Functions zoning

Diagram – Functions

Diagram – Traffic 1

Diagram – Traffic 2

Plan – Level 1 Ground

Plan – Level 2

Section – Concert Hall Auditorium

Section – Performance Centre

Section – Theatre Auditorium
Project facts
Architects: Rocco Design Architects Associates
Performing Art Centre Design Team: Rocco Yim , Derrick Tsang, William Tam, Herbert Hung ,Martin Fung, Lucia Cheung, Stephen Chan, Simon Ho, Calvin Chung, Ivy Yung, Zachary Wong , Zhu Yi, Seah lee, Jans Liang, Leo Zhou, Chen Lan, Amber Wang, Yang Shi Pei
Local Architect: BIAD
E/M: BIAD
Façade Consultant: BuroHappold
Landscape: SWA
Client: OCT
All images © Zhang Chao Studio
All drawings © Rocco Design Architects Associates
