Submitted by WA Contents
Bulak Projekt transforms former sugar factory into hotel complex with industrial look in Poland
Poland Architecture News - Mar 17, 2022 - 11:03 6414 views

Polish architecture studio Bulak Projekt has transformed a 19th-century sugar factory into a hotel complex in Żnin, Poland.
Named Sugar Factory Żnin, the 16,800-square-metre hotel complex was revitalized as part of a larger Sugar Factory Industrial Park masterplan which consists of 27 buildings, including warehouse buildings, a hotel, harbor, engine house building and stable building.
Originally built in 1894, the building was used for producing sugar from beets until 2004. As a result of industrial restructuring, the complex was closed down and the buildings of the complex were ultimately designated for demolition.
The entire project was a team effort of dozens of designers. Joining Bulak Project were studios MML and MIXD.

Image © ONI STUDIO
Polish real estate developer ARCHE subsequently purchased the complex to renovate the factory and revitalize the valuable, but collapsing buildings, while endeavoring to respect their historical value, the changes made to them over generations, and their aesthetic and technical diversity.
The outer of the building and the interiors are designed in natural tones that respect the industrial beauty of the complex.
Dressed with warm materials and colors, rusted steel constructions and load-bearing columns and brick walls still present clues to the building's former identity.

Image © ONI STUDIO
From the onset of the project, Bulak Projekt focused on preserving the history of the building by retaining almost all elements of the old factory, right down to its screws and sheet scraps. Although large elements of the old sugar factory now interact with new functions, they are still quite visible.

Image © ONI STUDIO
The studio maintained smaller elements and incorporated into the interior design and, collectively, the firm paid attention to the whole project to preserve the building's natural authenticity.
Upon entering the main building, visitors get the first impression that it still serves as a "factory", with a saturation of stimuli ranging from rough simplicity to emotional characteristics of intimacy and warmth.

Image © ONI STUDIO
"Mastering the form of such a complex building proved to be a design challenge, and creating a layout of functions and communication within the vast space was time consuming," said Bulak Projekt.
The architects approached the whole complex as a unique asset. "Construction required load transfer calculations of the new structures, while reinforcing the old parts," added the studio.
The installation inside the building was incorporated into the interior design, and the firm ensured the conservation of the site's industrial heritage.
Within the masterplan, consisting of 27 buildings, none of the existing structures were demolished, and all were assigned new functions, while some are still in progress.

Restaurant. Image © nalewajk.pl
In the interior design, Bulak Projekt worked with ARCHE, Polish architecture firm MML architekci and Polish interior design practice MIXD together to complement the interiors referencing to the outer language of the building.
The approach to the interiors embraced connections to the surrounding landscape, with old stone pavement being restored, and trucks, pipes, masts, and other equipment remaining where it was.
"That tied the whole project together, infusing recognizable character into the site from the moment the entrance gates are crossed," added Bulak Projekt.

Mezzanine. Image © nalewajk.pl
The main 4-star hotel building features rooms, a restaurant, and conference space, while the second building is a 3-star hotel, connected to an aquapark, a spa, a club, and a brewery.
The third building houses a conference room capable of accommodating 800 people, as well as a cinema, a restaurant with additional event space, a marina, a rehabilitation center. An additional much smaller building will be adapted for a new function, according to the studio.

Lobby. Image © ONI STUDIO
The sugar factory is located near the historical centre of Żnin, in close proximity to a lake which once provided the factory with water, and now serves as part of the site's recreational offering, with ideal conditions for windsurfing and motorized water sports.

Mezzanine. Image © nalewajk.pl

Lobby. Image © nalewajk.pl

Hotel room. Image © ONI STUDIO

Slide. Image © ONI STUDIO

Control center. Image © ONI STUDIO

Slide. Image © ONI STUDIO

Restaurant. Image © ONI STUDIO

Conference room. Image © ONI STUDIO

Stairs. Image © ONI STUDIO

Bowling room. Image © ONI STUDIO

Hol. Image © nalewajk.pl

Restaurant. Image © nalewajk.pl

Sugar Factory Industrial Park masterplan

Site plan

Site plan with Harbor

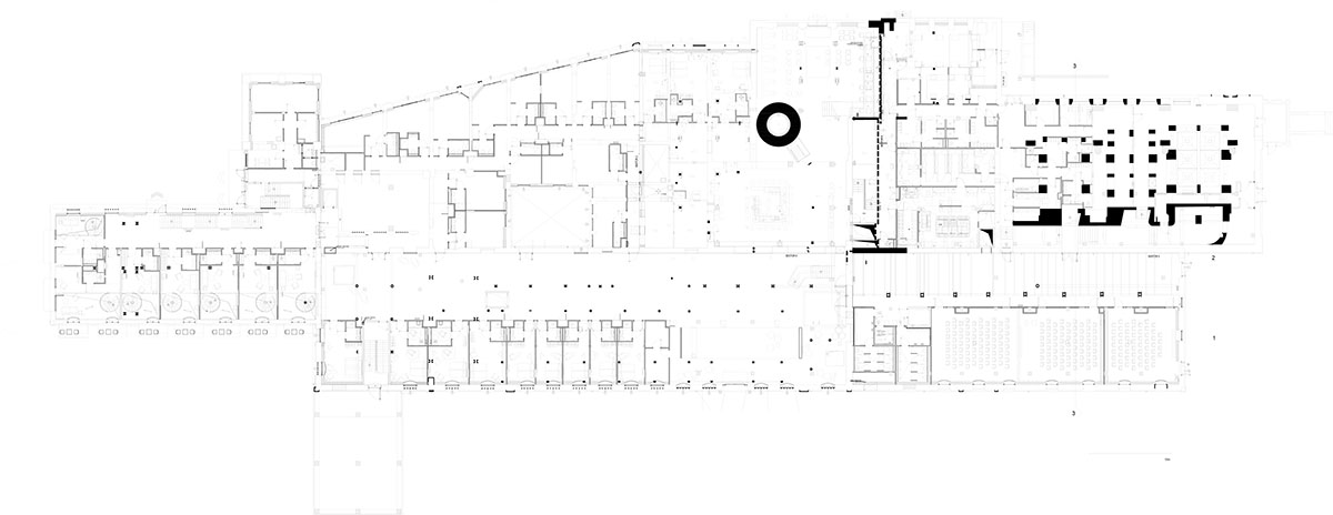
A1 Building Plan ground floor plan

A1 Building Plan first floor plan

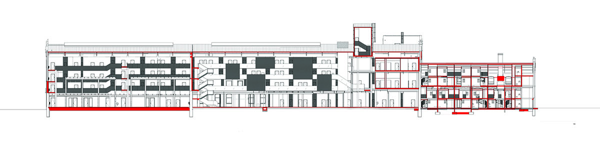
Section

Section
The studio said that "Several dozen designers worked on the large facility, including BULAK PROJEKT, MML, and MIXD. The construction manager also made a great contribution, as did industry designers who exhibited great creativity."
"The support of municipal offices also played an important role, as did the input of former sugar factory workers, led by Mr. Andrzej."
"The main authors of this award-winning project include the President of Arche Władysław Grochowski, who saw the potential of the condemned buildings, as well as architect Marek Bulak, and Chief Designer and architect Piotr Grochowski."
Project facts
Project Name/Location: Sugar Factory Żnin, ul. Janickiego 1, 88-400 Żnin POLAND
Architects: Bulak Projekt / Marek Bulak and Piotr Grochowski
Cooperation:
Architecture and urban planning:
Bulak Projekt: Bartosz Potępski, Anna Siwiec, Katarzyna Fiedorowicz, Karolina Feliksik, Ireneusz Kossakowski, Łukasz Dąbrowski, Aleksandra Sybilska, Sławomir Kostrzewski, Ferdynand Słowik.
Interior design:
ARCHE: Katarzyna Grochowska, Wojciech Kolęda, Jagoda Dyszkiewicz, Elżbieta Laszczka
MML ARCHITEKCI: Przemysław Nowak, Paulina Masternak, Lech Moczulski
MIXD: Piotr Kalinowski, Katarzyna Majer-Hola, Joanna Mazurek, Dominika Niewczas-Januszek
Bulak Projekt: Magdalena Mika, Katarzyna Saniewska, Tatsiana Zarembiuk, Karolina Opałczyńska
Structure: KONSYSTEM – Radosław Lorens
Electrics: Pracownia Elektryczna Adam Zdziarski – Adam Zdziarski
Sanitary installations: ELER - Piotr Ściegienka
General contractor: ARCHE
Investor: ARCHE
Ground area: 360000 m2
Surface area: 16800 m2
Usable area: 23000 m2
Total area: 35000 m2
Cubic capacity: 150000 m3
Original building: 1894
Design year: 2017
Year of completion, renovation, and revitalization: 2020
Top image: Restaurant entrance. Image © ONI STUDIO
All images © ONI STUDIO and nalewajk.pl.
All drawings © Bulak Projekt
> via Bulak Projekt
