Submitted by WA Contents
MIT Research Scientist John Klein created mass timber building prototype for shared communal spaces
United States Architecture News - Jul 10, 2018 - 02:52 23778 views

MIT Research Scientist and Architect John Klein has created a mass timber building prototype for shared communal spaces to search for alternative uses of timber and construction technology.
John Klein, the founder of John Klein Design, has proposed the Longhouse made of an angled sawtooth envelope that can turn into local solar conditions into natural daylighting needs.

View of the Longhouse North Elevation
Called Mass Timber Design by MIT (Massachusetts Institute of Technology), the proposal became a part of a design workshop at MIT, which explored the design and engineering potential of these technologies. As a result of the cross-disciplinary workshop, the architects developed a sustainable mass timber building prototype so that the building can be adaptable for shared communal spaces in any place.
"Mass timber, a wood-based building design and construction technology, has received attention over the past few decades given its efficiency, speed, precision and versatility in construction for low to high-rise applications," said John Klein describing his project.
"Mass timber buildings are becoming more common throughout North America, most notably due to the technology’s environmental benefits and the potential impacts it can have on America’s forest health and restoration," Klein added.

View of the Longhouse interior during a co-working staging
The longhouse is conceived as building type common to historic settlements across the world and through history, finding use in the Americas, Asia, and Europe. Longhouses served many functions for these historic communities, but were almost always civic or multi-family in scale.
They were often places of community gathering, civil government, communal work, and an overall space for knowledge exchange. The MIT Longhouse is designed for shared communal spaces that builds upon this rich cultural icon.

View of the Longhouse interior during an event staging
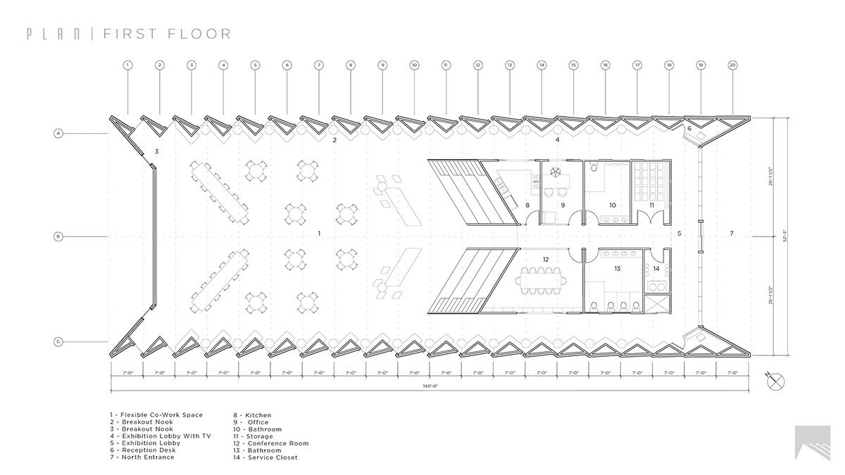
The Longhouse is designed as a multi-functional building, which will accommodate a range of event scenarios from co-working, exercise classes, social mixers, exhibitions, dinner gatherings and lectures.
In order to achieve a large spanning high bay space for flexibility, the building is engineered as a series of timber laminated veneer lumber (LVL) arches spanning across the building’s shorter dimension. Each arch utilizes a thin-walled triangular profile to minimize deformations in the structure and provide overall rigidity to the building.

Site Plan: Site plan of the Longhouse
The building design additionally integrates sustainable features to become an energy producer. The building orientation and the depth and angle of the sawtooth roof can be tuned for local solar conditions and natural daylighting needs. A low window to wall ratio with a highly insulated envelope allows for an energy efficient building. The project utilizes Computer Numerically Controlled (CNC) manufacturing processes to enable a prefabricated modular system for efficient assembly.
The Longhouse was developed by a cross-disciplinary team in Mass Timber Design, a design workshop in MIT Architecture that explores the future of sustainable buildings at the intersection of architecture and technology.

The Longhouse first floor plan

The Longhouse second floor plan

The Longhouse lateral section

The Longhouse longitudinal section

A detail of the typical arch ridge hinge connection

A detail of the typical arch box beam moment connection

A detail of the typical window and envelope assemblies

A detail of the typical skylight and envelope assemblies

A detail of the typical foundation conditions
Project facts:
Project name: Longhouse
Architect: John Klein (Research Scientist)
Design-Engineering Team: John Fechtel, Paul Short, Demi Fang, Andrew Brose, Hyerin Lee, Alexandre Beaudouin-Mackay.
MIT Mass Timber Design was generously supported by MIT’s Department of Architecture, BuroHappold Engineering and Nova Concepts.
All images © MIT Mass Timber Design
> via John Klein Design/MIT
