Submitted by WA Contents
YODEZEEN creates bold and dark interiors for Instagrammable restaurant in Kyiv
Ukraine Architecture News - Oct 19, 2020 - 11:20 13424 views

Kyiv-based architecture and interior design studio YODEZEEN has created bold and dark interiors for an Instagrammable restaurant in Kyiv, Ukraine.
The restaurant, named as Follower Restaurant, is imagined as an eclectic, eccentric, and modern place for millennials who are keen on social media but at the same time never forget the benefits of social life.
The architects transformed a former building, known as Stalinka, into a new restaurant with fresh and contemporary look.
The original building was built in the 1950s by Ukrainian architect Osip Kryvoglaz and has become a part of the entire ensemble of Soviet architecture in Kyiv.

Located at one of the oldest and longest streets of Kyiv, Velyka Vasylkivska street, the architects wanted to create a spacious and memorable interior space that can provide an Instagrammable backdrop for Y generation to interact with the interior spaces directly.
The Follower restaurant takes over the two-floors of the brick historical building with the panoramic windows on the central façade.

YODEZEEN was faced with two essentials tasks: maximum preservation of the historical past of the building, but at the same time, the creation of a restaurant space where the offline and online presence of visitors is strongly intertwined, a space that leaves no opportunity not to post it on social media.

"In current Internet era business owners are increasingly recognizing the impact of social media on their business. So, the design-for-Insta strategy is becoming essential in such commercial project as Follower, where we were trying to meet the needs of local businesses and to create the space that perfectly suits generation Y," said Lead Architect Artem Zverev.
"End goal obviously was being in creating a more enticing environment for consumers," Zverev added.

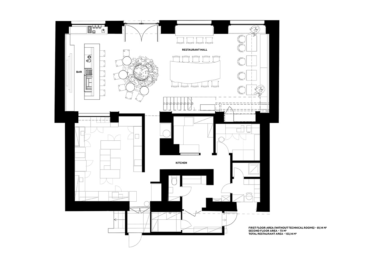
The restaurant is arranged over two levels the entire space of the Follower restaurant with American and Italian eatery. The first floor includes a cocktail bar and a communal table and the second floor with more intimate seating.
The dining areas for 84 seating spots are furnished with wood and metal armchairs and wood and concrete tables – one part or which are custom-made and other are furniture delivered from Denmark.

"Seeking the very idea for space we were trying to implement graphic visual motives with lots of honest materials as steel, glass, wood, even so, putting big attention in creating an authentic sense of eclectic style with adding some things with meanings everywhere in the restaurant," continued Artem.
"The vivid color and material palette of the interior – including greens, deep navy, wood, silver, and terracotta – is meant to evoke an atmosphere that every visitor wants to share with," he added.

Spacious restaurant space with high ceiling in 5 meters, terracotta bricks on the walls, and honey-toned wood complete the authentic atmosphere with 5 millimeters hot rolled steel cladding over the first level.
The prime focus of the ground floor completely belongs to the cocktail bar with 3 immense mirrors of 4 meters in high with the imposing list of signature cocktails. The cast-wood bartender's counter is framed by a stylized ceramic bookshelf with 300 books on it.

Directly opposite of the cocktail-bar is located a custom artwork featured by YODEZEEN designers: the big picture of imagined Follower, personifying the generation Y.
The artwork is 3 meters in high and composed of the 200 kg of books laid out in such a way as to create patterns and individual elements of the imaginary face.

The communal table made from wood with a massive metal supports is located in the middle of first level and dedicated to the constant desire of millennials to communicate offline as well.

Another non-standard work of YODEZEEN designers in this project is a set of metal letters of the word «follower», placed in bulk on the columns of the restaurant.
A custom rust-styled metal staircase connects the two floors of the restaurant. Upstairs, visitors will find the same interior color palette, but with a more comfortable seating. The main accent of the second floor is the custom design of the bookcase with glass books illuminated in dark blue.

The architects give much attention to wood as the main material in the implementation of the interior idea.
This is a large communal table, wooden countertops, a European bench, natural parquet with a pronounced texture, as well as large wooden frames with aged mirrors on the bar, which add even more air and space to the room.

The restrooms of the restaurant continue with the Instsgrammable theme.
Large room with blue partitions, washbasins made of basalt in the form of an uncouth piece of stone are compositionally complemented by a mirror with a gradient.

The theme of books is clearly traced throughout the concept of the interior, as one of the main meanings, defining Follower as a collective image of a generation Y living in two parallel worlds - virtual and real.
The books are stylized in the design of the bar, in the format of an art-library on the second level, in the form of metal letters literally hanging on the columns of the first level.



First floor plan

Second floor plan
Project facts
Design studio: YODEZEEN
Team: Artem Zverev, Artur Sharf, Alesya Ryamova, Julia Klyahina
Footage: 153 sq.m
Opening date: September 2020
All images © Andrii Shurpenkov
All drawings © YODEZEEN
> via YODEZEEN
