Submitted by WA Contents
VA Studio completes Casa Besos in Costa Rican jungle
Costa Rica Architecture News - Aug 24, 2020 - 12:05 6083 views

Costa Rican architecture practice VA Studio has completed a new residence, named “Casa Besos” in Nosara, Guanacaste, Costa Rica. The studio decided to create the house around a beautiful Guanacaste tree in the center of the lote.
VA Studio started generating openings and highly permeable spaces to enjoy this central element from each of the different spaces of the house.

The bedrooms and living spaces were all placed sideways in order to face the prominent views. "This great challenge started by the remodel of an old house, but after analyzing it, we concluded that it would not be conceivable to integrate each of the existing spaces to this beautiful central axis," said VA Studio.
"We convinced the client to generate a new project in which the spaces of the house would integrate in a direct way with the tree."

"Our project Casa Besos represents the power of simple modern tropical architecture, which shows that there is a real desire to design
a house around a beautiful Guanacaste tree in the center of the lote to bring people closer to nature, while addressing their day a day needs," said Architect Victor Rojas.
"We started generating openings and highly permeable spaces to enjoy this central element from each of the different spaces of the house."

























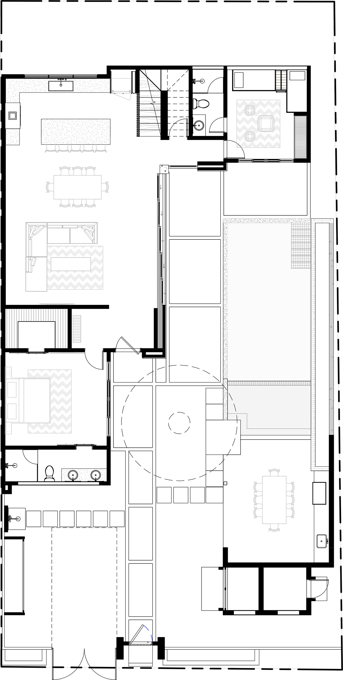
Floor plan 1

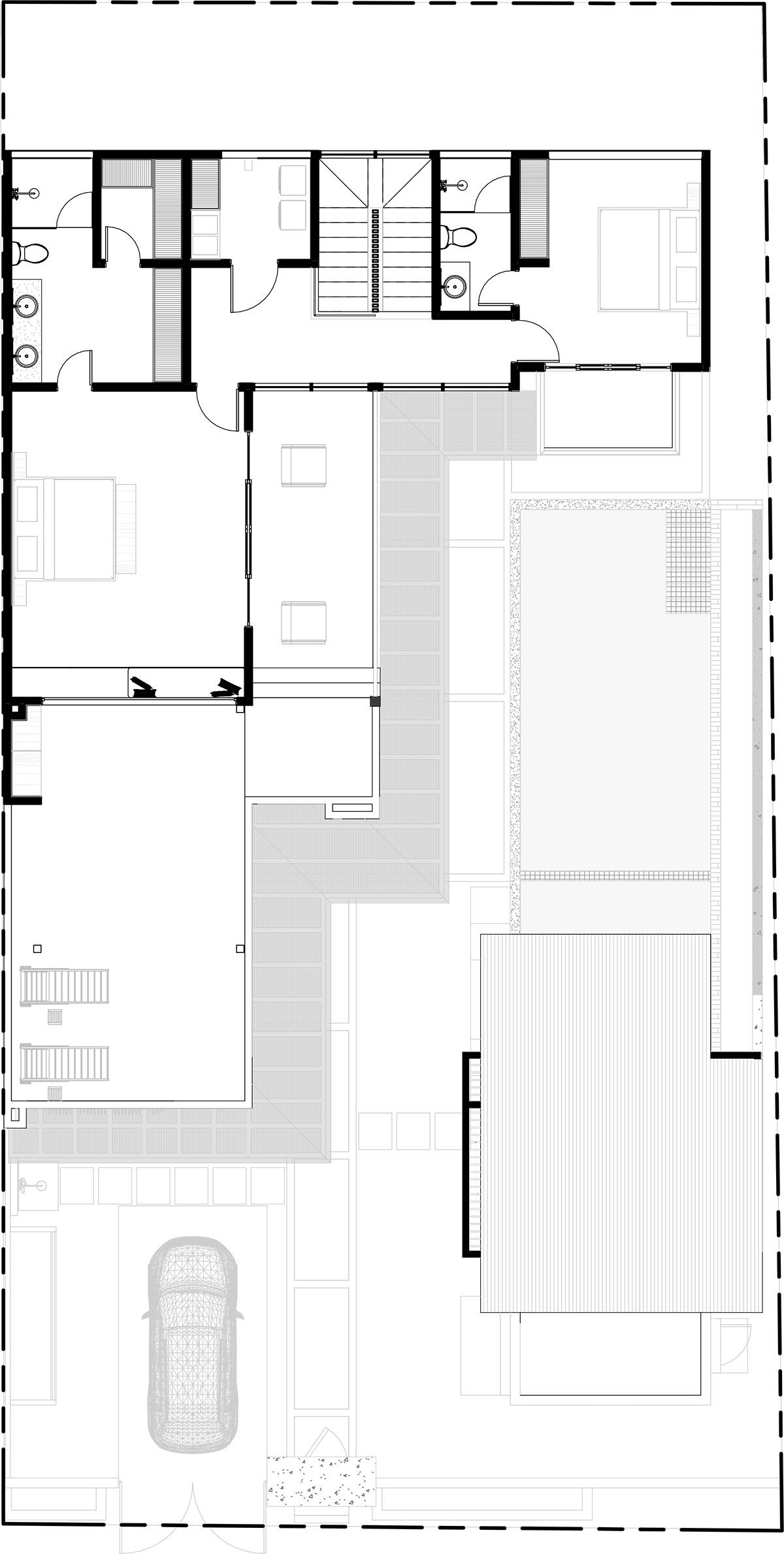
Floor plan 2

Section

Elevation
Founded in 2014 by Victor Rojas, since then, VA Studio has become a practice with the aim of exploring the relationship with the natural environment through the tropical architecture.
VA Studio is built by two main axes, respect for nature being this the main protagonist and at the same time understand the specific needs of customers.
Project facts
Location: Nosara, Guanacaste, Costa Rica
Date of completion: 2020
Client: Private Residence
Area: Approx: 335 m2
Project Coordination: VA Studio
Architecture & Structural Team: VA Studio
Directors: Victor Rojas & Alonso Hernandez
Construction Company: LHC Constructora
Mechanical Electrical Plumbing Team: GEROS Electric
Interior Design: Sofia Interiorismo
All images © Andres Garcia Lachner
All drawings © VA Studio
> via VA Studio
