Submitted by WA Contents
Pía Mendaro converts old house into an artist residence with floating mezzanine floor in Madrid
Spain Architecture News - Feb 27, 2020 - 13:15 4962 views

Madrid-based architect Pía Mendaro has converted an old house into an artist residence with floating mezzanine floor in Madrid, Spain. Named Artist Residence, the 67-square-metre space is clad with all-white color interiors and minimum furniture and fixture to enhance creativity.
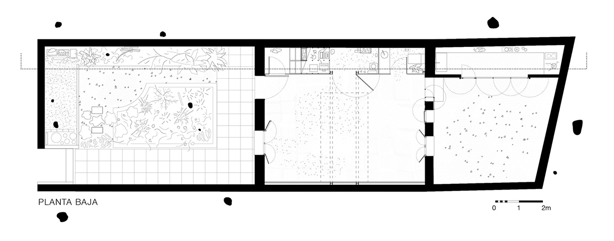
The project brief was to carry out the refurbishment of a row house built in the 20s, classified as "recognized poverty housing". The architect explained that there was a limited budget and the place’s character had to be kept in the outside.

It has a front and a back garden. The idea was to set up an artist residency space / housing for a multitasking freelance. The project needed a versatile space where one could work with heavy tools (welders, radials, dust, paint ...).
It also had to be able to transform itself into a public exhibition space or office to receive clients in just a few hours. Given the reduced floor plan (6x7m), it was decided to dedicate the maximum amount of free m3 to this purpose. The rest of the program was condensed and hidden behind a white wall with openings to serve the mentioned space.

On the ground floor, there is a large warehouse with a 3-metre high door (to store almost anything and hide the clutter) that is automatically closed by weights and pulleys, a door to a toilet, three small openings for a projector, more storage and views, and a door (somewhat elevated), that gives way to the private zone.

The private area of the project starts in a flight of stairs/drawers that go up to the freelance / resident artist’s lodging. There visitors find a shower (an iron box with a boat window), and a gangway; a bedroom that flies over the main space.
Under the height walkway, some pulleys serve the exhibition / workspace: a 4,80m long table can be hanged from them, or any other heavy object (a swing, for example).

The kitchen is camouflaged in the rear garden’s shed. The space is not conditioned. It consists simply of a long worktop to serve appetizers (fires and sink are hidden at both ends). The metallic carpentry unfolds to completely open to the outside.

This is currently Barbecho’s place. (Barbecho means Fallow in Spanish). A space that rotates between workshops and artist residencies, dedicated to the design and production of useful objects.







Floor plan

Mezzanine plan

Section

Section
Project facts
Project name: Artist Residence
Architects: Pía Mendaro
Size: 67m2
Location: Madrid, Spain
All images © ImagenSubliminal
All drawings © Pía Mendaro
> via Pía Mendaro
